Contact met de makelaar

Deze woning is gevonden buiten ons eigen netwerk. Met de knop hieronder kom je direct bij de aanbieder terecht.

Nieuw

Veldkersvliet 23

Bekijk kaart
3545 DG Utrecht (Rijnvliet)
€ 775.000 k.k.
  • 135 m²
  • 5 kamers
  • 2020

Samenvatting

  • Deze woning wordt sinds 26 januari 2026 aangeboden door VHM Makelaars Utrecht;
  • De tussenwoning heeft een woonoppervlakte van 135 m² en beschikt over 5 kamers, waarvan 4 slaapkamers;
  • De woning is gebouwd In 2020 en ligt in de buurt Rijnvliet in Utrecht;
  • De woning beschikt onder andere over de volgende voorzieningen: Bad, Mechanische ventilatie, Douche, Dakraam, Toilet.

Beschrijving

Wonen in de populaire wijk Rijnvliet: Veldkersvliet 23, Utrecht

Sta je te popelen om neer te strijken in een modern, goed onderhouden huis in een groene en kindvriendelijke wijk? Zet je schrap, want deze riante tussenwoning uit 2020 aan Veldkersvliet 23 in Utrecht zou zomaar eens al jouw woonwensen kunnen vervullen. Hier geniet je van opvallend veel gemak, ruimte om te leven én een fijne sfeer – klassieke kwaliteiten, maar dan in een hedendaags jasje gestoken.
Veldkersvliet 23 ligt in het gewilde Rijnvliet, een wijk die bekendstaat om de ruime opzet, het vele groen en het sterke gemeenschapsgevoel. Kinderen spelen veilig buiten, scholen en winkels zijn op loopafstand en je bent zo bij de uitvalswegen richting de stad of verder Nederland in.
Rijnvliet is een groene en duurzame wijk in Utrecht, bekend om haar unieke voedselbos waar bewoners zelf fruit, noten en kruiden kunnen plukken. De wijk combineert rustig wonen met veel natuur, terwijl voorzieningen, scholen en uitvalswegen dichtbij zijn. Een ideale plek voor wie comfortabel wil wonen in een toekomstgerichte, groene omgeving.

Je stapt de woning binnen via een uitnodigende voortuin. In de hal valt direct de verzorgde afwerking op; denk aan strakke lijnen, een moderne garderobekast voor alle jassen en tassen, en een keurige meterkast. Onderweg naar het woongedeelte kom je eerst langs een fris afgewerkte toiletruimte met hangend toilet en fonteintje.
Loop door en laat je verrassen door de lichte, tuingerichte woonkamer. Dankzij de openslaande deuren wordt binnen buiten, terwijl de vloerverwarming onder de smaakvolle pvc-vloer ervoor zorgt dat je hier het hele jaar door behaaglijk woont.
De open keuken vormt een echte eyecatcher aan de voorzijde van het huis. Houd je van koken? Goed nieuws! Deze luxe, greeploze keuken is voorzien van een stoer natuurstenen werkblad, inductiekookplaat, krachtige afzuigkap, vaatwasser, combi-magnetron en een ruime koel-vriescombinatie. Hier tover je moeiteloos de lekkerste maaltijden op tafel, terwijl je in contact blijft met familie of vrienden aan de eettafel.
Via de openslaande deuren loop je zo de royale achtertuin (74 m2!) in, gelegen op het westen, ideaal voor die zonnige borrel in de namiddag. De tuin vraagt nauwelijks onderhoud, biedt ruimte voor kinderen om te ravotten en beschikt bovendien over een vrijstaande houten berging en een handige achterom.

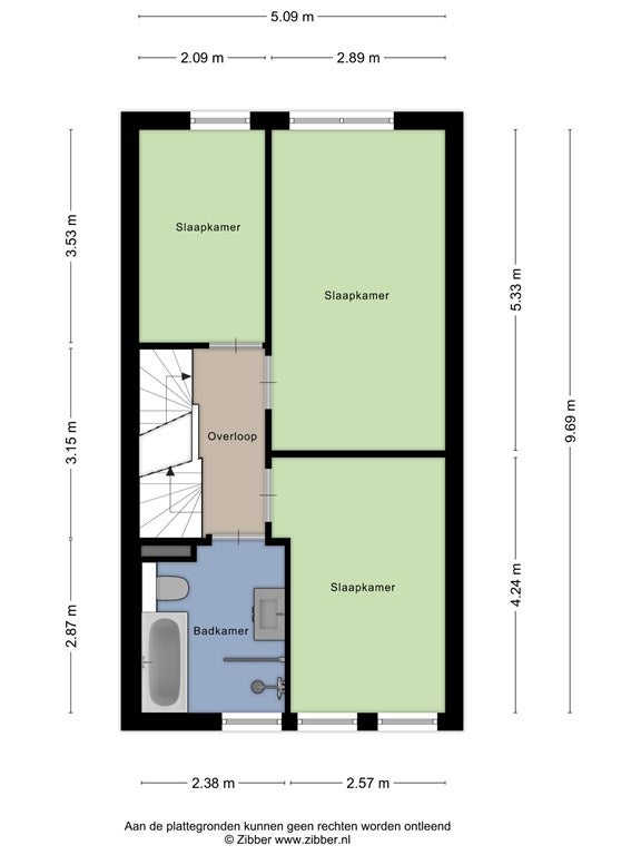
Op de eerste verdieping vind je drie prettige slaapkamers, allemaal voorzien van voldoende lichtinval. De badkamer is echt een plaatje: een ruime inloopdouche, een ligbad, eigentijds wastafelmeubel en een tweede, modern hangend toilet completeren deze comfortabele ruimte.

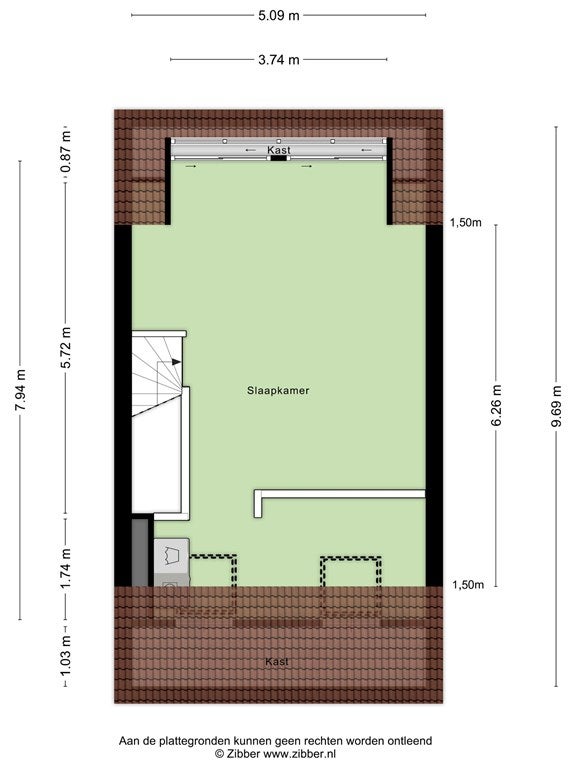
En dan de kers op de taart: de zolderverdieping, uitgerust met een royale vierde slaapkamer met dakkapel. Zin in een thuiskantoor, game room of mooie logeerkamer? Alles kan! Verder vind je op deze etage een praktische wasruimte, keurig weggewerkt en mét extra opbergruimte, zodat het huishouden als vanzelf loopt.

Deze woning krijgt niet voor niets een energielabel A. Dankzij uitstekende isolatie, stadsverwarming en recente buitenschilderwerken (2024) kun je rekenen op lage energielasten en weinig onderhoud. Extra handig zijn de elektrische rolluiken bij de dakkapel, prettig tijdens warme zomerdagen.
Ben je op zoek naar een moderne, energiezuinige woning waar je zó in kunt trekken, voorzien van alle luxe en comfort die je mag verwachten anno nu? Grijp dan je kans! Wie weet begin jij binnenkort aan een heerlijk nieuw hoofdstuk op Veldkersvliet 23, Utrecht.

Neem gerust contact op voor een bezichtiging, dit huis wil je niet missen!

DISCLAIMER
Hoewel deze informatie met de grootst mogelijke zorg is samengesteld, kunnen hieraan geen rechten worden ontleend. Wij aanvaarden geen aansprakelijkheid voor eventuele onjuistheden of onvolledigheden. Wij adviseren geïnteresseerden om zelf onderzoek te doen naar de juistheid van de verstrekte gegevens.

Overdracht

Vraagprijs
€ 775.000 k.k.
Aangeboden sinds
26-01-2026
Status
Beschikbaar
Beschikbaar
In overleg
Onderhoudsstaat
Zeer goed

Oppervlakte en inhoud

Woonoppervlakte
135 m²
Perceeloppervlakte
135 m²
Inhoud
478 m³

Bouw

Type woning
Huis
Soort woning
Tussenwoning (rijtjeshuis), Eengezinswoning
Soort bouw
Bestaande bouw
Bouwjaar
2020
Ligging
  • Aan een rustige weg
  • In een woonwijk

Indeling

Aantal kamers
5
Aantal slaapkamers
4
Aantal badkamers
1
Aantal woonlagen
3
Voorzieningen
  • Bad
  • Mechanische ventilatie
  • Douche
  • Dakraam
  • Toilet

Buitenruimte

Balkon
Niet aanwezig
Tuin
Aanwezig (61 m², gelegen op het westen)
Tuinbeschrijving
achtertuin
Achterom
Aanwezig
Dakterras
Niet aanwezig

Energie

Isolatie
Volledig geïsoleerd
Verwarming
Stadsverwarming, Gedeeltelijke vloerverwarming
Warm water
Stadsverwarming
Energielabel
A

Bergruimte

Schuur/Berging
Aanwezig

Parkeergelegenheid

Aanwezig
Ja
Soort parkeergelegenheid
Openbaar
Meld een probleem met deze woning