Contact met de makelaar

Deze woning is gevonden buiten ons eigen netwerk. Met de knop hieronder kom je direct bij de aanbieder terecht.

Nieuw

Nieuwborgstraat 133 B

Bekijk kaart
5922 VC Venlo (Vastenavondkamp-Zuid)
€ 375.000 k.k.
  • 148 m²
  • 7 kamers
  • 2002

Samenvatting

  • Deze woning wordt sinds 27 januari 2026 aangeboden door VeTeBe B.V;
  • De tussenwoning heeft een woonoppervlakte van 148 m² en beschikt over 7 kamers, waarvan 4 slaapkamers;
  • De woning is gebouwd In 2002 en ligt in de buurt Vastenavondkamp-Zuid in Venlo.

Beschrijving

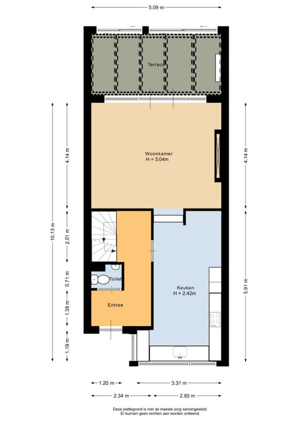
Deze ruime en praktische hoekwoning heeft een aantrekkelijke drive-in garage en biedt de mogelijkheid voor 4 slaapkamers. De woning beschikt over een eigen oprit en een slimme indeling over meerdere verdiepingen, ideaal voor gezinnen, thuiswerkers of hobbyisten. Op de begane grond bevindt zich een open keuken met uitzicht op de straat, een lichte woonkamer en een grote serre die extra leefruimte biedt. De woning bevat 3 slaapkamers, met de optie voor een vierde op de tweede verdieping. De omheinde achtertuin is bereikbaar via de serre en beschikt over een vrije achterom. Met zonnepanelen, kunststof en houten kozijnen met dubbel glas, biedt de woning comfort en mogelijkheid tot groei. Gelegen aan een rustige weg, dichtbij voorzieningen.

Overdracht

Vraagprijs
€ 375.000 k.k.
Aangeboden sinds
27-01-2026
Status
Beschikbaar
Beschikbaar
Per direct

Oppervlakte en inhoud

Woonoppervlakte
148 m²
Perceeloppervlakte
162 m²

Bouw

Type woning
Huis
Soort woning
Tussenwoning (rijtjeshuis), Eengezinswoning
Soort bouw
Bestaande bouw
Bouwjaar
2002

Indeling

Aantal kamers
7
Aantal slaapkamers
4
Aantal badkamers
1

Buitenruimte

Dakterras
Niet aanwezig

Energie

Energielabel
A
Meld een probleem met deze woning