Contact met de aanbieder

Deze woning is gevonden buiten ons eigen netwerk. Via de knop hieronder ga je direct naar de website van de aanbieder.

Renzo Pianolijn 13

Bekijk kaart
2728 AD Zoetermeer (Noordhove-West)
€ 699.000 k.k.
  • 187 m²
  • 6 kamers
  • 2002

Samenvatting

  • Deze woning wordt sinds 2 maanden aangeboden door 88 Makelaars;
  • De geschakelde woning heeft een woonoppervlakte van 187 m² en beschikt over 6 kamers, waarvan 4 slaapkamers;
  • De woning is gebouwd In 2002 en ligt in de buurt Noordhove-West in Zoetermeer.

Beschrijving

MODERNE WOON-WERKCOMBINATIE MET DAKTERRAS, PATIO, EN EIGEN PARKEERPLAATS

Ruim wonen? Of liever wonen én werken op één locatie? Dit uitstekend onderhouden, multifunctionele woonobject met eigen parkeergelegenheid maakt het mogelijk. Met o.a. een royale werk-/praktijkruimte op de begane grond én een complete woning erboven, biedt dit huis volop flexibiliteit voor diverse woon- en werkcombinaties.

Indeling
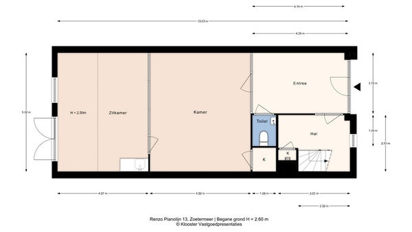
Op de begane grond bevindt zich een praktische multifunctionele ruimte met eigen entree, separaat toilet en twee royale kamers. De achterruimte beschikt over openslaande deuren naar de onderhoudsvriendelijke patiotuin en toegang tot de stenen (fiets)berging. Ideaal voor bijvoorbeeld werken aan huis, een praktijkruimte of zelfs als dubbele bewoning voor een ouder of thuiswonend kind.

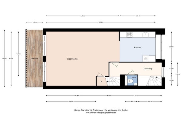
De eerste verdieping is verrassend ruim met een lichte woonkamer en aangrenzend zonneterras op het westen, waar je tot in de late uurtjes heerlijk van de zon kunt genieten. Aan de voorzijde vind je de half open keuken met moderne inbouwapparatuur en vrij uitzicht over de omgeving.

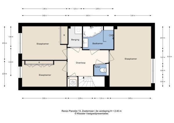
De tweede verdieping biedt drie goed bemeten slaapkamers, een luxe badkamer en een aparte toiletruimte. De woning is bovendien uitstekend gelegen: direct tegenover winkelcentrum Noordhove, op loopafstand van basisscholen, het wijkpark, gezondheidscentrum én nabij het plassengebied aan de noordzijde van Zoetermeer.

Indeling
Begane grond
Voortuin met parkeergelegenheid op eigen terrein (ruimte voor meerdere auto's). Entree met ruime hal en separate toiletruimte. Via een tussenhal met trapopgang en meterkast toegang tot de eerste multifunctionele ruimte met vaste kast. Doorloop naar de tweede multifunctionele ruimte met openslaande deuren naar de patiotuin en toegang tot de stenen berging.
Eerste verdieping

Overloop met separate toiletruimte. Ruime, lichte woonkamer met schuifpui naar het dakterras op het westen met vrij uitzicht over groen en tuinen. De verdieping is luxe afgewerkt met een visgraatvloer en strak gestuukte wanden en plafonds. De moderne half open keuken aan de voorzijde is voorzien van inbouwapparatuur, waaronder een vaatwasser, afzuigkap en gaskookplaat.
Tweede verdieping

Ruime overloop met CV-kast. Royale master bedroom over de volle breedte van de woning. Luxe badkamer met inloop(regen)douche, ligbad, wastafelmeubel met spiegel én handdoekenradiator. Separate 3e toiletruimte en praktische, betegelde wasruimte. Twee extra slaapkamers aan de achterzijde, waarvan één met schuifdeurkast.

Bijzonderheden

  • Bouwjaar: 2002
  • Woonoppervlakte: 187 m²
  • Perceel: 147 m² eigen grond
  • Energielabel: A
  • Aantal kamers: 5 (inclusief 3 slaapkamers + 2 multifunctionele kamers)
  • Multifunctioneel object: ideaal voor wonen en werken of dubbele bewoning
  • Twee huisnummers (13 en 15) i.v.m. gecombineerde woon-/werkmogelijkheden
  • Moderne keuken en luxe badkamer + 3 toiletruimtes
  • Patio én dakterras op het westen
  • Eigen parkeergelegenheid (geschikt voor 2 auto’s)
  • Woningbrede stenen (fietsen)berging
  • Uitstekend bereikbaar: tegenover winkelcentrum Noordhove, dichtbij OV, scholen, zorgvoorzieningen en park
  • Groen en recreatie nabij: plassengebied (loopafstand) en wijkpark direct naast de woning
  • Aanvaarding: kan per direct

Enthousiast geworden naar deze woning? Neem dan meteen contact op voor een bezichtiging!

Aan de voorzijde liggen de voortuin en de eigen parkeerplaatsen voor één tot twee auto’s. De entreehal is ruim opgezet en beschikt over een toiletruimte. Vanuit hier kom je in de tussenhal met meterkast en trapopgang naar de eerste verdieping. De eerste kamer op deze etage is voorzien van een vaste kast en staat in verbinding met de tweede, aan de achterzijde gelegen ruimte met openslaande deuren naar de patiotuin.

De overloop geeft toegang tot een separate toiletruimte en de royale woonkamer. Deze sfeervolle leefruimte heeft een schuifpui naar het zonnige dakterras op het westen, waar je tot in de avond kunt genieten van de zon en het uitzicht over de tuinen en het park. De gehele verdieping is afgewerkt met een elegante visgraatvloer en strak gestuukte wanden en plafonds. De moderne halfopen keuken aan de voorzijde is voorzien van diverse inbouwapparatuur, waaronder een vaatwasser, gaskookplaat en afzuigkap. Vanuit de keuken heb je vrij zicht over het parkeerterrein aan de voorzijde.

Ruime overloop, kast met CV-combiketel. Woning brede master bedroom aan de voorzijde. Luxe badkamer met ruime inloop(regen)douche, een ligbad, een wastafelmeubel met spiegel en een handdoekenradiator. Er is een separaat 3e toilet en een praktische, betegelde wasruimte. Aan de achterzijde liggen de overige 2 slaapkamers waarvan één met schuifdeurkast.

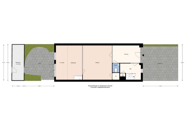
Perceeloppervlak: 147 m² eigen grond

Woonoppervlakte: circa 187 m²

Geschikt voor combinatie van wonen en werken of dubbele bewoning

Twee huisnummers (13 en 15) door de gescheiden gebruiksmogelijkheden

Begane grond eenvoudig om te vormen tot zelfstandige woonruimte (zie alternatieve plattegrond)

Luxe badkamer, moderne keuken en drie toiletten

Patio en royaal dakterras op het westen

Eigen parkeerplaatsen voor twee auto’s

Stenen berging over de volle breedte van de woning

Oplevering in overleg

Overdracht

Vraagprijs
€ 699.000 k.k.
Aangeboden sinds
24-11-2025
Status
Beschikbaar
Beschikbaar
Per direct
Onderhoudsstaat
Zeer goed

Oppervlakte en inhoud

Woonoppervlakte
187 m²
Perceeloppervlakte
555 m²
Inhoud
610 m³

Bouw

Type woning
Huis
Soort woning
Geschakelde woning, Eengezinswoning
Soort bouw
Bestaande bouw
Bouwjaar
2002

Indeling

Aantal kamers
6
Aantal slaapkamers
4
Aantal badkamers
1
Aantal woonlagen
3
Voorzieningen
  • Bergruimte
  • Toilet

Buitenruimte

Balkon
Aanwezig
Tuin
Aanwezig (26 m²)
Tuinbeschrijving
achtertuin
Achterom
Aanwezig
Dakterras
Niet aanwezig

Energie

Energielabel
A

Bergruimte

Schuur/Berging
Aanwezig

Parkeergelegenheid

Aanwezig
Ja
Soort parkeergelegenheid
Openbaar

Garage

Aanwezig
Nee
Meld een probleem met deze woning