Woning verhuren

Contact met de makelaar

Deze woning is gevonden buiten ons eigen netwerk. Met de knop hieronder kom je direct bij de aanbieder terecht.

Nieuw

Te huur: Appartement Akerkhof in Groningen

Bekijk kaart
9711 JB (Binnenstad-Zuid)
€ 1.065 per maand
  • 32 m²
  • 1 kamer
  • 2006

Beschrijving

Per 01-02-2026 komt deze studio beschikbaar aan de Akerkhof 10F

Locatie
De woning is gelegen in de binnenstad van Groningen. In het centrum het je een breed scala aan winkels, restaurants en sportscholen. Ook het hoofdstation is binnen enkele minuten te bereiken met de fiets.

Indeling
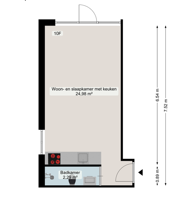
De studio is circa 30m2. Woon-slaapkamer met open keuken en eigen badkamer.

Huurprijs: De huurprijs bedraagt: €1065,- incl. € 125,- voorschot voor de kosten gas, water, elektra, internet/tv, gebruik wasmachine.

Vanwege het hoge aantal aanvragen kunnen we niet op iedereen reageren. Wij nodigen doorgaans circa 5 kandidaten uit voor een bezichtiging. We kunnen helaas niet iedereen persoonlijk beantwoorden of uitnodigingen.

Overdracht

Huurprijs
€ 1.065 per maand
  • Inclusief: Elektra, Gas, Water
Aangeboden sinds
13-01-2026
Status
Te huur
Beschikbaar
In overleg
Borg
€ 1.065
Onderhoudsstaat
Zeer goed

Oppervlakte en inhoud

Woonoppervlakte
32 m²
Inhoud
64 m³

Bouw

Type woning
Appartement
Soort woning
Bovenwoning, Appartement
Soort bouw
Bestaande bouw
Bouwjaar
2006

Indeling

Aantal kamers
1
Aantal slaapkamers
1
Aantal badkamers
1
Aantal woonlagen
1
Verdieping
1

Buitenruimte

Balkon
Niet aanwezig
Dakterras
Niet aanwezig

Energie

Energielabel
A
Meld een probleem met deze woning