Niet beschikbaar

De woning die je wilt bekijken is niet langer beschikbaar. Je bekijkt nu het woningaanbod in dezelfde stad.

Woning verhuren

Contact met de makelaar

Deze woning is gevonden buiten ons eigen netwerk. Met de knop hieronder kom je direct bij de aanbieder terecht.

Transparante huurprijs

De makelaar, die deze woning aanbiedt, heeft een gedetailleerde opbouw van de huurprijs gegeven. Hierdoor is inzichtelijk wat de totale huurprijs is (inclusief bijkomende kosten zoals elektriciteit, internet of servicekosten), zodat jij weet waar je aan toe bent. Als een makelaar de totale huurprijs invult, noemen wij dit een transparante huurprijs.

Wij doen er alles aan om jou duidelijkheid te geven over de te betalen huurprijs. Heb je toch twijfels of zie je een andere huurprijs op de website van de makelaar? Laat het ons weten.

Meer informatie

Te huur: Appartement Minderbroedersstraat in Hulst

Bekijk kaart
4561 DA (Binnenstad)
Kale huurpijs: € 1.275 per maand
  • 69 m²
  • 3 kamers
  • Kaal

Beschrijving

Stadsappartement in het nieuwe complex Het Werfhuis, gelegen aan het 's-Gravenhofplein in het centrum van Hulst. In de directe omgeving van de nieuwe bioscoop, gezellige terrasjes en diverse restaurants.
Dit hoekappartement bevindt zich op de tweede etage en heeft vrij uitzicht over het plein en over de stadswallen.

Vanuit de lift komt u in de centrale hal en via de galerij bereikt u de voordeur van het appartement.

De woning is voorzien van vloerverwarming, welke wordt aangestuurd door een warmtepomp. In de zomer kunt u met dit systeem ook koelen.

Verder hoort bij het appartement nog een berging op de begane grond. Ook heeft u een eigen parkeerplaats op een afgesloten binnenterrein.

Het complex is van 2025 en heeft energielabel A+++

De wanden zijn geschilderd. De vloerbekleding dient u als huurder zelf te kiezen en (laten) installeren.

Servicekosten € 49,- per maand, bestaande uit € 45,- voor onderhoud, schoonmaak, verlichting van de algemene ruimtes en € 4,- voor uitbreiding van het CV onderhoudsabonnement naar avond- en weekendservice.

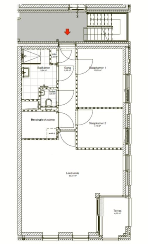
Indeling:

Hal met toegang naar de 2 slaapkamers, badkamer, toilet, berging en woonkamer. Woonkamer met open keuken en schuifpui naar het terras. Grote slaapkamer met aansluitende dressroom.

Badkamer met inloopdouche, wastafelmeubel en tweede toilet.

Berging met wasmachineaansluiting. Hier is ook de warmtepomp geplaatst waarmee u de woning verwarmt en in de zomer kunt koelen.

De keuken is voorzien van Bosch inbouwapparatuur: inductiekookplaat, combi-oven, afzuigkap, koelkast en vaatwasser.

Overdracht

Kale huurprijs
€ 1.275 per maand
Aangeboden sinds
04-11-2025
Status
Te huur
Beschikbaar
Per 01-02-2026
Huurovereenkomst
Onbepaalde tijd
Looptijd
Minimaal 24 maanden
Borg
€ 1.324
Interieur
Kaal
Onderhoudsstaat
Zeer goed

Prijsopbouw

Kale huurprijs
€ 1.275

Overige kosten

Overige kosten
€ 49
Totale huurprijs
€ 1.324

Nog zelf regelen: gas, water, elektriciteit, internet, televisie, stoffering en meubels

Oppervlakte en inhoud

Woonoppervlakte
69 m²

Bouw

Type woning
Appartement
Soort woning
Galerijflat, Appartement
Soort bouw
Nieuwbouw
Bouwjaar
2025
Ligging
  • In een woonwijk
  • Vrij uitzicht

Indeling

Aantal kamers
3
Aantal slaapkamers
2
Aantal badkamers
1
Aantal woonlagen
1
Voorzieningen
  • Kabel TV
  • Lift
  • Glasvezelaansluiting
  • Intercom
  • Rioolaansluiting
  • Douche
  • Schuifdeuren
  • Bergruimte
  • Toilet

Buitenruimte

Balkon
Aanwezig
Tuin
Niet aanwezig
Dakterras
Niet aanwezig

Energie

Isolatie
Volledig geïsoleerd
Verwarming
Volledige vloerverwarming, Warmtepomp
Energielabel
A+++

Bergruimte

Schuur/Berging
Niet aanwezig

Parkeergelegenheid

Aanwezig
Ja
Soort parkeergelegenheid
Op afgesloten terrein

Garage

Aanwezig
Nee

Huurvoorwaarden

Roken toegestaan
Nee
Huisdieren toegestaan
Nee
Inkomenseis
€ 3.200
Meld een probleem met deze woning