Contact met de makelaar

Deze woning is gevonden buiten ons eigen netwerk. Met de knop hieronder kom je direct bij de aanbieder terecht.

Nieuw

Voorstraat

Bekijk kaart
3311 CW Dordrecht (Lombard en omgeving)
€ 439.000 k.k.
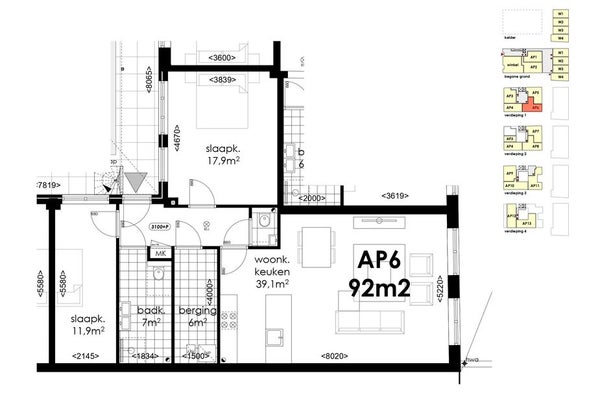
  • 92 m²
  • 3 kamers
  • 2025

Samenvatting

  • Deze woning wordt sinds 16 december 2025 aangeboden door ZOOMER Makelaardij;
  • De galerijflat heeft een woonoppervlakte van 92 m² en beschikt over 3 kamers, waarvan 2 slaapkamers;
  • De woning is gebouwd In 2025 en ligt in de buurt Lombard en omgeving in Dordrecht.

Beschrijving

Overdracht

Vraagprijs
€ 439.000 k.k.
Aangeboden sinds
16-12-2025
Status
Beschikbaar
Beschikbaar
Per direct

Oppervlakte en inhoud

Woonoppervlakte
92 m²

Bouw

Type woning
Appartement
Soort woning
Galerijflat
Soort bouw
Nieuwbouw
Bouwjaar
2025

Indeling

Aantal kamers
3
Aantal slaapkamers
2
Aantal badkamers
1

Buitenruimte

Dakterras
Niet aanwezig

Energie

Energielabel
A+
Meld een probleem met deze woning