Woning verhuren

Contact met de makelaar

Deze woning is gevonden buiten ons eigen netwerk. Met de knop hieronder kom je direct bij de aanbieder terecht.

Te huur: Huis Eilardaheerd 36 in Groningen

Bekijk kaart
9736 BC (Beijum-Oost)
€ 1.450 per maand
  • 108 m²
  • 5 kamers
  • Gestoffeerd

Beschrijving

TE HUUR

In de groene en kindvriendelijke wijk Beijum ligt deze ruime, geheel gerenoveerde woning aan de Eilardaheerd. Met maar liefst 113 m² woonoppervlak, verdeeld over 4 slaapkamers een luxe badkamer. De woning is geheel voorzien houtlook PVC vloer, en beschikt over energielabel B.

Scholen en andere dagelijkse voorzieningen zijn dichtbij, en binnen 15 minuten fiets je naar het bruisende centrum van Groningen. Ook met de auto en het openbaar vervoer is de bereikbaarheid uitstekend. Een fijne plek om comfortabel en zorgeloos te wonen!

INDELING

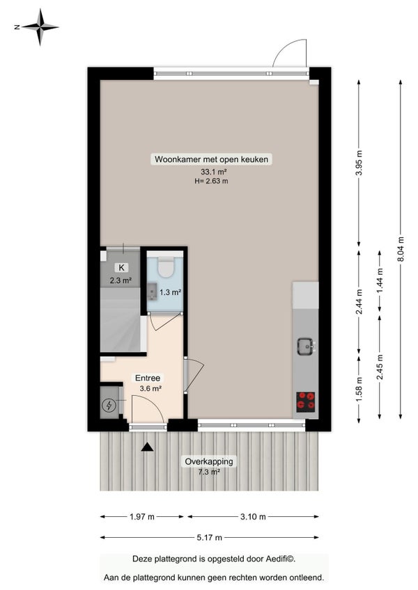
Begane grond:

Binnenkomst in de hal, die toegang biedt tot de toiletruimte en de trap naar de verdieping, waaronder extra bergruimte is gecreëerd. De gehele begane grond is voorzien van vloerverwarming. Vanuit de hal loop je door naar de nieuw geplaatste keuken (2025), met een recht keukenblok met wasbak, vaatwasser, koelkast en combi-oven, voorzien van veel opbergruimte en een inductiekookplaat. De keuken loopt naadloos over in de sfeervolle woonkamer, waar dankzij de grote raampartij veel natuurlijk licht naar binnen valt. Door de open indeling blijf je altijd in contact met de rest van het huis, wat zorgt voor een fijne en verbonden sfeer. De woonkamer geeft toegang tot de ruime, zonnige tuin.

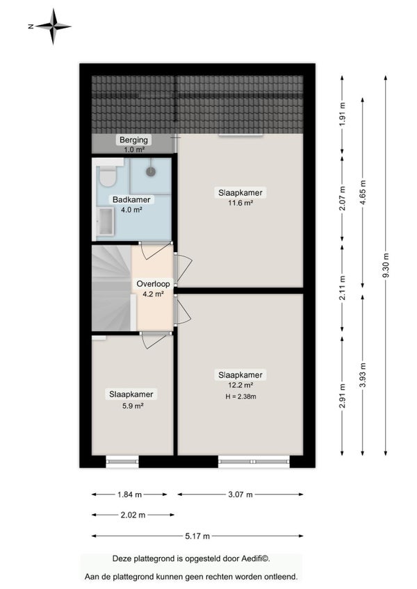
Eerste verdieping:

De overloop biedt toegang tot drie slaapkamers van 12.6, 12,2 en 5,9 m². De compleet vernieuwde badkamer (2025) is ingericht met een inloopdouche, wastafelmeubel met spiegel en een tweede toilet.

Tweede verdieping:

Op deze verdieping vind je nog een ruime overloop met wasmachine aansluiting en vierde slaapkamers van 14,9 m².

BUITEN

De zonnige tuin waar je in de middag en avond volop van de zon kunt genieten. De tuin is volledig betegeld en aan de zijkanten voorzien van groenstroken die zorgen voor een natuurlijke uitstraling. De tuin is middels een achterom bereikbaar en er is een ruime berging aanwezig, ideaal voor het opbergen van fietsen, tuingereedschap en andere spullen.

OMGEVING

De woning bevindt zich in de groene en kindvriendelijke wijk Beijum. Er zijn volop voorzieningen binnen handbereik, zo vind je in de directe omgeving diverse basisscholen, sportvoorzieningen, een gezondheidscentrum en een compleet winkelcentrum waar je terecht kunt voor de dagelijkse boodschappen. Voor recreatie is het nabijgelegen natuur- en sportgebied Kardinge een groot pluspunt. Daarnaast ligt op korte afstand een prachtig park met vijvers, een fontein en bosrijke wandelpaden, ideaal voor een ontspannen wandeling of om even tot rust te komen. Wil je naar de binnenstad van Groningen? Met je fiets ben je binnen ongeveer 15 minuten in het bruisende centrum. Ook met de auto is de bereikbaarheid uitstekend, via de ringweg ben je snel op de A7 of A28. En met meerdere bushaltes vlakbij, die verbindingen bieden naar verschillende delen van de stad, is het openbaar vervoer ook goed geregeld.

HUURINFORMATIE

Huurprijs € 1450,-
Waarborgsom: € 2900,-
Beschikbaar per 1 januari 2026

Bij deze woning geldt een inkomenseis. U dient minimaal 3,5 keer de huurprijs bruto p.m. te verdienen (exclusief vakantietoeslag, eventuele 13e maand en vaste bonussen). Heeft u een partner? Het tweede inkomen mag u voor 75% meetellen.

Deze informatie is door ons met de nodige zorgvuldigheid samengesteld. Geen aansprakelijkheid wordt aanvaard voor enige onvolledigheid, onjuistheid of anderszins, of de consequenties daarvan. Alle maten en afmetingen zijn indicatief en niet exact volgens de NEN-2580 norm.

Overdracht

Huurprijs
€ 1.450 per maand
Aangeboden sinds
19-12-2025
Status
Te huur
Beschikbaar
Per direct
Huurovereenkomst
Onbepaalde tijd
Looptijd
Minimaal 12 maanden
Borg
€ 2.900
Interieur
Gestoffeerd
Onderhoudsstaat
Goed

Oppervlakte en inhoud

Woonoppervlakte
108 m²
Perceeloppervlakte
149 m²
Inhoud
276 m³

Bouw

Type woning
Huis
Soort woning
Tussenwoning (rijtjeshuis), Eengezinswoning
Soort bouw
Bestaande bouw
Bouwjaar
1981
Ligging
In een woonwijk

Indeling

Aantal kamers
5
Aantal slaapkamers
4
Aantal badkamers
1
Aantal woonlagen
3
Voorzieningen
  • Douche
  • Toilet

Buitenruimte

Balkon
Niet aanwezig
Tuin
Aanwezig (101 m²)
Achterom
Aanwezig
Dakterras
Niet aanwezig

Energie

Isolatie
Dubbele beglazing, Dakisolatie, Muurisolatie
Energielabel
B

Bergruimte

Schuur/Berging
Aanwezig

Parkeergelegenheid

Aanwezig
Ja
Soort parkeergelegenheid
Openbaar

Garage

Aanwezig
Nee

Huurvoorwaarden

Roken toegestaan
Nee
Huisdieren toegestaan
Nee
Meld een probleem met deze woning