Contact met de makelaar

Deze woning is gevonden buiten ons eigen netwerk. Met de knop hieronder kom je direct bij de aanbieder terecht.

Nieuw

Maanstraat 16 A

Bekijk kaart
6446 XE Brunssum (Treebeek-Zuid)
€ 209.000 k.k.
  • 95 m²
  • 3 kamers
  • 1997

Samenvatting

  • Deze woning wordt sinds 28 januari 2026 aangeboden door Mullens Makelaars en Taxateurs;
  • De tussenwoning heeft een woonoppervlakte van 95 m² en beschikt over 3 kamers, waarvan 2 slaapkamers;
  • De woning is gebouwd In 1997 en ligt in de buurt Treebeek-Zuid in Brunssum.

Beschrijving

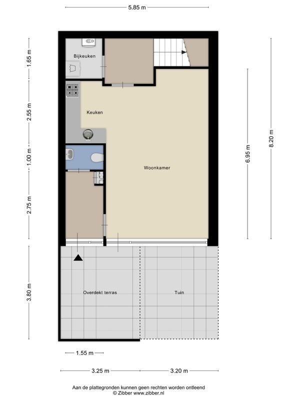
In het mooie stadsdeel Treebeek, nabij alle voorzieningen, ligt dit appartement van 95 m2 in een karakteristiek voormalig schoolgebouw. De doorzon woonkamer met open keuken is maar liefst 33 m2 groot. Het appartement heeft twee slaapkamers van respectievelijk 16 en 10 m2, en een ruime badkamer met ligbad en toilet. Geniet van de eigen tuin met een overdekt terras. Daarnaast beschikt het over een berging in het souterrain, een gemeenschappelijke fietsenberging en een ontmoetingsruimte voor socialisatie met medebewoners. Bewoners kunnen gebruikmaken van een parkeerplaats en het complex is toegankelijk voor ouderen en minder validen, met de mogelijkheid om een traplift te installeren. Dit kleinschalige appartementencomplex, dat oorspronkelijk uit 1939 dateert, werd in 1996 verbouwd en heeft een hechte gemeenschap.

Overdracht

Vraagprijs
€ 209.000 k.k.
Aangeboden sinds
28-01-2026
Status
Beschikbaar
Beschikbaar
Per direct

Oppervlakte en inhoud

Woonoppervlakte
95 m²

Bouw

Type woning
Huis
Soort woning
Tussenwoning (rijtjeshuis), Eengezinswoning
Soort bouw
Bestaande bouw
Bouwjaar
1997

Indeling

Aantal kamers
3
Aantal slaapkamers
2
Aantal badkamers
1

Buitenruimte

Dakterras
Niet aanwezig

Energie

Energielabel
C
Meld een probleem met deze woning