Contact met de makelaar

Deze woning is gevonden buiten ons eigen netwerk. Met de knop hieronder kom je direct bij de aanbieder terecht.

Beerseweg

Bekijk kaart
5087 TP Diessen (Verspreide huizen Baarschot)
€ 2.995.000 k.k.
  • 313 m²
  • 6 kamers
  • 1965

Samenvatting

  • Deze woning wordt sinds 3 maanden aangeboden door Fynhuys Makelaars;
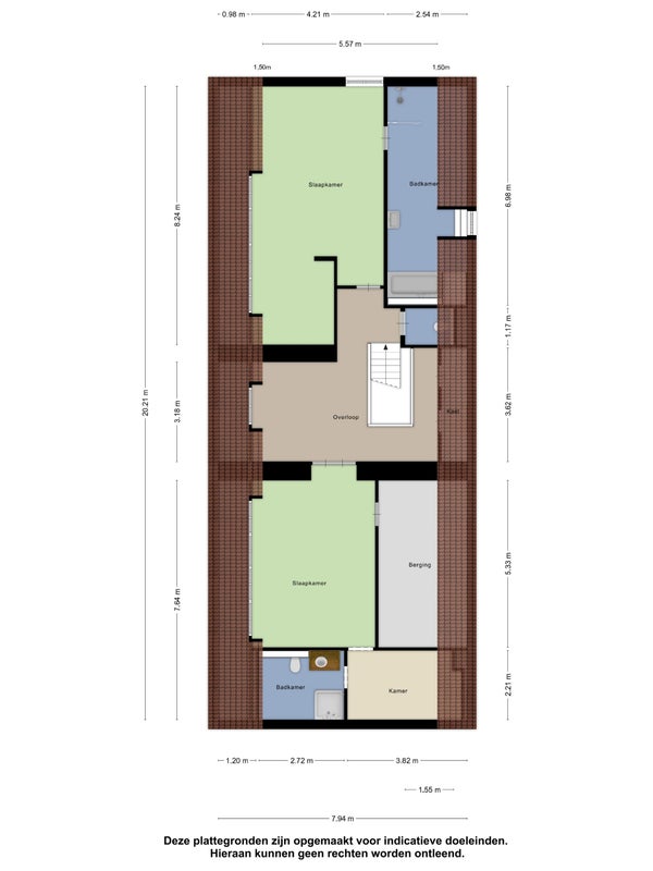
  • De tussenwoning heeft een woonoppervlakte van 313 m² en beschikt over 6 kamers, waarvan 3 slaapkamers;
  • De woning is gebouwd In 1965 en ligt in de buurt Verspreide huizen Baarschot in Diessen.

Beschrijving

Appel Lodge Buitenplaats omvat een gerenoveerde woonboerderij, koetshuis, tuinmanswoning en zes luxe lodges. De woonboerderij heeft een moderne indeling met een ruime woonkamer, woonkeuken, drie slaapkamers en een zolder. Het koetshuis is geschikt voor bewoning en biedt twee slaapkamers. De tuinmanswoning kan als appartement dienen. De lodges zijn duurzaam gebouwd, voorzien van luxe materialen en hebben een eigen keuken en badkamer. Dit unieke object ligt omgeven door natuur, op korte afstand van Hilvarenbeek en Tilburg. Ideaal voor verhuur en recreatie.

Reageer op tijd op nieuw woningaanbod

Meer dan de helft van de reacties komt binnen 48 uur. Ontvang direct notificaties bij nieuw aanbod en reageer sneller met Pararius+.

Probeer Pararius+ 14 dagen € 0,01

Overdracht

Vraagprijs
€ 2.995.000 k.k.
Aangeboden sinds
08-10-2025
Status
Beschikbaar
Beschikbaar
In overleg

Oppervlakte en inhoud

Woonoppervlakte
313 m²
Perceeloppervlakte
2.589 m²

Bouw

Type woning
Huis
Soort woning
Tussenwoning (rijtjeshuis), Eengezinswoning
Soort bouw
Bestaande bouw
Bouwjaar
1965

Indeling

Aantal kamers
6
Aantal slaapkamers
3
Aantal badkamers
2

Buitenruimte

Dakterras
Niet aanwezig

Energie

Energielabel
C
Meld een probleem met deze woning