Woning verhuren

Contact met de makelaar

Deze woning is gevonden buiten ons eigen netwerk. Met de knop hieronder kom je direct bij de aanbieder terecht.

Nieuw

Te huur: Appartement Vismarkt in Groningen

Bekijk kaart
9712 CA (Binnenstad-Noord)
€ 1.380 per maand
  • 40 m²
  • 1 kamer
  • Gestoffeerd of gemeubileerd

Beschrijving

Per direct komen er twee appartementen met één slaapkamer beschikbaar aan de Vismarkt 7A in Groningen.
(Let op: de appartementen worden ongemeubileerd opgeleverd)

Locatie:
De appartementen zijn gelegen in de binnenstad van Groningen en bieden daarmee een perfecte woonlocatie. De stad beschikt over een breed scala aan winkels, restaurants, cafés en culturele hotspots. In de directe omgeving vind je bovendien diverse sportscholen, supermarkten en andere voorzieningen.

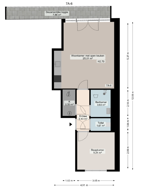
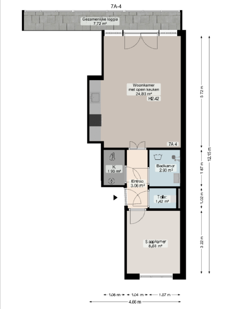
Indeling:
Bij binnenkomst van het appartement kom je terecht in de hal. Vanaf hier is de woonkamer, badkamer, apart toilet en de slaapkamer te bereiken. Ook is er nog een kleine bergruimte gelegen in het appartement. De ruime en lichte woonkamer met open keuken is voorzien van alle luxe inbouwapparatuur en heeft veel lichtinval van buitenaf. Vanaf hier is er een prachtig uitzicht op de binnenstad van Groningen.

Huurprijs en Borg:
De huurprijs voor Vismarkt 7a1 bedraagt: € 1379,84 per maand, inclusief een voorschot van €100,- voor water en elektra.
De huurprijs voor Vismarkt 7a5 bedraagt: € 1413,58 per maand, inclusief een voorschot van €100,- voor water en elektra.
De waarborgsom bedraagt één maand huur

Beschikbaarheid en huurperiode:
Beide appartementen zijn per direct beschikbaar. De huurovereenkomst wordt aangegaan voor onbepaalde tijd.

Interesse:
Reacties kunnen uitsluitend via onze website worden ingediend door te klikken op ‘Reageer op dit object’. Telefonische reacties kunnen wij helaas niet in behandeling nemen. De volgorde van binnengekomen reacties bepaalt welke kandidaten worden uitgenodigd voor de eerste selectie. Vanwege het grote aantal aanvragen kunnen wij niet op iedereen reageren. Wij nodigen doorgaans circa 5 kandidaten uit voor een bezichtiging. We kunnen helaas niet iedereen persoonlijk beantwoorden of uitnodigen.

Reageer op tijd op nieuw woningaanbod

Meer dan de helft van de reacties komt binnen 48 uur. Ontvang direct notificaties bij nieuw aanbod en reageer sneller met Pararius+.

Probeer Pararius+ 14 dagen € 0,01

Overdracht

Huurprijs
€ 1.380 per maand
  • Inclusief: Elektra, Gas, Water
Aangeboden sinds
08-01-2026
Status
Te huur
Beschikbaar
In overleg
Borg
€ 1.380
Interieur
Gestoffeerd of gemeubileerd
Onderhoudsstaat
Zeer goed

Oppervlakte en inhoud

Woonoppervlakte
40 m²
Inhoud
100 m³

Bouw

Type woning
Appartement
Soort woning
Bovenwoning, Appartement
Soort bouw
Bestaande bouw
Bouwjaar
1450

Indeling

Aantal kamers
1
Aantal slaapkamers
1
Aantal badkamers
1
Aantal woonlagen
1
Verdieping
2
Voorzieningen
Toilet

Buitenruimte

Balkon
Niet aanwezig
Dakterras
Niet aanwezig

Energie

Energielabel
A++++
Meld een probleem met deze woning