Woning verhuren

Contact met de makelaar

Deze woning is gevonden buiten ons eigen netwerk. Met de knop hieronder kom je direct bij de aanbieder terecht.

Nieuw

Te huur: Appartement Hogeschoorweg in Venlo

Bekijk kaart
5914 CH ('t Zand)
€ 1.200 per maand
  • 90 m²
  • 3 kamers
  • Gestoffeerd

Beschrijving

Te huur: luxe 3-kamerappartement met 2 slaapkamers op de vierde verdieping van appartementencomplex Maaszicht te Venlo

Bijzonderheden:
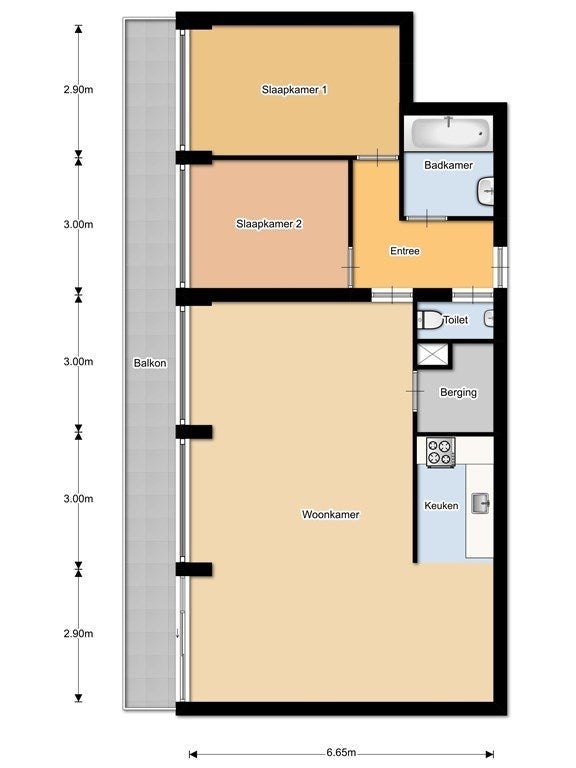
• Woonoppervlakte 95 m2
• Huurprijs 1.045,00
• Servicekosten 110,00
• Vergoeding stoffering en inventaris 45,00
• Label C
• Dubbele beglazing
• Inclusief parkeerplaats
• Luxe badkamer met bad en douche
• 2 slaapkamers
• Geheel is voorzien van lichte laminaatvloer
• Veel lichtinval
• Kleine balkon

Algemeen
Op de vierde verdieping gelegen ruime en verhuurde appartement met twee slaapkamers. Het appartement is voorzien van een riante woonkamer met halfopen keuken, twee slaapkamers en een kelderberging. Voldoende parkeervoorzieningen zijn rondom het appartementengebouw gelegen. Het appartementencomplex is gelegen in de wijk Meeuwbeemd op steenworp afstand gelegen van de Maas met goede uitvalswegen naar Eindhoven, Maastricht, Duitsland etc. Tevens is het centrum van Venlo op kort afstand gelegen maar ook een buurtwinkelcentra ligt in de directe nabijheid.

Begane grond:
Mooie entree met postkasten en bellentableau welke leidt tot de gemeenschappelijke hal met toegang naar het trappenhuis en dubbele lift.

Vierde verdieping:
Portaal met liften in het trappenhuis met toegang middels beveiligd deursysteem naar gemeenschappelijke gang. Op deze gang is de meterkast en separaat een muurkast met cv-installatie gelegen.

Appartement:
Via de voordeur komt u in de hal van het appartement. Vanuit hier zijn de separate toiletruimte, badkamer en twee slaapkamers toegankelijk. Tevens is de woonkamer vanuit de hal te bereiken. De woonkamer is ruim van opzet en staat in verbinding met de half-open keuken welke is voorzien van een inbouwkeuken met verscheidene inbouwapparatuur.

In de kelder van het gebouw beschikt het appartement over een separate kelderberging. Parkeren is mogelijk op een van de bijbehorende parkeerplaatsen voor de deur, langs de openbare weg of op het lager gelegen parkeerterrein.

Bij interesse graag mailen naar ******

Overdracht

Huurprijs
€ 1.200 per maand
Aangeboden sinds
14-10-2025
Status
Te huur
Beschikbaar
In overleg
Huurovereenkomst
Onbepaalde tijd
Interieur
Gestoffeerd
Onderhoudsstaat
Goed

Oppervlakte en inhoud

Woonoppervlakte
90 m²
Inhoud
235 m³

Bouw

Type woning
Appartement
Soort woning
Galerijflat, Appartement
Soort bouw
Bestaande bouw
Bouwjaar
1990
Ligging
  • In een woonwijk
  • Vrij uitzicht

Indeling

Aantal kamers
3
Aantal slaapkamers
2
Aantal badkamers
1
Aantal woonlagen
1
Voorzieningen
Toilet

Buitenruimte

Balkon
Aanwezig
Tuin
Niet aanwezig
Dakterras
Niet aanwezig

Energie

Energielabel
C

Bergruimte

Schuur/Berging
Aanwezig

Parkeergelegenheid

Aanwezig
Nee

Garage

Aanwezig
Nee

Huurvoorwaarden

Roken toegestaan
Nee
Huisdieren toegestaan
Nee
Doelgroep
Werkende
Inkomenseis
€ 4.000
Maximaal aantal bewoners
2
Meld een probleem met deze woning
Contact met de makelaar Bel