Niet beschikbaar

De woning die je wilt bekijken is niet langer beschikbaar. Je bekijkt nu het woningaanbod in dezelfde stad.

Contact met de makelaar

Deze woning is gevonden buiten ons eigen netwerk. Met de knop hieronder kom je direct bij de aanbieder terecht.

Verkocht onder voorbehoud

Willem de Rijkelaan 50

Bekijk kaart
2741 VN Waddinxveen (Oranjewijk Noord)
€ 375.000 k.k.
  • 114 m²
  • 5 kamers
  • 1961

Samenvatting

  • Deze woning wordt sinds 6 weken aangeboden door Gouwestad Makelaardij - Waddinxveen;
  • De maisonnette heeft een woonoppervlakte van 114 m² en beschikt over 5 kamers, waarvan 4 slaapkamers;
  • De woning is gebouwd In 1961 en ligt in de buurt Oranjewijk Noord in Waddinxveen;
  • De woning beschikt onder andere over de volgende voorzieningen: Kabel TV, Glasvezelaansluiting, Bergruimte, Toilet, Wasruimte.

Beschrijving

5-kamer appartement met fraaie, moderne uitstraling en... een achtertuin

Deze goed verzorgde én de afgelopen jaren fraai gemoderniseerde vijfkamermaisonnette is centraal, maar toch heerlijk rustig gelegen in Waddinxveen. De woning bestaat uit twee woonlagen en beschikt op de begane grond over twee slaapkamers en op de eerste verdieping over een woonkamer, keuken, badkamer en nog eens twee slaapkamers. Daarnaast zijn er twee balkons én een zonnige achtertuin aanwezig. Dit bijzondere appartement voelt dan ook meer als een woonhuis dan als een standaard appartement.

De woning ligt in Oranjewijk Noord, een rustige en groene wijk met alle voorzieningen binnen handbereik. Supermarkten, winkels, horeca en het NS-station zijn lopend te bereiken, net als scholen en sportaccommodaties. Uitvalswegen richting Gouda, Zoetermeer, Rotterdam en Utrecht liggen op slechts enkele minuten afstand.

Verkopers aan het woord
3,5 jaar lang hebben wij met veel plezier gewoond aan de Willem de Rijkelaan 50 in Waddinxveen. Toen wij de sleutel kregen, hebben we het huis flink onder handen genomen. Zo hebben we bijna het hele huis opnieuw laten stucen, vloerverwarming laten aanleggen op de bovenste etage en gekozen voor een warm en chic interieur. Door de jaren heen hebben wij natuurlijk nog veel meer vernieuwingen gedaan, zoals een nieuwe cv-ketel en een pergola met schaduwdoeken in de tuin. Voor ons was het ontzettend belangrijk dat deze woning zou voelen als een warm en fijn thuis, en in onze ogen is dat absoluut gelukt.
Het appartement bevindt zich in een prettig portiek, waar buren (geen huurders) respectvol met elkaar omgaan. Ook de omgeving hebben wij als zeer rustig ervaren. Wij hopen dat de nieuwe bewoners hier met net zoveel plezier zullen wonen als wij hebben gedaan.

ps. Tijdens het maken van de foto's waren er werkzaamheden gaande rondom de nieuwe beschoeiing langs de sloot en de bijbehoren tuinwerkzaamheden..

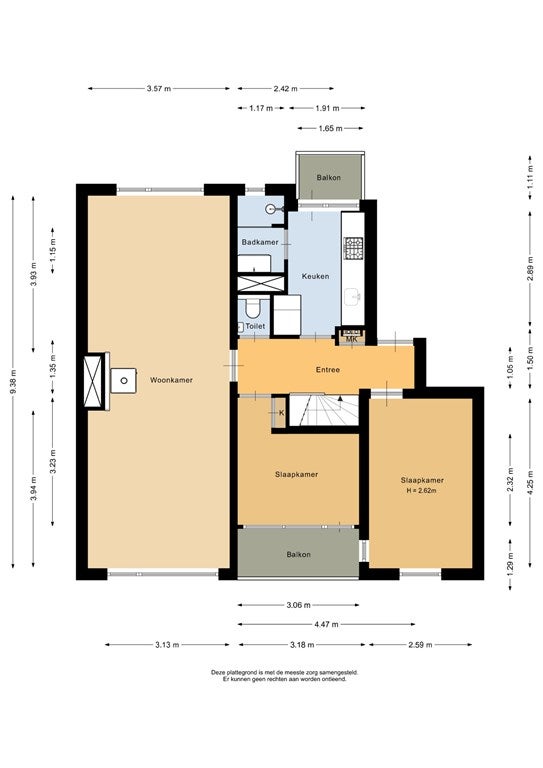
Globale indeling

Afgesloten entree met intercom, brievenbussen en toegang tot het trappenhuis. Vanuit hier bereik je het appartement op zowel de begane grond als de eerste verdieping.

Begane grond
De entree op de begane grond geeft toegang tot een bergkast, de nieuwe garderobekast, een praktische wasruimte en de grote berging met aansluitingen voor wasmachine en droger. Ook bevinden zich hier beide slaapkamers.
De hal is compleet vernieuwd met gestuukte wanden en plafonds en een chique tegelvloer. De slaapkamers zijn mooi van formaat, keurig afgewerkt met laminaat en de grootste kamer beschikt over databekabeling, ideaal voor gamers of thuiswerkers. Vanuit deze kamer is tevens de tuin bereikbaar.
En je leest het goed: twee balkons én een eigen tuin — he-le-maal leuk!

De achtertuin (westen) is een fijne plek voor middag- en avondzon en voorzien van een stijlvolle zwarte pergola met schaduwdoeken. De tuin grenst aan een gezamenlijke binnentuin, waardoor je vrij en groen uitkijkt.
Via de vernieuwde trap bereik je de tweede woonlaag.

Tweede woonlaag
(ook bereikbaar via het trappenhuis van het complex)

Direct na de aankoop in 2022 is deze verdieping grondig aangepakt. De woonkamer, hal en beide slaapkamers zijn geheel gestuukt, voorzien van vloerverwarming en afgewerkt met een fraaie visgraat PVC-vloer.

De woonkamer van circa 9 meter diep is licht en sfeervol, voorzien van een glazen deur met zwarte omlijsting en een gezellige houtkachel. De afwerking is hoogwaardig en de wand- en plafondverlichting blijft achter. Ook de zwevende tv-kast blijft aanwezig.
De hal geeft toegang tot het vernieuwde toilet modern, stijlvol en helemaal van nu.

De keuken is geüpdatet en beschikt over een koffiecorner, een antracietgrijze tegelvloer en diverse inbouwapparatuur (gaskookplaat, oven, afzuigkap, koelkast/vriezer en vaatwasser). Vanuit de keuken stap je het balkon op het westen op, met vrij zicht op de gezamenlijke tuin en het achterliggende park. Aangrenzend vind je de keurige badkamer met inloopdouche, nieuw wastafelmeubel en daglicht via het klepraam.
Via de overloop zijn twee slaapkamers bereikbaar, waarvan één met toegang tot het tweede balkon (oost), dé plek voor een ontbijtje in de ochtendzon. Beide kamers hebben een trendy zwart plafond en genieten van comfortabele vloerverwarming.

Bijzonderheden
• Bouwjaar ca. 1961
• Woonoppervlakte ca. 105 m²
• Gelegen op eigen grond
• Woning de afgelopen jaren op veel punten gemoderniseerd
• Vier slaapkamers
• Visgraat PVC-vloer met vloerverwarming (bovenverdieping)
• Nieuwe cv-ketel (ca. 2 jaar oud)
• Achtertuin + pergola + twee balkons
• Vernieuwde hal, trapkast en garderobe-oplossing
• Badkamer, keuken en toilet gemoderniseerd
• Philips Hue-installatie met automatisering aanwezig
• VvE-bijdrage € 192,39 p/m
• Oplevering medio maart/april 2026
• Rustige ligging, alles op loopafstand

De gunstige ligging nabij de uitvalswegen richting de Randstad maakt dit appartement extra aantrekkelijk. Benieuwd geworden? Maak dan snel een afspraak voor een vrijblijvende bezichtiging.

Deze informatie is met zorg samengesteld, maar er kunnen geen rechten aan worden ontleend. Plattegronden en maatvoeringen zijn indicatief en dienen ter indruk van de woonruimte.

Overdracht

Vraagprijs
€ 375.000 k.k.
Aangeboden sinds
30-11-2025
Status
Verkocht onder voorbehoud
Beschikbaar
In overleg
Onderhoudsstaat
Goed

Oppervlakte en inhoud

Woonoppervlakte
114 m²
Inhoud
381 m³

VvE informatie

Inschrijving KvK
Ja
Jaarlijkse vergadering
Ja
Periodieke bijdrage
Ja (€ 192 per maand)
Reservefonds aanwezig
Ja
Opstalverzekering
Ja

Bouw

Type woning
Appartement
Soort woning
Maisonnette, Appartement
Soort bouw
Bestaande bouw
Bouwjaar
1961
Ligging
  • In een woonwijk
  • Nabij het openbaar vervoer

Indeling

Aantal kamers
5
Aantal slaapkamers
4
Aantal badkamers
1
Aantal woonlagen
2
Voorzieningen
  • Kabel TV
  • Glasvezelaansluiting
  • Bergruimte
  • Toilet
  • Wasruimte

Buitenruimte

Balkon
Aanwezig
Tuin
Aanwezig (18 m², gelegen op het westen)
Tuinbeschrijving
achtertuin
Achterom
Aanwezig
Dakterras
Niet aanwezig

Energie

Isolatie
Spouwmuurisolatie, Gedeeltelijk dubbele beglazing
Verwarming
CV-ketel, Gedeeltelijke vloerverwarming, Houtkachel
Warm water
CV-ketel
Cv-ketel
Hoog rendement, CV-ketel (Gas, uit 2023, Eigendom)
Energielabel
C

Bergruimte

Schuur/Berging
Aanwezig

Parkeergelegenheid

Aanwezig
Ja
Soort parkeergelegenheid
Openbaar
Meld een probleem met deze woning