Woning verhuren

Contact met de makelaar

Deze woning is gevonden buiten ons eigen netwerk. Met de knop hieronder kom je direct bij de aanbieder terecht.

Te huur: Huis Veemarktpad in Assen

Bekijk kaart
9401 WC (Oranjebuurt)
€ 1.550 per maand
  • 157 m²
  • 6 kamers
  • 2025

Beschrijving

Duurzame statige stadsvilla in Asselyn! Stedelijk wonen en werken in het centrum van Assen waar een nieuw stadsdeel ontstaat dat de Allure weer terugbrengt in het centrum.

De woning is circa 160m2. De woning is voorzien van een moderne laminaatvloer. De woningen zijn van elkaar gescheiden d.m.v. een gaashekwerk (1800mm hoog) en zijn achterom bereikbaar.

De woningen zijn op de begane grond, 1e en 2e verdieping voorzien van vloerverwarming. De vloerverwarming verwarmt en verkoelt. Dat is nog eens comfortabel!

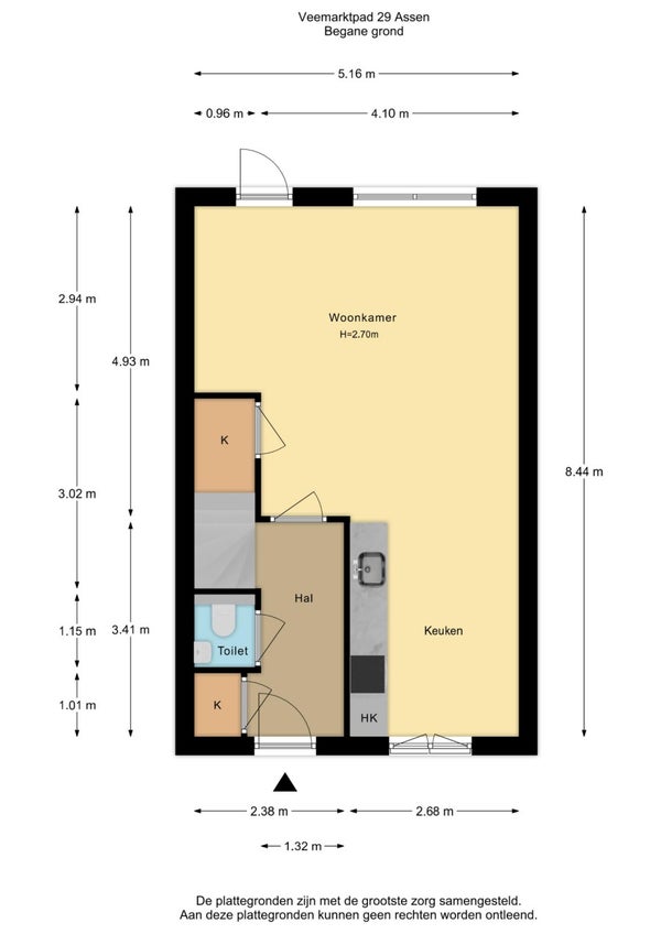
Je komt binnen in de hal met toilet, meterkast en trap naar de 1e verdieping. Vanuit de hal kom je in een grote woonkamer en een open leefkeuken.

De luxe keuken is voorzien van de volgende luxe BOSCH apparatuur: inductiekookplaat, recirculatie afzuigkap, multifunctionele oven met magnetronfunctie, koel/vriescombinatie met lowfrost, vaatwasmachine, extra kast en werkruimte en een composiet werkblad.

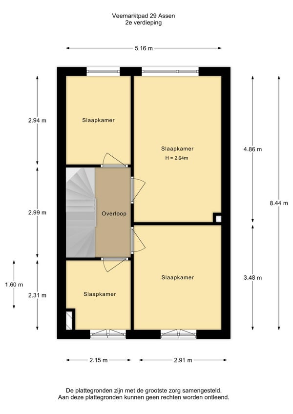
Op de 1e verdieping vind je drie slaapkamers en een bergruimte. Kom je op de 2e verdieping dan vind je drie slaapkamers en een badkamer. De badkamer is voorzien van een dubbele wastafel, douche met glazendouchescherm en een designradiator. Geen 6 slaapkamers nodig? Wat dacht je van 2 werkkamers! Ideaal voor uw werk aan huis!

Vanaf de overloop loop je met een vaste trap naar de grote open zolder met dakraam. Op de zolder vind je een aansluiting voor een wasmachine en wasdroger en de warmtepompinstallatie. De zolder is niet verwarmd.

Vanuit de woonkamer kom je uit in de tuin. De tuin is al gedeeltelijk voorzien van een terras met een diepte van ca. 3 meter over de gehele breedte van de woning. Vanaf het terras loopt een pad naar de berging en de bijbehorende parkeerplaats.

Duurzaam en betaalbaar
Jouw nieuwe woning staat niet alleen aan de stadsboulevard maar deze krijgt ook nog eens groene uitstraling door de aanwezige bomen. De verblijfssfeer wordt nog eens vergroot door de brede voetgangerszone! De woningen zijn gasloos. Elke woning wordt voorzien van een eigen warmtepomp die zorgt voor warm tapwater en het verwarmen van de woning. Op het dak zijn zonnepanelen aangebracht. De energie die dat oplevert wordt is voor jou. Jouw nieuwe woning is daarmee comfortabel, duurzaam én betaalbaar!

De locatie
Een levendige omgeving, alle faciliteiten binnen handbereik. Of het nu gaat om winkels (basis) scholen of kinderopvang. Een bruisend stadscentrum op steenworp afstand. Kinderen groeien hier zorgeloos op. Alle nieuwe ontwikkelingen maken dit stadsdeel de ideale plek om heerlijk te wonen, te werken en te recreëren.

Parkeren
Er is 1 parkeerplaats op eigen terrein beschikbaar. Bij de gemeente kan een parkeervergunning aangevraagd worden voor parkeren in het openbaar gebied.

De getoonde foto's zijn van een vergelijkbare woning.

NederWoon Verhuurmakelaars is zorgvuldig als het gaat om het geven van betrouwbare en actuele informatie. Zij kan echter niet garanderen dat deze informatie altijd foutloos, volledig en actueel is. Daarom kunnen aan de informatie op deze website geen rechten worden ontleend.

Overdracht

Huurprijs
€ 1.550 per maand
Aangeboden sinds
09-10-2025
Status
Te huur
Beschikbaar
In overleg

Oppervlakte en inhoud

Woonoppervlakte
157 m²

Bouw

Type woning
Huis
Soort woning
Tussenwoning (rijtjeshuis), Eengezinswoning
Soort bouw
Bestaande bouw
Bouwjaar
2025

Indeling

Aantal kamers
6

Buitenruimte

Tuin
Aanwezig
Dakterras
Niet aanwezig

Energie

Energielabel
A++
Meld een probleem met deze woning