Contact met de makelaar

Deze woning is gevonden buiten ons eigen netwerk. Met de knop hieronder kom je direct bij de aanbieder terecht.

Verkocht onder voorbehoud

Voorstraat 42

Bekijk kaart
4147 CC Asperen (Asperen Oude Kern)
€ 325.000 k.k.
  • 92 m²
  • 3 kamers
  • 1880

Samenvatting

  • Deze woning wordt sinds 6 weken aangeboden door Van Zee Vastgoed;
  • De tussenwoning heeft een woonoppervlakte van 92 m² en beschikt over 3 kamers, waarvan 2 slaapkamers;
  • De woning is gebouwd In 1880 en ligt in de buurt Asperen Oude Kern in Asperen.

Beschrijving

Starters opgelet, tussenwoning op een goede locatie!

In de hoofdstraat van het o zo mooie pittoreske Asperen en nabij de “Linge“ ligt deze charmante tussenwoning. Notabene aan de Voorstraat waar men binnen komt rijden als men Asperen in rijdt. De sfeervolle woning heeft een landelijke uitstraling, zo zijn er nog authentieke glas in lood ramen bewaart gebleven en heeft de woonkamer een erker aan de voorzijde van de woning. Binnen is een ander verhaal, zo zijn er al diverse vertrekken gemoderniseerd, met o.a. een nieuwe keuken en badkamer. Hier en daar nog een klus, maar het meeste is vrij recent al drastisch aangepakt. Verder beschikt de woning momenteel over 2 ruime slaapkamers, een dakkapel en een afgesloten achtertuin met berging. Daarbij is er zowel voor als achter de woning voldoende parkeergelegenheid. De woonoppervlakte is ca. 90 m² en staat op een perceel van 110 m².

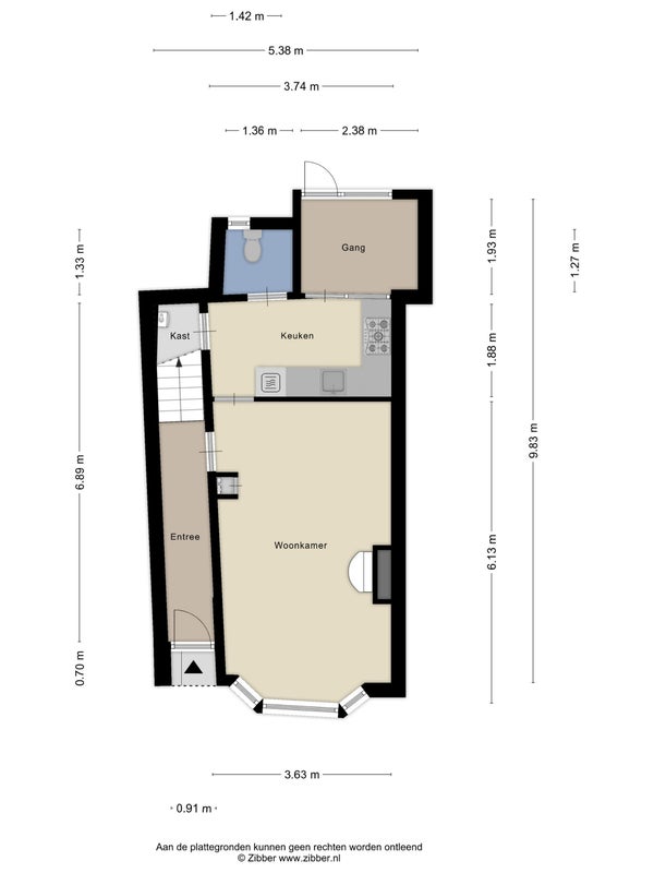
Indeling:
Begane grond: via de lange entree toegang naar de woonkamer en de trapopgang. De woonkamer is voorzien van lichte wanden, een laminaat vloer en gaskachel. Via de woonkamer komt men in de keuken die recent vernieuwd is met diverse inbouwapparatuur in een lichte opstelling. De keuken biedt toegang naar het toilet en de bijkeuken met achterom ingang.

Eerste verdieping: via de trapopgang bereikt men de overloop, de badkamer en de ruime slaapkamer. De vernieuwde volledig betegelde badkamer is voorzien van een douchecabine, wastafel, toilet en witgoedaansluiting. De slaapkamer heeft lichte wanden en een laminaat vloer.

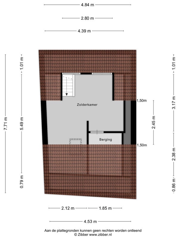
Zolder: via de vaste trap bereikt men de zolder. De zolderkamer met berging heeft diverse mogelijkheden, zo is deze in te richten als slaapkamer, hobby/werkkamer, game/speelruimte of yoga noem het maar op. En niet te vergeten, nog wat uitzicht ook op het landelijke polderlandschap.

Tuin: de charmante achtertuin in ingericht met siertegels, beplanting en een kleine berging voor fietsen of tuinmeubilair. Afgezet met een schutting en achterom.

Locatie.....locatie..... kom vrijblijvend kijken naar deze woning en de mogelijkheden en kansen die deze plek biedt.

Overdracht

Vraagprijs
€ 325.000 k.k.
Aangeboden sinds
18-12-2025
Status
Verkocht onder voorbehoud
Beschikbaar
In overleg
Onderhoudsstaat
Goed

Oppervlakte en inhoud

Woonoppervlakte
92 m²
Perceeloppervlakte
110 m²
Inhoud
304 m³

Bouw

Type woning
Huis
Soort woning
Tussenwoning (rijtjeshuis), Eengezinswoning
Soort bouw
Bestaande bouw
Bouwjaar
1880
Ligging
In het centrum

Indeling

Aantal kamers
3
Aantal slaapkamers
2
Aantal woonlagen
3

Buitenruimte

Balkon
Niet aanwezig
Tuin
Aanwezig
Tuinbeschrijving
achtertuin
Achterom
Niet aanwezig
Dakterras
Niet aanwezig

Energie

Verwarming
CV-ketel
Energielabel
D

Bergruimte

Schuur/Berging
Aanwezig
Omschrijving
Vrijstaand hout

Parkeergelegenheid

Aanwezig
Ja
Soort parkeergelegenheid
Openbaar
Omschrijving
Groot parkeerterrein

Garage

Aanwezig
Nee
Meld een probleem met deze woning