Contact met de makelaar

Deze woning is gevonden buiten ons eigen netwerk. Met de knop hieronder kom je direct bij de aanbieder terecht.

Leiwater

Bekijk kaart
2715 BB Zoetermeer (Meerzicht-Oost)
€ 1.300.000 k.k.
  • 288 m²
  • 6 kamers
  • 1973

Samenvatting

  • Deze woning wordt sinds 3+ maanden aangeboden door De Drie Kastelen NVM Makelaardij;
  • De tussenwoning heeft een woonoppervlakte van 288 m² en beschikt over 6 kamers, waarvan 4 slaapkamers;
  • De woning is gebouwd In 1973 en ligt in de buurt Meerzicht-Oost in Zoetermeer.

Beschrijving

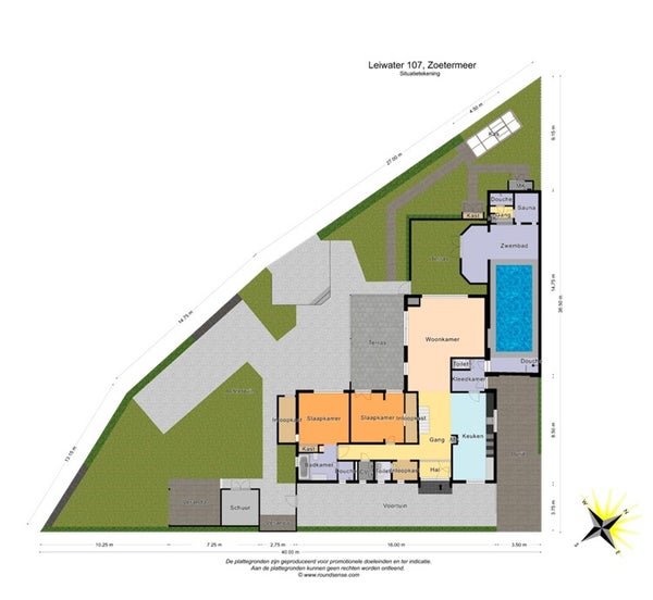
Deze volledig gemoderniseerde villa aan de rand van Meerzicht biedt luxe en comfort met 288 m² woonoppervlakte en een perceel van 830 m² aan het water. De villa beschikt over een professionele privé-wellness met sauna, zwembad, stoomcabine en jacuzzi. De sfeervolle woning heeft een luxe eetkeuken met hoogwaardige Miele apparatuur, een ruime woonkamer met pelletkachel en 4 grote slaapkamers. De riante tuin op het zuiden en westen is perfect voor ontspanning en biedt veel privacy. Parkeren kan op eigen terrein voor 2 auto's. Een unieke kans om deze prachtige woning te bezichtigen!

Reageer op tijd op nieuw woningaanbod

Meer dan de helft van de reacties komt binnen 48 uur. Ontvang direct notificaties bij nieuw aanbod en reageer sneller met Pararius+.

Probeer Pararius+ 14 dagen € 0,01

Overdracht

Vraagprijs
€ 1.300.000 k.k.
Aangeboden sinds
21-08-2025
Status
Beschikbaar
Beschikbaar
In overleg

Oppervlakte en inhoud

Woonoppervlakte
288 m²
Perceeloppervlakte
830 m²

Bouw

Type woning
Huis
Soort woning
Tussenwoning (rijtjeshuis), Eengezinswoning
Soort bouw
Bestaande bouw
Bouwjaar
1973

Indeling

Aantal kamers
6
Aantal slaapkamers
4
Aantal badkamers
2

Buitenruimte

Dakterras
Niet aanwezig

Energie

Energielabel
C
Meld een probleem met deze woning