Te huur: Appartement Grotestraat 30 a 10 in Almelo
Bekijk kaart- 60 m²
- 2 kamers
- 2023
Beschrijving
TE HUUR in Almelo: Luxe gemeubileerd energiezuinig appartement in hartje centrum
In het centrum van Almelo is een onder architectuur dit appartementencomplex met 12 energiezuinige appartementen gerealiseerd.
Dit luxe appartement is gelegen op de 2e verdieping van het appartementencomplex 'Grotestraat 30' en is tot in de puntjes afgewerkt. Zo beschikt het hele appartement over vloerverwarming onder een moderne PVC vloer, complete badkamer, separaat toilet en een complete inbouwkeuken. Het appartement is prachtig ingericht met hoogwaardige afwerkingen en moderne voorzieningen, zodat je kunt genieten van een comfortabel en luxe levensstijl.
Het appartement heeft een groot balkon | terras aan de achterzijde waar je kunt genieten het mooie groene uitzicht op de tuinen van Huize Almelo. De toegang van het woongebouw en het parkeerterrein is toegankelijk vanaf de Grotestraat (voorzijde) en Hof van Gulick (achterzijde)
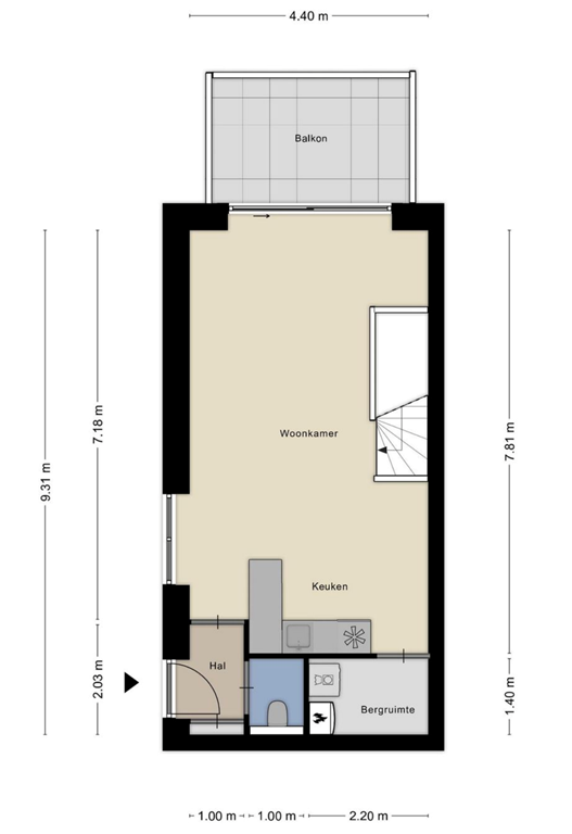
INDELING:
Begane grond: Hoofd entree met videofoon-installatie, brievenbussen, bergingen, trapopgang en lift.
Vanuit de centrale hal zijn alle vertrekken bereikbaar. U komt binnen in de hal, met toegang tot een separaat toilet voorzien van een hangend toilet en fonteintje. De ruime woonkamer is door de vele raampartijen een bron van licht en ruimte en geeft toegang, middels de schuifpui, tot het balkon aan de achterzijde waar je heerlijk kunt wegkijken in het groen in de verte. De open keuken is van alle gemakken voorzien en beschikt over een inductie-kookplaat, afzuigkap, vaatwasser, oven en koelkast. Verder beschikt het appartement over extra bergruimte met wasmachine- en drogeraansluiting, warmtepomp en mechanische ventilatie. De slaapkamer is te bereiken via een trap naar beneden. Aangrenzend aan de slaapkamer vindt u een royale badkamer met wastafel, inloopdouche en design radiator.
BIJZONDERHEDEN:
- Huurprijs: € 1.600,-- per maand
- Servicekosten: € 70,-- per maand
- Parkeerplaats: € 50,-- per maand
- Meubilering: € 250,-- per maand
- Woonoppervlakte: ca 60 m2
- Beschikbaar per 1 december 2025
- Energiezuinig appartement
- Voorzien van vloerverwarming
- 2 balkons
- Energielabel A+++
De winkels met een gevarieerd aanbod en de centrumvoorzieningen bevinden zich op loopafstand. Culturele aangelegenheden in Almelo zijn onder meer het Theaterhotel, Preston Palace en Theater Hof 88. Daarnaast vinden er in Almelo ruim 160 evenementen per jaar plaats waardoor er voor iedereen altijd wat te doen is. Almelo is een stad met veel gezichten en een stad met karakter. Een tikkeltje eigenzinnig, gesierd met de Twentse nuchterheid en zeer gastvrij. Almelo is een bijzondere mengeling van oud en nieuw. Geïnteresseerd? Schrijf u in op ****** of stuur een mail naar ******.
Deze advertentie op internet en op facebook is slechts ter informatie en dus geheel vrijblijvend.
Aan eventuele onjuistheden kunnen geen rechten worden ontleend.
Overdracht
- Huurprijs
-
€ 1.280 per maand
- Aangeboden sinds
- 28-11-2025
- Status
- Te huur
- Beschikbaar
- In overleg
- Bijzonderheden
- Seniorenwoning
- Borg
- € 2.500
- Onderhoudsstaat
- Zeer goed
Oppervlakte en inhoud
- Woonoppervlakte
- 60 m²
- Inhoud
- 165 m³
Bouw
- Type woning
- Appartement
- Soort woning
- Maisonnette, Appartement
- Soort bouw
- Bestaande bouw
- Bouwjaar
- 2023
- Ligging
- In het centrum
Indeling
- Aantal kamers
- 2
- Aantal slaapkamers
- 1
- Aantal badkamers
- 1
- Aantal woonlagen
- 2
- Voorzieningen
-
- Internetaansluiting
- Mechanische ventilatie
- Bergruimte
- Toilet
Buitenruimte
- Balkon
- Aanwezig
- Dakterras
- Niet aanwezig
Energie
- Isolatie
- Spouwmuurisolatie, Dubbele beglazing, Vloerisolatie, Volledig geïsoleerd, Dakisolatie, Muurisolatie
- Verwarming
- Volledige vloerverwarming, Warmtepomp
- Energielabel
- A+++
Parkeergelegenheid
- Aanwezig
- Ja
- Soort parkeergelegenheid
- Garage