Woning verhuren

Contact met de makelaar

Deze woning is gevonden buiten ons eigen netwerk. Met de knop hieronder kom je direct bij de aanbieder terecht.

Nieuw

Te huur: Appartement Rosendaalsestraat in Arnhem

Bekijk kaart
6824 CR (St. Janskerkstraat e.o.)
€ 1.012 per maand
  • 43 m²
  • 2 kamers
  • Gestoffeerd

Beschrijving

Uitstekend onderhouden direct te betrekken 2-kamerappartement dichtbij het centrum van Arnhem! Er ligt een keurige vloer, de wanden zijn strak afgewerkt en de gehele woning wordt gekenmerkt door veel lichtinval en het geweldige uitzicht vanuit de woon- en eetkamer! U heeft een balkon aan de achterzijde van het appartement.

Het appartement ligt op loopafstand van het park en zeer nabij Arnhem Centrum, veel eet mogelijkheden dicht in de buurt, en nog geen 10 autominuten van de A12. Het appartement is netjes en goed onderhouden.

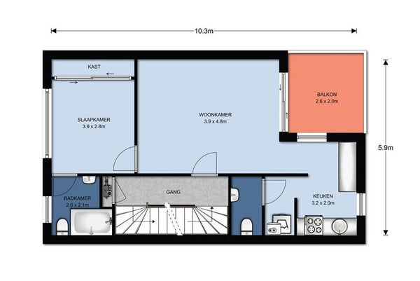
Indeling:
Gemeenschappelijke entree/ hal met trap en naar de 1e verdieping waar het appartement is gelegen.
Appartement: entree/ hal met meterkast en garderobe en toegang tot alle vertrekken. De royale woonkamer en eetkamer met bijzonder veel lichtinval. Vanuit de woonkamer heeft u toegang naar de keuken en het balkon. De keuken is voorzien van een gasfornuis, veel kastruimte en een vaatwasser. Nette badkamer met een douchecabine, wastafel en een bad. Separaat toilet.

Kortom, een royaal, uitstekend onderhouden appartement met een vrij uitzicht op een super centrale locatie welke zeker een bezichtiging waard is!

Bijzonderheden:
- Per 01-02-2026 beschikbaar. (MAX 18mnd)
- Student buiten de plaats
- Huurprijs: € 910,- + € 70,- afschrijving stoffering + € 32,50 servicekosten = € 1.012,50 excl. G/W/E.
- De waarborgsom bedraagt € 2.025,-
- Keurig afgewerkt

Vindt u dit aanbod op een andere website dan 123Wonen? Kijk op onze eigen website voor het actuele aanbod: ******

Overdracht

Huurprijs
€ 1.012 per maand
Aangeboden sinds
13-01-2026
Status
Te huur
Beschikbaar
Per 01-02-2026
Interieur
Gestoffeerd

Oppervlakte en inhoud

Woonoppervlakte
43 m²

Bouw

Type woning
Appartement
Soort woning
Bovenwoning, Appartement
Soort bouw
Bestaande bouw

Indeling

Aantal kamers
2
Aantal slaapkamers
1
Aantal badkamers
1
Voorzieningen
Bad

Buitenruimte

Tuin
Niet aanwezig
Dakterras
Niet aanwezig

Garage

Aanwezig
Nee
Meld een probleem met deze woning