- 71 m²
- 3 kamers
- 2025
Beschrijving
TE HUUR: Modern 3-kamer appartementen met eigen berging en een (openbare) parkeerplaats in de nabijheid van het appartement.
De energiezuinige appartementen zijn voorzien van vloerverwarming.
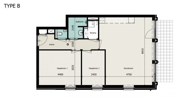
Je komt binnen in de hal met toilet van Villeroy & Boch. Via de hal kom je in de badkamer, twee slaapkamers van ca. 15m2 en 8m2 en de woonkamer.
De grote woonkamer heeft een moderne open keuken voorzien van inductiekookplaat, wandafzuigkap, combimagnetron, koelkast met vriesvak en vaatwasser. Vanuit de woonkamer heb je toegang tot een groot balkon.
In de badkamer is een HansGrohe regendouche en wastafel met Villeroy & Boch onderkast aanwezig. De badkamer wordt tot aan het plafond betegeld en geeft je een gevoel van luxe.
Ieder appartement heeft een eigen berging achter op het terrein. In de berging is verlichting en elektra aanwezig, handig voor bijvoorbeeld het opladen van een elektrische fiets.
Duurzaamheid
Jouw nieuwe appartement staat niet alleen in een groene omgeving, maar is zelf ook groen. De woningen zijn gasloos. Energie voor de vloerverwarming en warm water wordt geleverd door Ennatuurlijk. Op het dak zijn voor ieder appartement drie zonnepanelen aangebracht. Daarnaast is er voor het elektraverbruik van de algemene ruimte één zonnepaneel. De energie die dat oplevert wordt gebruikt voor de liftinstallatie en verlichting in de algemene ruimten. Jouw nieuwe woning is daarmee comfortabel, duurzaam én milieuvriendelijk!
Elektrisch laden
Heb je een elektrische auto? Ieder complex krijgt twee elektrische laadpalen waarmee je tegen betaling je auto kunt opladen.
De locatie
Het appartement ligt in de populaire nieuwbouwwijk De Zuidlanden. De Zuidlanden is een nieuw woongebied in Leeuwarden, aan de zuidkant van het dorp Goutum. Een bijzonder nieuw stadsdeel bestaande uit verschillende buurtschappen. De Zuidlanden liggen in een groene omgeving, maar ook op steenworp afstand van het historische centrum van Leeuwarden. Je boodschappen haal je natuurlijk bij de naastgelegen supermarkt: de Lidl.
NederWoon Verhuurmakelaars is zorgvuldig als het gaat om het geven van betrouwbare en actuele informatie. Zij kan echter niet garanderen dat deze informatie altijd foutloos, volledig en actueel is. Daarom kunnen aan de informatie op deze website geen rechten worden ontleend.
Overdracht
- Huurprijs
-
€ 1.170 per maand
- Aangeboden sinds
- 09-12-2025
- Status
- Te huur
- Beschikbaar
- In overleg
- Onderhoudsstaat
- Goed
Oppervlakte en inhoud
- Woonoppervlakte
- 71 m²
Bouw
- Type woning
- Appartement
- Soort woning
- Portiekflat, Appartement
- Soort bouw
- Nieuwbouw
- Bouwjaar
- 2025
Indeling
- Aantal kamers
- 3
- Aantal badkamers
- 1
- Aantal woonlagen
- 1
Buitenruimte
- Balkon
- Aanwezig
- Dakterras
- Niet aanwezig
Energie
- Energielabel
- A+