Woning verhuren

Contact met de makelaar

Deze woning is gevonden buiten ons eigen netwerk. Met de knop hieronder kom je direct bij de aanbieder terecht.

Nieuw

Te huur: Appartement Aggemastate 66 in Leeuwarden

Bekijk kaart
8926 PE (Camminghaburen-Noord)
€ 780 per maand
  • 50 m²
  • 3 kamers
  • 1982

Beschrijving

Om in aanmerking te komen voor deze woning kunt u zich alleen via de rode knop op de woningpagina op de website van fryslânhomes (.frl) aanmelden.

Keurig appartement op de tweede verdieping van een appartementencomplex in de wijk Camminghaburen op fietsafstand van het centrum. Openbaar vervoer is op loopafstand bereikbaar.
Het complex is gelegen in de buurt van een winkelcentrum en is vlakbij het natuurgebied de Groene Ster.

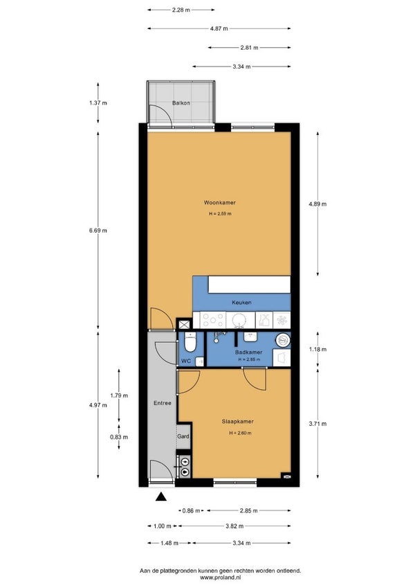
Indeling: entree met lift en berging op de begane grond. Appartement: hal, slaapkamer, badkamer met douche, wastafel en wasmachine-aansluiting. De woonkamer heeft een balkon en een open keuken die is voorzien van diverse apparatuur.
De vaatwasser en koelvriescombinatie is op basis van bruikleen.

De woning staat op de nominatie om in de toekomst nog verder te worden verduurzaamd.

Er is voldoende parkeergelegenheid aanwezig.

Bijkomende kosten: servicekosten €15,- per maand, afschrijving stoffering €35,- per maand.

Overdracht

Huurprijs
€ 780 per maand
Aangeboden sinds
13-11-2025
Status
Te huur
Beschikbaar
Per 01-01-2026
Huurovereenkomst
Onbepaalde tijd

Oppervlakte en inhoud

Woonoppervlakte
50 m²

Bouw

Type woning
Appartement
Soort woning
Bovenwoning, Appartement
Soort bouw
Bestaande bouw
Bouwjaar
1982

Indeling

Aantal kamers
3
Aantal slaapkamers
1
Aantal badkamers
1
Voorzieningen
  • Lift
  • Terras
  • Toilet

Buitenruimte

Balkon
Aanwezig
Tuin
Niet aanwezig
Dakterras
Niet aanwezig

Energie

Energielabel
C

Bergruimte

Schuur/Berging
Aanwezig

Parkeergelegenheid

Aanwezig
Nee

Garage

Aanwezig
Nee

Huurvoorwaarden

Huisdieren toegestaan
Nee
Meld een probleem met deze woning
Contact met de makelaar Bel