Woning verhuren

Contact met de makelaar

Deze woning is gevonden buiten ons eigen netwerk. Met de knop hieronder kom je direct bij de aanbieder terecht.

Te huur: Appartement Olympiapad in Maastricht

Bekijk kaart
6225 XL (Wittevrouwenveld)
€ 961 per maand
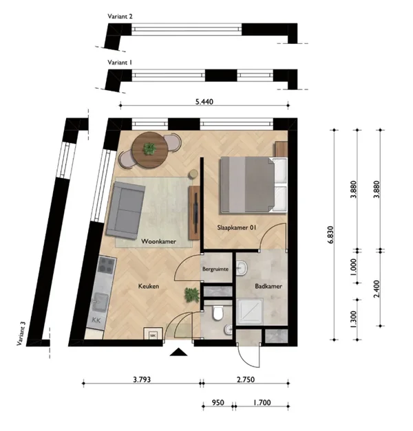
  • 39 m²
  • 1 kamer
  • Gestoffeerd

Beschrijving

LET OP: In het gebouw zijn meer appartementen beschikbaar dan op de website worden getoond (met verschillende ingangsdata). Tijdens de dagelijkse bezichtigingsrondes laten wij u deze zien en kunt u uw voorkeur aangeven.

Dit gestoffeerde appartement -exclusief voor jongeren tussen de 18 en 28 jaar- is voorzien van alle gemakken en luxe. Het appartement bestaat uit een lichte woonkamer met open keuken (incl. inbouwapparatuur), slaapkamer, separaat toilet en een moderne badkamer. Op de begane grond vind je diverse gedeelde faciliteiten, zoals een gezamenlijke ruimte, een Miele-wasserette, een fietsenstalling, een grote binnentuin en toegang tot de lift.

Het gestoffeerde appartement bestaat uit een lichte woonkamer met open keuken met inductie kookplaat, koelkast met vriesvak, afzuigkap en comi-oven, separaat toilet, badkamer met douche en wastafel en vitrage. Dankzij de goede isolatie en vloerverwarming is het binnen altijd comfortabel.

Wonen in De Scheg betekent genieten van het beste van twee werelden: de levendigheid van Maastricht én de rust van een groene omgeving. Je fietst zo naar de bakker, supermarkt of het historische stadscentrum, waar cultuur en culinaire hotspots op je wachten. Ook de Groene Loper ligt op korte afstand – perfect om te ontspannen of hard te lopen. De Scheg is uitstekend bereikbaar per trein en via de snelweg, wat het tot een ideale woonplek maakt voor wie mobiliteit belangrijk vindt.

De Scheg is speciaal ontwikkeld voor jongeren tussen de 18 en 28 jaar: jong werkenden (minimaal 32 uur per week), studenten en PhD-onderzoekers. Je woont hier zelfstandig, maar midden in een actieve community. Samen met je medebewoners draag je een paar uur per maand bij aan een levendige en betrokken woonomgeving – op een manier die bij jou past.

Overdracht

Huurprijs
€ 961 per maand
  • Inclusief: Internet, Water
  • Exclusief: Servicekosten
Aangeboden sinds
07-10-2025
Status
Te huur
Beschikbaar
Per direct
Huurovereenkomst
Tijdelijke verhuur
Looptijd
Minimaal 12 maanden
Borg
€ 1.662
Interieur
Gestoffeerd
Onderhoudsstaat
Goed

Oppervlakte en inhoud

Woonoppervlakte
39 m²

Bouw

Type woning
Appartement
Soort woning
Galerijflat, Appartement
Soort bouw
Bestaande bouw
Bouwjaar
2025
Ligging
  • Nabij het openbaar vervoer
  • Nabij een school

Indeling

Aantal kamers
1
Voorzieningen
  • Internetaansluiting
  • Rioolaansluiting
  • Douche
  • Toilet

Buitenruimte

Tuin
Aanwezig
Dakterras
Niet aanwezig

Energie

Energielabel
A

Bergruimte

Schuur/Berging
Aanwezig

Parkeergelegenheid

Aanwezig
Ja
Soort parkeergelegenheid
Openbaar
Omschrijving
Free parking in street

Huurvoorwaarden

Roken toegestaan
Nee
Huisdieren toegestaan
Nee
Meld een probleem met deze woning
Contact met de makelaar Bel