Woning verhuren

Contact met de makelaar

Deze woning is gevonden buiten ons eigen netwerk. Met de knop hieronder kom je direct bij de aanbieder terecht.

Te huur: Appartement Hof van Oranje in Meerssen

Bekijk kaart
6231 LZ (Meerssen)
€ 1.450 per maand
  • 107 m²
  • 7 kamers
  • Gestoffeerd

Beschrijving

In een prachtig stukje Meerssen, op korte afstand van de luchthaven en uitvalswegen ligt dit zeer ruime 3 slaapkamer appartement met balkon. Meerssen ligt op ca. 6 km ten noorden van Maastricht en heeft een gezellig centrum en fraai park. Het appartement heeft 2 woonlagen en is voorzien van laminaat vloeren. Parkeren mogelijk met vergunning.
Indeling BG: centrale entree met trappenhuis (geen lift).
BG: centrale entree met berging ca. 5 m².
1e Verdieping: hal ca. 5 m² met toilet en trappartij. Woonkamer ca. 35 m² met openslaande deuren naar balkon ca. 8,5 m². Keuken ca. 12 m² voorzien van spoelbak, 4 pits keramische kookplaat, afzuigkap, combi magnetron oven, vaatwasser en koelkast.
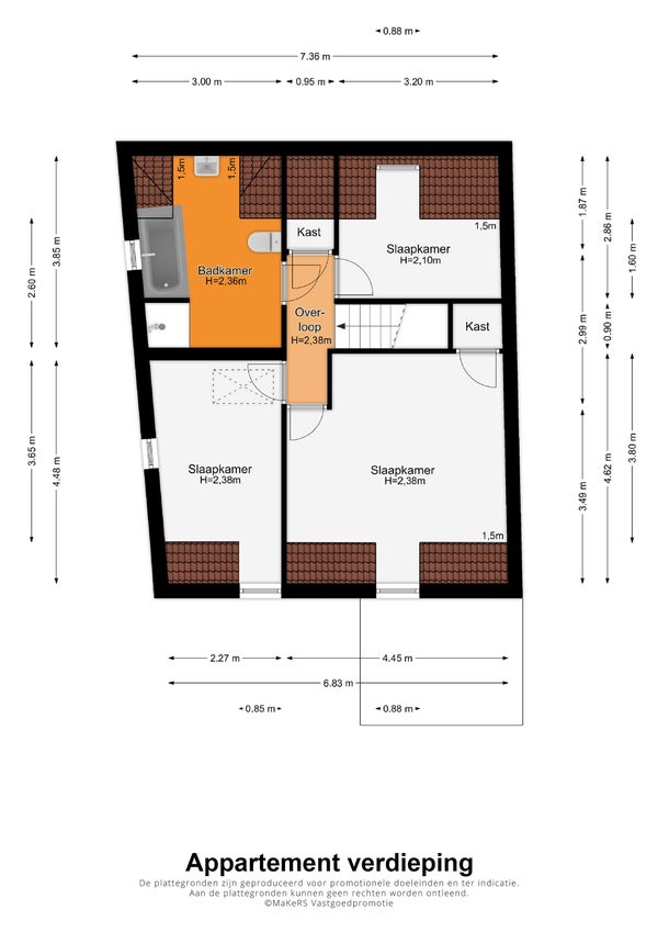
2e Verdieping: overloop ca. 2 m². 3 Slaapkamers resp 15, 13 en 10 m². Badkamer ca. 12 m² met wastafel, douche, ligbad, toilet en wasmachine aansluiting.
3e Verdieping: via vlizotrap te bereiken zolder van 22 m².
Totale woonoppervlakte ca. 107 m².
Huurprijs per maand € 1450,= excl. GWE.
Geen servicekosten.
Borg nader te bepalen.
Deze woning maakt deel uit van een Rijksmonument, geen energielabel vereist.

Het is niet mogelijk om deze woning te delen met een huisgenoot (vriend(in)/zus(sen)/broer/collega). Je kunt de woning alleen, als stel of als gezin (ouder(s) met kinderen) huren.
Om deze woning te huren, moet je je inschrijven in de Basisregistratie Personen (BRP) bij de gemeente.
Aanvragen door studenten en/of woningdelers zullen niet worden behandeld.

Alle aanbod is vrijblijvend en onder voorbehoud recht van gunning verhuurder.

Overdracht

Huurprijs
€ 1.450 per maand
Aangeboden sinds
17-10-2025
Status
Te huur
Beschikbaar
Per direct
Bijzonderheden
Monumentaal pand
Huurovereenkomst
Onbepaalde tijd
Looptijd
Minimaal 12 maanden
Interieur
Gestoffeerd
Onderhoudsstaat
Goed

Oppervlakte en inhoud

Woonoppervlakte
107 m²
Inhoud
398 m³

Bouw

Type woning
Appartement
Soort woning
Bovenwoning, Appartement
Soort bouw
Bestaande bouw
Bouwjaar
2001
Ligging
  • In het centrum
  • In een woonwijk
  • Nabij het openbaar vervoer

Indeling

Aantal kamers
7
Aantal slaapkamers
3
Aantal badkamers
1
Aantal woonlagen
3
Voorzieningen
  • Bad
  • Intercom
  • Douche
  • Toilet

Buitenruimte

Balkon
Aanwezig
Tuin
Niet aanwezig
Dakterras
Niet aanwezig

Energie

Isolatie
Dubbele beglazing, Dakisolatie

Bergruimte

Schuur/Berging
Aanwezig

Parkeergelegenheid

Aanwezig
Ja
Soort parkeergelegenheid
Vergunning

Garage

Aanwezig
Nee

Huurvoorwaarden

Roken toegestaan
Nee
Huisdieren toegestaan
Nee
Doelgroep
Werkende
Meld een probleem met deze woning