Te huur: Appartement Rijksweg Noord 1 C 7 in Sittard
Bekijk kaart- 51 m²
- 1 kamer
- Gestoffeerd
Beschrijving
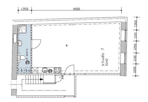
Mooie moderne STUDIO 1C-7
In het centrum van Sittard, op de hoek van Rijksweg Noord en Voorstad gelegen , zijn 9 prachtige luxe studio's ontwikkeld met optimaal wooncomfort en hoogwaardig afgewerkt. Iedere studio heeft een geheel eigen karakter.
1C-7 is gestoffeerd en gelegen op de eerste verdieping, circa 51 m2.
Het betreft een 1 persoons appartement.
Huisdieren zijn niet toegestaan
Algemeen:
-
Verwarming: vloerverwarming.
-
Airconditioning, Daikin.
-
Warmtepomp, Daikin.
-
PVC vloeren.
-
Video intercom.
-
RVS hang- en sluitwerk.
-
Natuurstenen vensterbanken.
-
Mechanische ventilatie.
-
Rookmelders door het gehele gebouw.
-
Voordeur van studio voorzien van driepuntsluiting en KABA SKG3 cilinder.
-
Open keuken in hoogglans voorzien van:
-
Inbouw vaatwasser.
-
Inductie kookplaat.
-
RVS afzuigkap.
-
Koelkast met vriesvak.
-
Combi oven-magnetron.
-
Geheel betegelde badkamer voorzien van:
-
Regendouche, Grohe.
-
Wastafel met lade en spiegelkast met verlichting, Geberit.
-
Zwevend toilet, Geberit.
-
Aansluiting voor wasmachine en wasdroger.
-
Afgewerkt met grote donkergrijze plavuizen.
-
Op maatgemaakte glas-en overgordijnen
-
Privé berging met een elektrische aansluiting(circa 3 x 2 m) op de begane grond.
-
Een riante buiten patio (circa 55 m2) voor gezamenlijk gebruik.
Grote leefruimte, 45 m2 (circa 9.00 x 5.00 m).
Badkamer, 4,4 m2 (4.90 x 1.50).
De badkamer heeft een installatie kast met schuifdeuren waar achter zich de warmtepomp en de aansluiting voor de wasmachine zich bevinden.
Voorzijde: Grote raampartij met uitzicht op de Voorstad.
Huurprijs: € 725,00 per maand.
Servicekosten: € 50,00 per maand.
Totale huur per maand: € 775,00
Waarborgsom: € 1500,00
Disclaimer - Huren bij 'mijn huis en ik'
- We nodigen, afhankelijk van de woonruimte, de eerste 10, 15 of 20 potentiële kandidaten uit voor een bezichtiging op volgorde van reactie.
- Vervolgens houden we nog maximaal 20 kandidaten in portefeuille, eveneens op volgorde van reactie.
- De overige kandidaten ontvangen een bericht dat we het maximale aantal reacties hebben bereikt.
- Kandidaten kunnen zich kosteloos inschrijven op onze website voor een zoekopdracht, waarbij je een mail krijgt met ons nieuwste aanbod.
- Als inkomenseis dien je minimaal drie (3) keer de maandhuur bruto te verdienen of een borgsteller te hebben die hieraan voldoet.
- De informatie op onze website is met de nodige zorgvuldigheid samengesteld.
- We aanvaarden geen enkele aansprakelijkheid voor enige onvolledigheid of onjuistheid, dan wel de gevolgen daarvan.
- Alle opgegeven maten en oppervlakten zijn indicatief en hieraan kunnen geen rechten worden ontleend.
- Lees de brochure zorgvuldig door, met name ook de uitsplitsing van de huur en de totale huur per maand.
- Alle potentiële huurders worden uitgebreide gescreend uit op onder andere kredietwaardigheid en inkomstentoets.
Overdracht
- Huurprijs
-
€ 725 per maand
- Aangeboden sinds
- 20-11-2025
- Status
- Te huur
- Beschikbaar
- Per direct
- Interieur
- Gestoffeerd
- Onderhoudsstaat
- Zeer goed
Oppervlakte en inhoud
- Woonoppervlakte
- 51 m²
- Inhoud
- 155 m³
Bouw
- Type woning
- Appartement
- Soort woning
- Bovenwoning
- Soort bouw
- Bestaande bouw
- Bouwjaar
- 1738
- Ligging
- In het centrum
Indeling
- Aantal kamers
- 1
- Aantal woonlagen
- 1
- Voorzieningen
-
- Airconditioning
- Mechanische ventilatie
Buitenruimte
- Balkon
- Niet aanwezig
- Dakterras
- Niet aanwezig
Energie
- Isolatie
- Dubbele beglazing, Dakisolatie, Muurisolatie
- Verwarming
- Warmtepomp
- Energielabel
- D
Garage
- Aanwezig
- Nee