Contact met de makelaar

Deze woning is gevonden buiten ons eigen netwerk. Met de knop hieronder kom je direct bij de aanbieder terecht.

Tapuitstraat 37 B

Bekijk kaart
3083 WE Rotterdam (Carnisse)
€ 249.500 k.k.
  • 57 m²
  • 4 kamers
  • 1947

Samenvatting

  • Deze woning wordt sinds 7 weken aangeboden door Woonvisie NVM Makelaars;
  • De portiekflat heeft een woonoppervlakte van 57 m² en beschikt over 4 kamers, waarvan 3 slaapkamers;
  • De woning is gebouwd In 1947 en ligt in de buurt Carnisse in Rotterdam;
  • De woning beschikt onder andere over de volgende voorzieningen: Kabel TV, Mechanische ventilatie, Douche, Toilet.

Beschrijving

Bent u opzoek naar een instapklaar appartement in de wijk Charlois? Welkom aan de Tapuitstraat 37 B te Rotterdam.

De woning is gelegen op de eerste verdieping en is volledig gerenoveerd. De keuken is verplaatst naar de woonkamer, waardoor er een extra slaapkamer is gerealiseerd.

Via de entree komt u in de hal met meterkast, vanwaar u toegang heeft tot alle vertrekken. De lichte doorzonwoonkamer beschikt over een ruime zithoek en biedt direct toegang tot de open keuken. De moderne keuken is voorzien van diverse inbouwapparatuur en biedt voldoende ruimte voor een royale eettafel. Via de keuken krijgt u toegang tot het balkon. De woning beschikt over drie slaapkamers, waarvan één slaapkamer toegang heeft tot het op het zuidwesten gelegen balkon. Hier kunt u de gehele middag en avond genieten van de zon. De nette, volledig betegelde badkamer is uitgerust met een inloopdouche en een toilet.

Voor wie centraal wil wonen is dit een fantastische locatie! Op fietsafstand bevindt zich winkelcentrum 'Zuidplein', het metro- en busstation, evenementenhal 'Ahoy', scholen en het Ikazia ziekenhuis. Daarnaast is in de directe omgeving het recreatiegebied ‘het Zuiderpark’, waar u terecht kan voor een heerlijke wandeling. Met de OV en auto bent u binnen een mum van tijd in het centrum van Rotterdam en de uitvalswegen bevinden zich op korte afstand.

Interesse?
Wij nodigen u graag uit voor een bezichtiging van deze unieke woning!

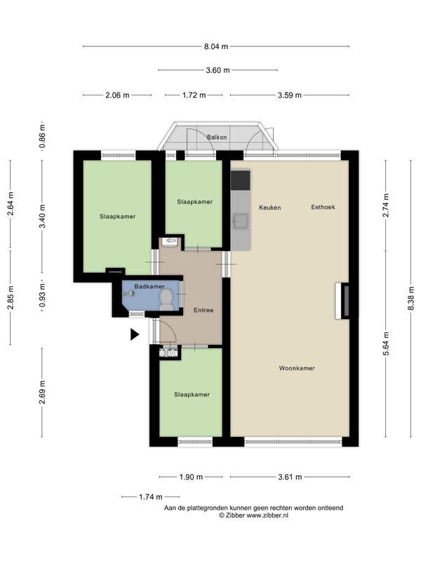
De indeling van de woning is als volgt:

Begane grond:

  • Afgesloten portiek met bellentableau, trappenhuis en toegang tot kelderbergingen.

Eerste verdieping:

  • Hal/entree met toegang tot de overige vertrekken;
  • De ruime woonkamer met veel lichtinval bevindt zich aan de achterzijde van de woning;
  • De open keuken is voorzien van een inductiekookplaat en een koel/-vriescombinatie;
  • Via de keuken krijgt u toegang tot het balkon welke is gelegen op het zuidwesten;
  • De geheel betegelde badkamer is voorzien van een inloopdouche en toilet;
  • Slaapkamer 1;
  • Slaapkamer 2;
  • Slaapkamer 3 biedt toegang tot het balkon welke is gelegen op het zuidwesten.

Tenslotte beschikt de woning over een berging in de onderbouw.

Bijzonderheden:

  • Bouwjaar: 1947;
  • Woonoppervlakte: ca. m²;
  • Inhoud: ca. m³;
  • Energielabel F;
  • VvE met een maandelijkse VvE bijdrage van € 181 ,-;
  • De woning is gelegen op eigen grond;
  • Voorzien van een pvc visgraat vloer;
  • Verwarming en warm water middels CV-combiketel (Intergas | 2025| eigendom);
  • De woning valt onder de opkoopbescherming van de gemeente Rotterdam;
  • Gezien het bouwjaar van de woning zal er een asbest- en ouderdomsclausule in de koopakte worden opgenomen;

De oplevering vindt plaats in onderling overleg.

Alle verstrekte informatie moet beschouwd worden als een uitnodiging tot het doen van een bod of om in onderhandeling te treden.

In diverse wijken is er sprake van een opkoopbescherming. De opkoopbescherming houdt in een verbod om, na het aankopen van een woning vanaf een januari tweeduizend twee en twintig (1 januari 2022), deze te verhuren zonder vergunning, tenzij aan bepaalde voorwaarden is voldaan. Meer informatie hierover is terug te vinden op de website van de Gemeente Rotterdam (******).

Deze informatie is door ons met de nodige zorgvuldigheid samengesteld. Onzerzijds wordt echter geen enkele aansprakelijkheid aanvaard voor enige onvolledigheid, onjuistheid of anderszins, dan wel de gevolgen daarvan. Alle opgegeven maten en oppervlakten zijn indicatief. Van toepassing zijn de NVM voorwaarden.

Koopovereenkomst pas rechtsgeldig na ondertekening:
Een mondelinge overeenstemming tussen de particuliere verkoper en de particuliere koper is niet rechtsgeldig. Met andere woorden: er is geen koop. Er is pas sprake van een rechtsgeldige koop als de particuliere verkoper en de particuliere koper de koopovereenkomst hebben ondertekend. Dit vloeit voort uit artikel 7:2 Burgerlijk Wetboek. Een bevestiging van de mondelinge overeenstemming per e-mail of een toegestuurd concept van de koopovereenkomst wordt overigens niet gezien als een 'ondertekende koopovereenkomst'.

Toelichtingsclausule NEN2580:
De Meetinstructie is gebaseerd op de NEN2580. De Meetinstructie is bedoeld om een meer eenduidige manier van meten toe te passen voor het geven van een indicatie van de gebruiksoppervlakte. De Meetinstructie sluit verschillen in meetuitkomsten niet volledig uit, door bijvoorbeeld interpretatieverschillen, afrondingen of beperkingen bij het uitvoeren van de meting.

Overdracht

Vraagprijs
€ 249.500 k.k.
Aangeboden sinds
17-12-2025
Status
Beschikbaar
Beschikbaar
In overleg
Onderhoudsstaat
Goed

Oppervlakte en inhoud

Woonoppervlakte
57 m²
Inhoud
189 m³

VvE informatie

Inschrijving KvK
Ja
Jaarlijkse vergadering
Ja
Periodieke bijdrage
Ja (€ 181 per maand)
Reservefonds aanwezig
Ja
Onderhoudsplan
Ja
Opstalverzekering
Ja

Bouw

Type woning
Appartement
Soort woning
Portiekflat, Appartement
Soort bouw
Bestaande bouw
Bouwjaar
1947
Ligging
In een woonwijk

Indeling

Aantal kamers
4
Aantal slaapkamers
3
Aantal badkamers
1
Aantal woonlagen
1
Verdieping
1
Voorzieningen
  • Kabel TV
  • Mechanische ventilatie
  • Douche
  • Toilet

Buitenruimte

Balkon
Aanwezig
Tuin
Niet aanwezig
Dakterras
Niet aanwezig

Energie

Isolatie
Dubbele beglazing
Verwarming
CV-ketel
Warm water
CV-ketel
Cv-ketel
Intergas (Gas, uit 2025, Eigendom)
Energielabel
F

Bergruimte

Schuur/Berging
Aanwezig
Omschrijving
Box

Parkeergelegenheid

Aanwezig
Ja
Soort parkeergelegenheid
Betaald

Garage

Aanwezig
Nee
Meld een probleem met deze woning