Woning verhuren

Contact met de makelaar

Deze woning is gevonden buiten ons eigen netwerk. Met de knop hieronder kom je direct bij de aanbieder terecht.

Nieuw

Te huur: Huis Schepperbuurt in Borgsweer

Bekijk kaart
9949 PJ (Borgsweer)
€ 2.350 per maand
  • 198 m²
  • 1 kamer
  • Kaal

Beschrijving

123Wonen Dé Verhuurmakelaar biedt aan:

Nieuwbouw woning in Borgsweer met goed energielabel A+++
Schepperbuurt 48, Borgsweer

In het kort

  • geschikt voor één of twee werkenden personen / expats of een gezin
  • perfect voor werkende in de Eemshaven
  • inkomenseis van toepassing
  • per direct beschikbaar

INDELING
Het landhuis

Het erf met inrit aan de linkerkant van het landhuis (bouwjaar 2024) leidt naar de elegante entree die naar de ruime en lichte hal voert.
De hal geeft toegang tot de imposante living met de zeer ruime, open keuken en royaal woongedeelte.
Via de suitedeuren betreedt u het woongedeelte aan de voorzijde van de woning.
Het geheel biedt met zijn vele ramen en openslaande deuren een prachtig uitzicht op de tuin, het achtergelegen bos en de dijk langs het natuurgebied aan de Eems-Dollard.
De open keuken is al ingericht met een zeer ruim eiland, maar moet nog met apparatuur verder worden uitgebreid.
Een werkelijk fantastische ruimte om met vrienden en familie te koken, culinair te genieten en heerlijk te ontspannen!

Aan de linkerzijde van de living bevindt zich een ruime bijkeuken met aansluitingen voor wasmachine en droger.
In deze ruimte bevinden zich tevens het separate toilet en een berging met de technische apparatuur o.a. de warmtepomp (10 kW).

Het riante landhuis met een woonoppervlak van bijna 190 m2 is traditioneel gebouwd met materialen van topkwaliteit en bovendien gas-loos en zeer energiezuinig.
Zowel de begane grond als de 1e verdieping worden verwarmd middels vloerverwarming.

1e Verdieping

Via de trap in de hal komt u op de overloop van de 1e verdieping, met vier ruime slaapkamers, een wasruimte voorzien van aansluitingen voor wasmachine en droger en een royale badkamer welke is voorzien van een douche en een dubbele wastafel.
Tegenover deze badkamer bevindt zich een separaat 2e toilet.

Zolderverdieping

De vlizotrap op de overloop geeft toegang tot de zolderverdieping over de gehele woning.

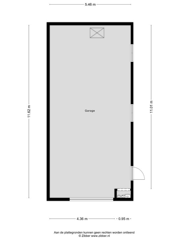
Garage/loods

De zeer ruime garage/loods (bijna 94 m2) is volledig geïsoleerd en voorzien van een elektrische overheaddeur.
Deze ruimte op zowel de begane grond als op de ruime verdieping is voorzien van water- en elektra aansluitingen.
Op het dak liggen 30 zonnepanelen welke een omvormer hebben die reeds is voorbereid voor de aansluiting van een accusysteem.

Ruime opgezete tuin en genoeg parkeergelegenheden op de oprit

BIJZONDERHEDEN

  • Energielabel A+++
  • Instapklaar
  • Gelegen op loopafstand van de Eems
  • Binnen een half uur bent u in de Eemshaven en binnen 15 minuten in Delfzijl
  • Zeer geschikt voor expat!
  • Super geïsoleerd.
  • Ruime parkeergelegenheid op eigen erf
  • Grote garage/loods
  • Zowel het landhuis als de garage/loods eer goed geïsoleerd en energiezuinig
  • Diverse onderwijsvoorzieningen en winkels in het nabijgelegen Delfzijl en/of Appingedam.

HUURPRIJS/TERMIJN
Huuurprijs: € 2.350,- excl. gas, water, elektra, internet, tv en belastingen
Per direct beschikbaar voor minimaal 12 maanden.
Borg één maand huur

123Wonen Groningen treedt bij deze woonruimte op als verhuurmakelaar voor de eigenaar. Voor dit object zijn dus geen bemiddelingskosten van toepassing. Als u na de bezichtiging wilt gaan huren is de aanbetaling op de eerste huur €150, dit is om de woning te reserveren.

123Wonen Groningen werkt bij deze woonruimte als verhuurmakelaar voor de eigenaar. Heeft u uw vorige huurwoning opgezegd of gaat u dit doen? Tip ons uw vorige verhuurder en als 123Wonen daar als verhuurmakelaar mag optreden ontvangt u als dank € 100,-.

Vindt u dit aanbod op een andere website? Kijk op onze eigen website voor het actuele aanbod: http://www.123wonen. nl/makelaar/Groningen

Voor meer informatie of een vrijblijvende bezichtiging nodigen wij u van harte uit contact op te nemen met:

123Wonen Groningen
Kraneweg 23
9718 JD Groningen
******

Overdracht

Huurprijs
€ 2.350 per maand
Prijs per m²
€ 12
Aangeboden sinds
17-02-2026
Status
Te huur
Beschikbaar
Per direct
Interieur
Kaal

Oppervlakte en inhoud

Woonoppervlakte
198 m²
Perceeloppervlakte
2.071 m²

Bouw

Type woning
Huis
Soort woning
Geschakelde woning, Eengezinswoning
Soort bouw
Bestaande bouw
Bouwjaar
2024

Indeling

Aantal kamers
1
Aantal slaapkamers
4
Aantal badkamers
1

Buitenruimte

Tuin
Aanwezig (2.071 m²)
Dakterras
Niet aanwezig

Energie

Energielabel
A+++

Garage

Aanwezig
Ja
Meld een probleem met deze woning