Niet beschikbaar

De woning die je wilt bekijken is niet langer beschikbaar. Je bekijkt nu het woningaanbod in dezelfde stad.

Contact met de makelaar

Deze woning is gevonden buiten ons eigen netwerk. Met de knop hieronder kom je direct bij de aanbieder terecht.

Verkocht onder voorbehoud

Strijplaan 601

Bekijk kaart
2285 GR Rijswijk (Strijp)
€ 479.000 k.k.
  • 101 m²
  • 5 kamers
  • 1996

Samenvatting

  • Deze woning wordt sinds 6 weken aangeboden door De Huizenbemiddelaar Haaglanden;
  • De tussenwoning heeft een woonoppervlakte van 101 m² en beschikt over 5 kamers, waarvan 4 slaapkamers;
  • De woning is gebouwd In 1996 en ligt in de buurt Strijp in Rijswijk.

Beschrijving

English below!

Graag presenteren wij u deze sfeervolle en lichte 5-kamer eengezinswoning, gelegen in de geliefde en kindvriendelijke wijk De Strijp.

De woning heeft een zonnige voor- en achtertuin, een dakterras én is gelegen in een rustige, autoluwe zijstraat van de Strijplaan. U kunt hier genieten van veel rust, ruimte en vrij uitzicht op het groen.

Ligging:

De ligging is bijzonder gunstig: in een rustige woonomgeving, maar toch zeer centraal: dichtbij winkels, openbaar vervoer, goede uitvalswegen en scholen.
Voor wie op zoek is naar een fijne woonplek voor een gezin of wil wonen met alle voorzieningen binnen handbereik is deze locatie ideaal!

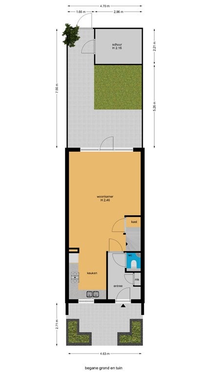
Voor de exacte indeling en maatvoering verwijzen wij u graag naar de plattegronden die beschikbaar zijn achter de fotoreportage.

Indeling:

Voortuin & entree
Aan de voorzijde bevindt zich een verzorgde nette bestraatte voortuin, die toegang biedt tot de voordeur.

Hal:
Bij binnenkomst treft u de hal met meterkast en een moderne toiletruimte voorzien van een hangend toilet en fonteintje.
Keuken:

Ook aan de voorzijde bevindt zich de half open keuken, uitgerust met de volgende inbouwapparatuur: een 4-pits gaskookplaat met extra wokbrander, combi-oven, afzuigkap en vaatwasser.
Vanuit de keuken heeft u uitzicht op de kinderspeelplaats: ideaal voor gezinnen.

Woonkamer:
De tuingerichte woonkamer is zeer licht en gezellig. Kenmerken zijn onder andere een drempelloos gelegde PVC-vloer in visgraatmotief en een praktische vaste kast. Vanuit hier loopt u direct via een deur de zonnige achtertuin (zuidoost) in.

Tuin en berging
De onderhoudsvriendelijke achtertuin ligt op het zonnige zuiden, waardoor u vrijwel de hele dag van de zon kunt genieten. Extra voorzieningen: buitenkraan, achterom en vrijstaande houten berging voorzien van elektra.

1e verdieping

Via de overloop bereikt u hier drie goed formaat slaapkamers: de ouderslaapkamer aan de voorzijde en twee slaapkamers aan de achterzijde. Tevens is hier een moderne badkamer gesitueerd, uitgerust met inloopdouche, toilet en wastafelmeubel.

2e verdieping
Op deze verdieping bevindt zich de vierde (slaap)kamer die via een deur toegang geeft tot het dakterras op het noordwesten — een fijne plek om ’s avonds buiten te zitten of te genieten van de zonsondergang.

Bijzonderheden:

  • Gelegen op eigen grond.
  • Bouwjaar 1996.
  • Woonoppervlakte 101,2 m².
  • Oplevering in overleg.
  • Energielabel B
  • Koper dient akkoord te gaan met aanvullende clausules in de objectinformatie.
  • Oplevering februari 2025

U kunt een bezichtiging aanvragen door op ****** het contactformulier in te vullen. Er wordt dan contact met u opgenomen om de afspraak te maken.

De vermelde informatie is van algemene aard en is niet meer dan een uitnodiging om de woning te bezichtigen of om in onderhandeling te treden. Hoewel deze tekst en plattegrond met zorg zijn samengesteld zijn wij niet aansprakelijk voor eventuele onjuistheden. De toegepaste Meetinstructie sluit verschillen in meetuitkomsten niet volledig uit, door bijvoorbeeld interpretatieverschillen, afrondingen of beperkingen bij het uitvoeren van de meting. Aan de inhoud van deze informatie kunnen geen rechten worden ontleend.
De foto's en plattegronden zijn eigendom van de Huizenbemiddelaar Den Haag.

We are pleased to present this charming and bright 5-room family home, located in the popular and child-friendly De Strijp neighborhood.

The house features sunny front and back gardens, a roof terrace, and is situated in a quiet, low-traffic side street off Strijplaan. Here, you can enjoy plenty of peace, space, and unobstructed views of the greenery.

Location:

The location is exceptionally convenient: in a quiet residential area, yet very centrally located, close to shops, public transport, good access roads, and schools.
This location is ideal for those looking for a pleasant place to live for a family or who want to live with all amenities within easy reach!

For the exact layout and dimensions, please refer to the floor plans available after the photo report.

Layout:

Front garden & entrance
At the front is a well-maintained, neatly paved front garden, which provides access to the front door.

Hallway:
Upon entering, you will find the hallway with the meter cupboard and a modern restroom equipped with a wall-hung toilet and a small sink.
Kitchen:

The semi-open kitchen is also located at the front of the house and is equipped with the following built-in appliances: a 4-burner gas cooktop with an additional wok burner, a combination oven, extractor hood, and a dishwasher.
From the kitchen, you have a view of the children's playground: ideal for families.

Living Room:
The garden-facing living room is very bright and cozy. Features include a threshold-free PVC floor in a herringbone pattern and a practical built-in cupboard. From here, a door leads directly into the sunny south-east-facing back garden.

Garden and Storage
The low-maintenance back garden faces south, allowing you to enjoy the sun almost all day long. Additional amenities include an outdoor tap, rear access, and a detached wooden shed with electricity.

First Floor

The landing leads to three well-sized bedrooms: the master bedroom at the front and two bedrooms at the rear. A modern bathroom is also located here, equipped with a walk-in shower, toilet, and vanity. Second floor
On this floor is the fourth (bed)room, which provides access via a door to the northwest-facing roof terrace—a lovely place to sit outside in the evening or enjoy the sunset.

Details:

  • Located on freehold land.
  • Built in 1996.
  • Living area: ****** m².
  • Delivery by arrangement.
  • Energy label B
  • Buyer must agree to additional clauses in the property information.
  • Delivery February 2025

You can request a viewing by completing the contact form on ******. We will then contact you to schedule an appointment.

The information provided is of a general nature and is merely an invitation to view the property or to enter into negotiations. While this text and floor plan have been compiled with care, we are not liable for any inaccuracies. The applied Measurement Instructions do not completely eliminate differences in measurement results, for example, due to differences in interpretation, rounding, or limitations in the measurement process. No rights can be derived from the content of this information.
The photos and floor plans are the property of the Huizenbemiddelaar Den Haag.

Overdracht

Vraagprijs
€ 479.000 k.k.
Aangeboden sinds
13-11-2025
Status
Verkocht onder voorbehoud
Beschikbaar
In overleg
Onderhoudsstaat
Goed

Oppervlakte en inhoud

Woonoppervlakte
101 m²
Perceeloppervlakte
98 m²
Inhoud
334 m³

Bouw

Type woning
Huis
Soort woning
Tussenwoning (rijtjeshuis), Eengezinswoning
Soort bouw
Bestaande bouw
Bouwjaar
1996
Ligging
  • Aan een rustige weg
  • In een woonwijk

Indeling

Aantal kamers
5
Aantal slaapkamers
4
Aantal badkamers
1
Aantal woonlagen
3
Voorzieningen
  • Dakterras
  • Toilet

Buitenruimte

Balkon
Niet aanwezig
Tuin
Aanwezig
Tuinbeschrijving
achtertuin
Dakterras
Aanwezig

Energie

Isolatie
Dubbele beglazing
Verwarming
CV-ketel
Warm water
CV-ketel
Cv-ketel
Vaillant (Gas, uit 2016, Eigendom)
Energielabel
B

Bergruimte

Schuur/Berging
Aanwezig

Parkeergelegenheid

Aanwezig
Ja
Soort parkeergelegenheid
Openbaar
Meld een probleem met deze woning