Woning verhuren

Contact met de makelaar

Deze woning is gevonden buiten ons eigen netwerk. Met de knop hieronder kom je direct bij de aanbieder terecht.

Nieuw

Te huur: Appartement Molenstraat 35 I in Born

Bekijk kaart
6121 XD (Hondsbroek)
€ 985 per maand
  • 112 m²
  • 2 kamers
  • 455 m²

Beschrijving

Op een goede locatie, op loopafstand van het goed ontwikkelde "koopcentrum" van Born, ligt deze instapklare bovenwoning met dakterras, privé-berging en eigen oprit.

INDELING
Begane grond
hal/entree met meterkast v.v. een slimme meter, 8 groepen en 2 aardlekschakelaars.

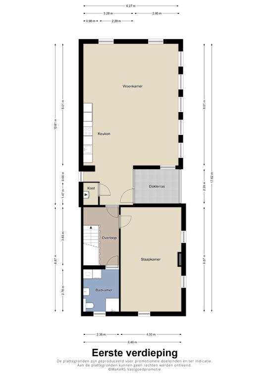
Eerste verdieping
de overloop biedt toegang tot de volgende ruimten:

  • het leefgedeelte welke is ingedeeld als woonkamer met een open keuken. De woonkamer is uitgerust met een airco-installatie en is uiterst daglicht-rijk te noemen. De keuken kent een open karakter waarbij de keukeninstallatie recht is opgesteld. De aanwezige inbouwapparatuur betreffen een afzuiging (op filterbasis), een 4-pits-gaskookplaat, een koelkast met vriesvak en een combi-magnetron. Tevens is er toegang tot de Cv-ruimte en het dakterras.

  • de ruime slaapkamer welke aan de voorzijde van de bovenwoning is gelegen. Het is een uiterst grote slaapkamer die opgesplitst kan worden in 2 ruimten. De slaapkamer is net zoals de rest van de bovenwoning afgewerkt met een laminaatvloer.

  • Een geheel betegelde badkamer met wasmachine en droger. Verder is de ruimte ingedeeld met een douchecabine, een zwevend closet en een wastafel welke is verwerkt in een badmeubel.

Dakterras
d het dakterras is gelegen tussen de slaapkamer en het leefgedeelte en kent een afmeting van 2.97 x 2.37m.

Berging
Op de begane grond, aan de achterzijde van het gebouw, ligt een privé-berging met een voorgelegen oprit.

De gehele bovenwoning is afgewerkt met een laminaatvloer, daargelaten de badkamer.

Bijzonderheden

  • pand is volledig uitgebouwd en gerenoveerd in 2002
  • het pand is uitgerust met kunststof- en houten kozijnen met dubbele beglazing
  • het betreft een instapklare woning
  • glasvezel aanwezig
  • de woning is gelegen op een bijzonder goede locatie
  • de woning is gelegen nabij diverse voorzieningen
  • aantal huurpunten voor de woning zijn 179 punten
  • Cv-installatie, merk: Nefit, bj. 2023
  • Genoemde huurprijs is excl. Gas/Water/Licht

Overdracht

Huurprijs
€ 985 per maand
Aangeboden sinds
10-12-2025
Status
Te huur
Beschikbaar
In overleg
Onderhoudsstaat
Goed

Oppervlakte en inhoud

Woonoppervlakte
112 m²
Perceeloppervlakte
455 m²
Inhoud
430 m³

Bouw

Type woning
Appartement
Soort woning
Bovenwoning
Soort bouw
Bestaande bouw
Bouwjaar
2002
Ligging
  • Aan een rustige weg
  • In een woonwijk
  • Vrij uitzicht

Indeling

Aantal kamers
2
Aantal slaapkamers
1
Aantal badkamers
1
Aantal woonlagen
2
Voorzieningen
  • Airconditioning
  • Kabel TV
  • Glasvezelaansluiting
  • Toilet

Buitenruimte

Balkon
Aanwezig
Tuin
Niet aanwezig
Dakterras
Niet aanwezig

Energie

Isolatie
Dubbele beglazing, Dakisolatie, Muurisolatie
Verwarming
CV-ketel
Warm water
CV-ketel
Cv-ketel
Nefit Ecomline (Gas, uit 2023, Eigendom)

Bergruimte

Schuur/Berging
Aanwezig
Omschrijving
Aangebouwd steen

Parkeergelegenheid

Aanwezig
Ja
Soort parkeergelegenheid
Op eigen terrein

Garage

Aanwezig
Nee
Meld een probleem met deze woning