Woning verhuren

Contact met de makelaar

Deze woning is gevonden buiten ons eigen netwerk. Met de knop hieronder kom je direct bij de aanbieder terecht.

Te huur: Appartement Bonenburgerlaan in Heerde

Bekijk kaart
8181 HE (Heerde)
€ 1.276 per maand
  • 78 m²
  • 3 kamers
  • Gestoffeerd

Beschrijving

Bent u op zoek naar een woning in hartje Heerde? Dan is dit de plek voor u. Begin 2026 zullen hier 8 appartementen worden opgeleverd die midden in het dorp gelegen zijn met alle voorzieningen dichtbij. Heeft u interesse, neem dan contact met ons op.

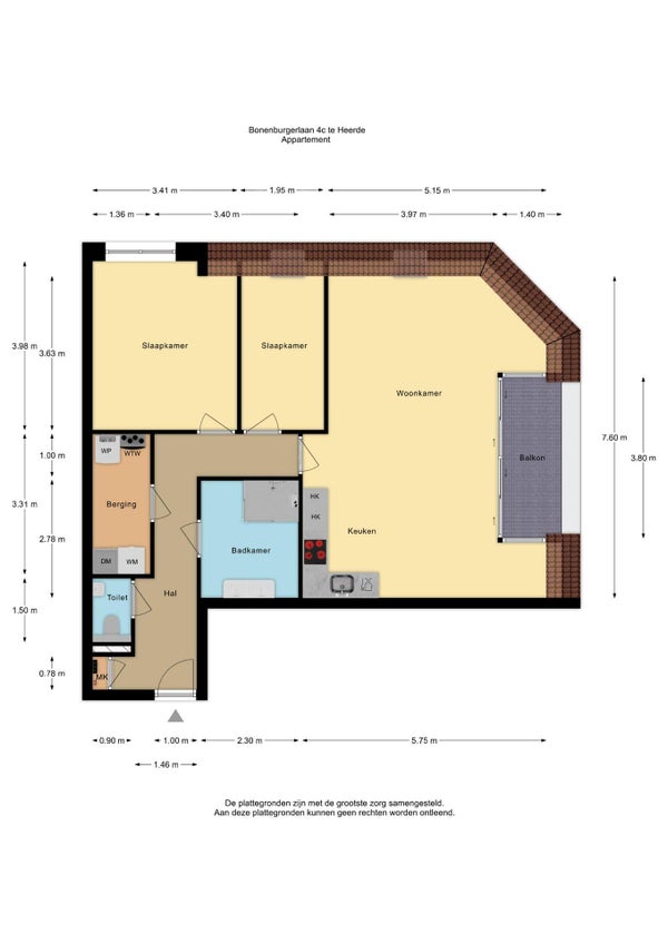
Gelegen midden in het centrum van Heerde vindt u dit mooie 3 kamer hoekappartement van 78 m2. Het appartement heeft een ruime woonkamer met veel lichtinval, 2 slaapkamers, luxe badkamer met toilet, apart toilet, keuken met inbouwapparatuur en een balkon van 5 m2. Op steenworp afstand van supermarkten, tal van winkels en boetiekjes. Het appartement beschikt over een eigen parkeerplaats op maaiveld. Tevens is er een lift aanwezig.

Overdracht

Huurprijs
€ 1.276 per maand
Aangeboden sinds
16-10-2025
Status
Te huur
Beschikbaar
Per 01-02-2026
Interieur
Gestoffeerd

Oppervlakte en inhoud

Woonoppervlakte
78 m²

Bouw

Type woning
Appartement
Soort woning
Bovenwoning
Soort bouw
Nieuwbouw
Bouwjaar
2025

Indeling

Aantal kamers
3

Buitenruimte

Dakterras
Niet aanwezig

Energie

Verwarming
CV-ketel

Parkeergelegenheid

Aanwezig
Ja
Meld een probleem met deze woning
Contact met de makelaar Bel