Woning verhuren

Contact met de makelaar

Deze woning is gevonden buiten ons eigen netwerk. Met de knop hieronder kom je direct bij de aanbieder terecht.

Nieuw

Te huur: Appartement Sphinxlunet 38 F in Maastricht

Bekijk kaart
6221 JH (Wyck)
€ 1.975 per maand
  • 72 m²
  • 4 kamers
  • 14 m²

Beschrijving

Appartement te huur in de wijk Ceramique in het appartementencomplex "Porta II" op de vijfde verdieping met twee slaapkamers, half open keuken, woonkamer met balkon, kelderberging en eigen parkeerplaats. Het appartement is volledig gemeubileerd en gestoffeerd. Het appartementencomplex Porta I en II zijn twee fraaie appartementengebouwen rondom een riante binnentuin.

Het appartement is gunstig gelegen aan de rand van de wijk "Wijck" en vlakbij het NS station. Alle stedelijke voorzieningen binnen loopafstand. AZM, Provinciehuis en alle andere bedrijven in wijk "Randwijck" zijn goed bereikbaar met bus, auto of fiets.

INDELING:

Souterrain:
Privé berging, parkeerplaats voor 1 auto in afgesloten parkeerkelder.

Begane grond:
Centrale entree met bellentableau, video-intercom, brievenbussen, liftinstallatie en trappenhuis.

Vijfde verdieping - appartement:

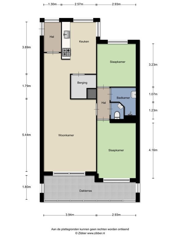
Entree/hal, toiletruimte, Woon-/ eetkamer met dubbele deuren naar het balkon aan de voorzijde (7.15 x 3.95/ 3.20 m).
Halfopen keukenruimte.
Slaapkamer 1 (4.28 x 2.78 m) aan de voorzijde gelegen.
Slaapkamer 2 (3.70 x 2.76 m) aan de achterzijde gelegen.
Betegelde badkamer voorzien van wastafel en douche.
Berging met aansluitpunten voor de was apparatuur.

Huurcondities:

  • € 1975,- per maand
  • Huur is inclusief stoffering, meubels, afschrijving meubels en exclusief servicekosten (€ 225,- per maand)
  • Voorschot energie/ electra: € 200,- per maand (jaarlijkse verrekening) excl water
  • Totaal huur plus kosten: € 2.200,- per maand
  • Waarborgsom 2 maanden huur: € 3.650,-
  • Huurperiode onbepaalde tijd of bepaalde tijd, 2 jaar (voor uitzonderingsgevallen) met 1 maand opzegtermijn aan einde huurperiode
  • Huur per 11 maart 2026

Bezichtiging en verhuur:
Na invulling informatie formulier te verkrijgen op ons kantoor op aanvraag.

Bijzonderheden:

  • Niet geschikt voor studenten!
  • Gemeubileerd en gestoffeerd
  • de centrale ligging op loopafstand van uitgebreide winkelvoorzieningen, Centre Céramique, Derlon Theater, NS-station en de centrale bushalte voor zowel stads- als streekvervoer maken deze locatie zeer geliefd

Meer woninginformatie bekijken?

Log in of registreer gratis.

Overdracht

Huurprijs
€ 1.975 per maand
Aangeboden sinds
04-11-2025
Status
Te huur
Beschikbaar
Per 11-03-2026
Onderhoudsstaat
Goed

Oppervlakte en inhoud

Woonoppervlakte
72 m²
Inhoud
325 m³

Bouw

Type woning
Appartement
Soort woning
Portiekflat, Appartement
Soort bouw
Bestaande bouw
Bouwjaar
1992
Ligging
  • In het centrum
  • In een woonwijk

Indeling

Aantal kamers
4
Aantal slaapkamers
2
Aantal badkamers
1
Aantal woonlagen
1
Voorzieningen
  • Kabel TV
  • Douche
  • Bergruimte
  • Toilet

Buitenruimte

Balkon
Niet aanwezig
Tuin
Aanwezig (14 m², gelegen op het zuiden)
Tuinbeschrijving
zonneterras
Dakterras
Niet aanwezig

Energie

Verwarming
Stadsverwarming
Energielabel
B

Bergruimte

Schuur/Berging
Aanwezig
Omschrijving
Box

Garage

Aanwezig
Ja
Omschrijving
Parkeerkelder, parkeerplaats
Meld een probleem met deze woning
Contact met de makelaar Bel