Woning verhuren

Contact met de makelaar

Deze woning is gevonden buiten ons eigen netwerk. Met de knop hieronder kom je direct bij de aanbieder terecht.

Nieuw

Te huur: Appartement Dokter Nevenstraat in Maastricht

Bekijk kaart
6224 DD (Scharn)
€ 920 per maand
  • 20 m²
  • 1 kamer
  • Gestoffeerd

Beschrijving

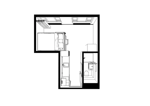
Luxe gemeubileerde studio in het moderne campuscomplex 'Wauwhaus'. De studio is uitgerust met een tweepersoonsbed (140x210cm), moderne en-suite badkamer, luxe open keuken (incl. inbouwapparatuur), royale kleding- & opbergkast, bureau met stoel, lounge sofa en high-speed internet. De studio is gelegen op de begane grond (zuidzijde). Zie plattegrond voor de exacte ligging in het complex.

Het complex met 127 bewoners is van alle gemakken voorzien om te wonen, studeren, ontmoeten en ontspannen. Er is een grote ontmoetingsruimte op de begane grond met gemeenschappelijke keuken, drie studieruimtes, chill out area, Miele wasserette en fietsenstalling. Daarnaast is het mogelijk om een parkeerplaats voor de auto te huren in de ondergrondse garage voor €50,00 per maand. Kijk voor meer informatie ook op ******

Overdracht

Huurprijs
€ 920 per maand
  • Inclusief: Elektra, Gas, Internet, Servicekosten, Water
Aangeboden sinds
13-12-2025
Status
Te huur
Beschikbaar
Per 01-01-2026
Huurovereenkomst
Tijdelijke verhuur
Looptijd
Minimaal 12 maanden
Borg
€ 1.320
Interieur
Gestoffeerd
Onderhoudsstaat
Goed

Oppervlakte en inhoud

Woonoppervlakte
20 m²

Bouw

Type woning
Appartement
Soort woning
Galerijflat, Appartement
Soort bouw
Bestaande bouw
Bouwjaar
2020
Ligging
  • Nabij het openbaar vervoer
  • Nabij een school

Indeling

Aantal kamers
1
Voorzieningen
  • Internetaansluiting
  • Rioolaansluiting
  • Douche
  • Toilet

Buitenruimte

Tuin
Niet aanwezig
Dakterras
Niet aanwezig

Energie

Energielabel
A

Bergruimte

Schuur/Berging
Aanwezig

Parkeergelegenheid

Aanwezig
Ja
Soort parkeergelegenheid
Betaald
Omschrijving
Parking for rent

Huurvoorwaarden

Roken toegestaan
Nee
Huisdieren toegestaan
Nee
Meld een probleem met deze woning