Contact met de makelaar

Deze woning is gevonden buiten ons eigen netwerk. Met de knop hieronder kom je direct bij de aanbieder terecht.

Verkocht onder voorbehoud

Daniël Defoelaan 9

Bekijk kaart
1102 ZD Amsterdam (Venserpolder)
€ 375.000 k.k.
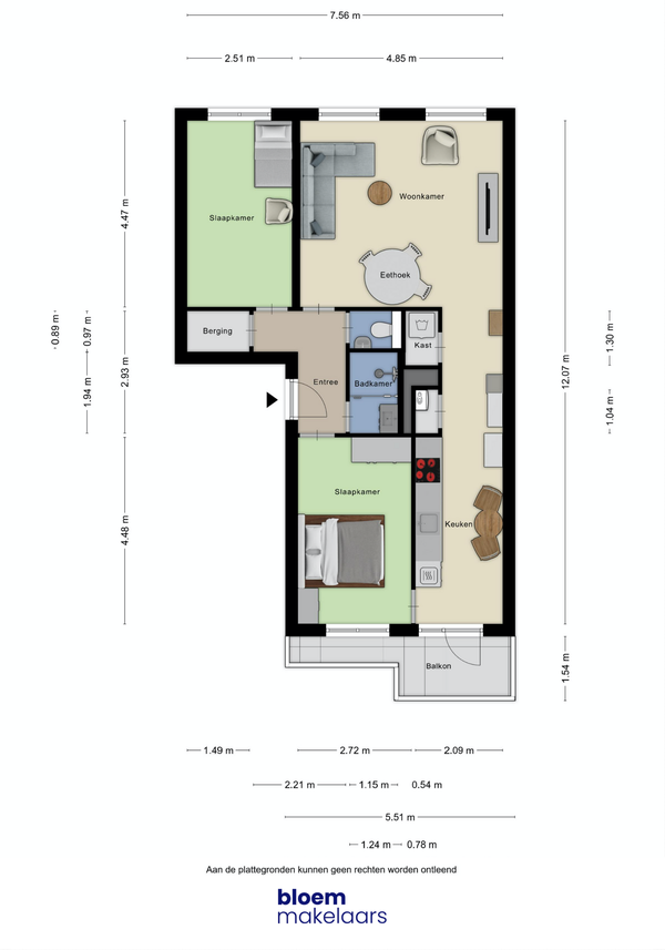
  • 73 m²
  • 3 kamers
  • 1983

Samenvatting

  • Deze woning wordt sinds 5 weken aangeboden door Bloem Makelaars;
  • De portiekflat heeft een woonoppervlakte van 73 m² en beschikt over 3 kamers, waarvan 2 slaapkamers;
  • De woning is gebouwd In 1983 en ligt in de buurt Venserpolder in Amsterdam;
  • De woning beschikt onder andere over de volgende voorzieningen: Kabel TV, Douche, Bergruimte, Toilet.

Beschrijving

Overdracht

Vraagprijs
€ 375.000 k.k.
Aangeboden sinds
04-10-2025
Status
Verkocht onder voorbehoud
Beschikbaar
In overleg
Onderhoudsstaat
Zeer goed

Oppervlakte en inhoud

Woonoppervlakte
73 m²
Inhoud
241 m³

VvE informatie

Inschrijving KvK
Ja
Jaarlijkse vergadering
Ja
Periodieke bijdrage
Ja (€ 210 per maand)
Reservefonds aanwezig
Ja
Onderhoudsplan
Ja
Opstalverzekering
Ja

Bouw

Type woning
Appartement
Soort woning
Portiekflat, Appartement
Soort bouw
Bestaande bouw
Bouwjaar
1983
Ligging
  • Aan een rustige weg
  • In een woonwijk

Indeling

Aantal kamers
3
Aantal slaapkamers
2
Aantal badkamers
1
Aantal woonlagen
1
Voorzieningen
  • Kabel TV
  • Douche
  • Bergruimte
  • Toilet

Buitenruimte

Balkon
Aanwezig
Tuin
Niet aanwezig
Dakterras
Niet aanwezig

Energie

Isolatie
Dubbele beglazing, HR glas
Verwarming
CV-ketel
Warm water
CV-ketel
Cv-ketel
Intergas (Gas, Eigendom)
Energielabel
C

Bergruimte

Schuur/Berging
Aanwezig
Omschrijving
Inpandig

Parkeergelegenheid

Aanwezig
Ja
Soort parkeergelegenheid
Openbaar

Garage

Aanwezig
Nee
Meld een probleem met deze woning
Contact met de makelaar Bel