Contact met de makelaar

Deze woning is gevonden buiten ons eigen netwerk. Met de knop hieronder kom je direct bij de aanbieder terecht.

Nieuw

Churchill-laan

Bekijk kaart
1078 DP Amsterdam (Scheldebuurt)
€ 1.250.000 k.k.
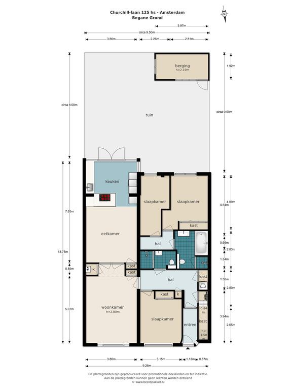
  • 121 m²
  • 5 kamers
  • 1928

Samenvatting

  • Deze woning wordt sinds 11 december 2025 aangeboden door Vondel Makelaars;
  • De galerijflat heeft een woonoppervlakte van 121 m² en beschikt over 5 kamers, waarvan 3 slaapkamers;
  • De woning is gebouwd In 1928 en ligt in de buurt Scheldebuurt in Amsterdam.

Beschrijving

Overdracht

Vraagprijs
€ 1.250.000 k.k.
Aangeboden sinds
11-12-2025
Status
Beschikbaar
Beschikbaar
In overleg

Oppervlakte en inhoud

Woonoppervlakte
121 m²

Bouw

Type woning
Appartement
Soort woning
Galerijflat
Soort bouw
Bestaande bouw
Bouwjaar
1928

Indeling

Aantal kamers
5
Aantal slaapkamers
3
Aantal badkamers
2

Buitenruimte

Dakterras
Niet aanwezig

Energie

Energielabel
B
Meld een probleem met deze woning