Contact met de makelaar

Deze woning is gevonden buiten ons eigen netwerk. Met de knop hieronder kom je direct bij de aanbieder terecht.

Nieuw

Achter de Lang Haag 17

Bekijk kaart
6245 HL Eijsden (Eijsden-Breust)
€ 399.000 k.k.
  • 125 m²
  • 4 kamers
  • 1979

Samenvatting

  • Deze woning wordt sinds 14 januari 2026 aangeboden door Goessens & Goessens Makelaardij;
  • De tussenwoning heeft een woonoppervlakte van 125 m² en beschikt over 4 kamers, waarvan 3 slaapkamers;
  • De woning is gebouwd In 1979 en ligt in de buurt Eijsden-Breust in Eijsden;
  • De woning beschikt onder andere over de volgende voorzieningen: Airconditioning, Rolluiken, Bergruimte, Toilet.

Beschrijving

Deze woning wordt aangeboden door Goessens & Goessens Makelaardij

-Beschrijving:
Op een rustige, kindvriendelijke locatie in het geliefde Eijsden mogen wij u deze uitstekend onderhouden, instapklare en tussengelegen woning aanbieden. De woning is in de loop der jaren uitgebouwd en combineert comfort, ruimte en energiezuinig wonen op een prettige manier. Zo beschikt de woning onder meer over een carport, drie ruime slaapkamers, airconditioning, 11 zonnepanelen en een sfeervolle, onderhoudsvriendelijke achtertuin met achterom.

Binnen treft u een moderne en comfortabele leefomgeving aan met een logische en prettige indeling, die zowel zeer geschikt is voor gezinnen als voor stellen die waarde hechten aan rust, ruimte en goede bereikbaarheid. De woning is gelegen op korte afstand van winkels, scholen en overige dagelijkse voorzieningen. Daarnaast zijn het centrum van Maastricht, het MUMC+ en de Universiteit Maastricht binnen circa 15 autominuten bereikbaar, wat deze locatie ook ideaal maakt voor forenzen.

-Indeling:

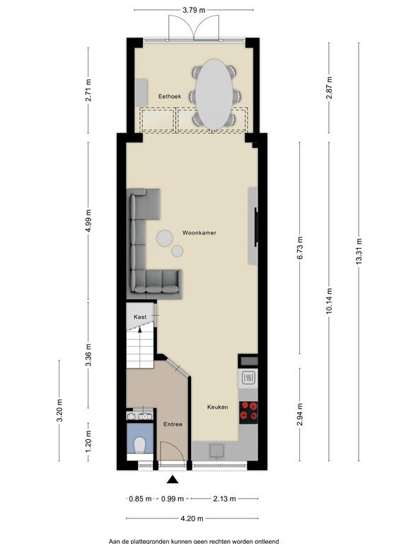
-Begane grond:
Via de entree (ca. 6 m²), afgewerkt met een lichtkleurige tegelvloer, betreedt u de woning. In de entree bevinden zich de meterkast, de moderne toiletruimte, de trapopgang naar de eerste verdieping en de toegang tot de woonkamer met open keuken. De toiletruimte is geheel betegeld en voorzien van een hangcloset. De gehele begane grond is uitgerust met comfortabele vloerverwarming, wat bijdraagt aan een aangenaam wooncomfort.

De royale en sfeervolle woonkamer met open keuken heeft een totale oppervlakte van circa 46 m² en is afgewerkt met dezelfde fraaie tegelvloer als in de entree, wat zorgt voor een rustige en uniforme uitstraling. Dankzij de grote raampartijen aan de voorzijde en de openslaande deuren met lichtstraat aan de achterzijde geniet deze leefruimte van een prettige, natuurlijke lichtinval gedurende de hele dag. De deuren aan de achterzijde bieden direct toegang tot de tuin en creëren een mooie verbinding tussen binnen en buiten.

De keuken is aan de voorzijde van de woning gesitueerd en uitgevoerd in een moderne L-opstelling met witte, greeploze fronten. De keuken is voorzien van diverse inbouwapparatuur, waaronder een elektrische kookplaat, afzuigkap, combi-oven, vaatwasser en koelkast. Een fijne en praktische plek om uitgebreid te koken en te genieten van het dagelijks leven.

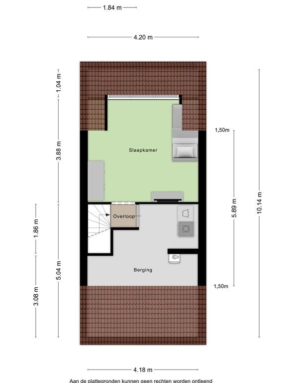
-Eerste verdieping:
Via de trap in de entree bereikt u de overloop op de eerste verdieping. Hier bevinden zich twee ruime slaapkamers, een modern afgewerkte badkamer en een berging. Over de gehele verdieping ligt een fraaie laminaatvloer.
• Slaapkamer 1: Deze ruime slaapkamer is ca. 18 m² groot.
• Slaapkamer 2: Deze comfortabele slaapkamer is ca. 13 m² groot.
• Badkamer: De betegelde badkamer (ca. 4 m² groot) is modern afgewerkt en voorzien van een ligbad met douche, een wastafelmeubel en een handdoekradiator.
• Berging: De berging is praktisch in gebruik en ideaal voor het opbergen van kleding, linnengoed of andere spullen.

-Tweede verdieping:
De vaste trap op de eerste verdieping leidt naar de tweede verdieping, waar een royale vierde slaapkamer en een berging zijn gerealiseerd.
• Slaapkamer 4: Deze slaapkamer is ca. 16,5 m² groot en voorzien van een brede dakkapel, waardoor de ruimte aangenaam licht en ruimtelijk aanvoelt. Tevens is hier airconditioning aanwezig, wat zorgt voor extra comfort tijdens warme dagen.
• Berging: De ruime berging is voorzien van de witgoedaansluiting en zeer praktisch voor het opbergen van spullen. Tevens bevindt zich hier de cv-ketel (Nefit, Huur).

-Tuin:
De woning beschikt over een fraaie, sfeervolle en onderhoudsvriendelijke achtertuin, welke bereikbaar is via de deuren in de leefruimte en via een achterom. De tuin is volledig omheind en aangelegd met een ruim terras en diverse plantenborders. Direct grenzend aan de leefruimte bevindt zich een elektrisch uitschuifbaar zonnescherm, waardoor u hier vrijwel het gehele jaar door comfortabel kunt zitten.

Achter in de tuin bevindt zich een carport van circa 13 m², die niet alleen geschikt is voor het plaatsen van tuinmeubilair, maar ook uitstekend kan worden gebruikt als beschutte zitplek. Aangrenzend ligt een praktische berging van circa 7 m², ideaal voor het plaatsen van een extra koelkast of vriezer en voor het opbergen van fietsen, gereedschap en tuinmaterialen.

-Nadere bijzonderheden:
• Instapklare, tussengelegen woning met carport, drie slaapkamers en een onderhoudsvriendelijke tuin gelegen op een geliefde en kindvriendelijke locatie in Eijsden.
• Kozijnen: Kunststof kozijnen en HR-beglazing.
• Rolluiken: De woning is volledig voorzien van rolluiken.
• Centrale verwarming: HR combi-ketel (Nefit, Huur).
• Zonnepanelen: 11 zonnepanelen als onderdeel van het project gemeente Eijsden-Margraten (2017).
• Energielabel: A.
• De woning is voorzien van vloerverwarming op de begane grond en airconditioning op de tweede verdieping.
• Alle vermelde afmetingen zijn indicatief en kunnen afwijken van de werkelijkheid.

-Omgeving:
Ideale ligging in Eijsden
Deze woning bevindt zich in het geliefde Eijsden, op een uiterst praktische locatie. Alle voorzieningen zijn binnen handbereik: winkelcentrum met o.a. een supermarkt en drogist, op slechts 1 minuut loopafstand, scholen, een treinstation en busverbindingen. Daarnaast kunt u genieten van de gezellige terrasjes en sfeervolle eetcafés langs de Maas. Het bruisende centrum van Maastricht, het MUMC+ en de Universiteit Maastricht (UM) liggen op slechts 15 minuten rijden. Bovendien biedt Eijsden uitstekende verbindingen: een directe treinverbinding naar Maastricht en Luik, en een goede busverbinding naar Maastricht. Eijsden staat ook bekend om haar rijke tradities, zoals de jaarlijkse “Broonk”, een feestelijke gelegenheid om de hartelijke dorpsgemeenschap beter te leren kennen. Deze combinatie van bereikbaarheid, voorzieningen en gezelligheid maakt deze locatie uniek.

Graag verwijzen wij u naar onze website ******, waar meer verkoopinformatie, onze disclaimer en de verkoopvoorwaarden te vinden zijn. Deze presentatie is door Goessens & Goessens Makelaardij met de nodige zorg samengesteld. Onzerzijds wordt echter geen enkele aansprakelijkheid aanvaard voor enige onvolledigheid, onjuist of anderszins, dan wel de gevolgen daarvan. Alle opgegeven maten en oppervlakten zijn indicatief. Deze presentatie is slechts indicatief. Er is nagestreefd naar een zo zorgvuldig mogelijke informatie van de ter beschikking staande gegevens.

Overdracht

Vraagprijs
€ 399.000 k.k.
Aangeboden sinds
14-01-2026
Status
Beschikbaar
Beschikbaar
In overleg
Onderhoudsstaat
Goed

Oppervlakte en inhoud

Woonoppervlakte
125 m²
Perceeloppervlakte
126 m²
Inhoud
442 m³

Bouw

Type woning
Huis
Soort woning
Tussenwoning (rijtjeshuis), Eengezinswoning
Soort bouw
Bestaande bouw
Bouwjaar
1979
Ligging
Aan een rustige weg

Indeling

Aantal kamers
4
Aantal slaapkamers
3
Aantal badkamers
1
Aantal woonlagen
3
Voorzieningen
  • Airconditioning
  • Rolluiken
  • Bergruimte
  • Toilet

Buitenruimte

Balkon
Niet aanwezig
Tuin
Aanwezig
Tuinbeschrijving
tuin rondom
Achterom
Niet aanwezig
Dakterras
Niet aanwezig

Energie

Verwarming
CV-ketel, Gedeeltelijke vloerverwarming
Warm water
CV-ketel
Cv-ketel
Nefit (Gas, Gehuurd)
Energielabel
A

Bergruimte

Schuur/Berging
Aanwezig

Parkeergelegenheid

Aanwezig
Ja
Soort parkeergelegenheid
Openbaar
Meld een probleem met deze woning