Woning verhuren

Contact met de aanbieder

Deze woning is gevonden buiten ons eigen netwerk. Via de knop hieronder ga je direct naar de website van de aanbieder.

Nieuw

Te huur: Appartement Eyckenstein in Amstelveen

Bekijk kaart
1187 HX (Buitenplaatsenbuurt)
€ 2.750 per maand
  • 119 m²
  • 4 kamers
  • Gemeubileerd

Beschrijving

LICHT EN MODERN 4-KAMER APPARTEMENT (119 M²) MET BALKON (10 M²), NIEUWE BADKAMER EN ENERGIELABEL A – AMSTELVEEN WESTWIJK
In het geliefde complex Eyckenstein, bekend om het groene atrium en het markante open trappenhuis (met lift), bevindt zich dit royale en instapklare 4-kamer appartement. Met 119 m² woonoppervlak, een balkon van 10 m², een splinternieuwe badkamer, vernieuwde CV-installatie en energielabel A, biedt deze woning een perfecte combinatie van comfort, stijl en duurzaamheid.

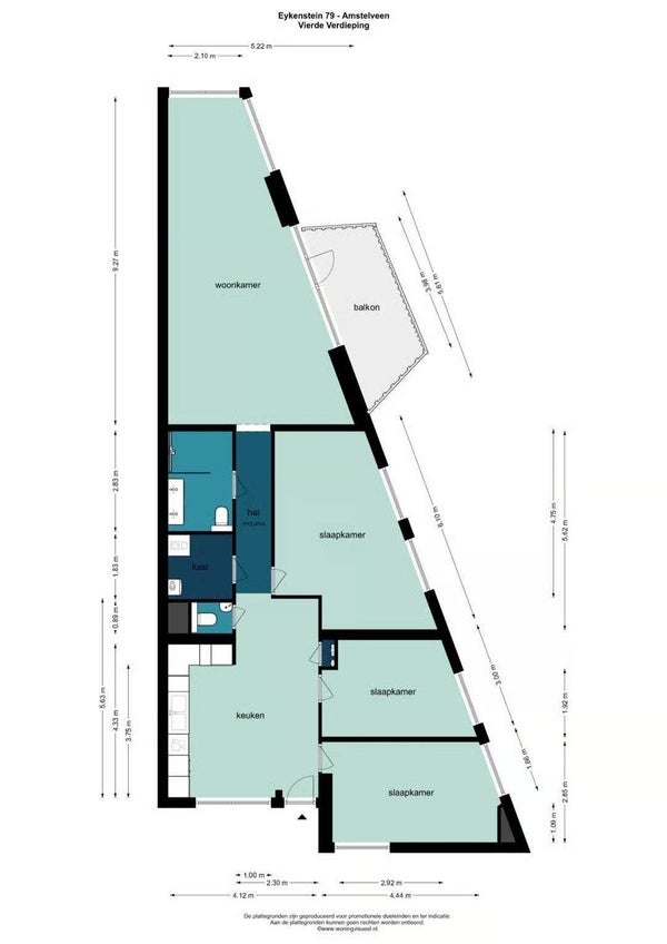
Indeling
Via het fraaie atrium bereikt u het appartement op de vierde verdieping.
• Ruime en lichte woon-/eetkamer met grote raampartijen en toegang tot het balkon van 10 m².
• Open keuken met kookeiland en complete inbouwapparatuur – ideaal voor kookliefhebbers.
• Ruime main bedroom met plaats voor een tweepersoonsbed en werkplek.
• Tweede slaapkamer, perfect als kinder- of logeerkamer.
• Derde kamer, ideaal als werkkamer, inloopkast of hobbyruimte.
• Nieuwe badkamer met inloopdouche, dubbele wastafel, tweede toilet en handdoekradiator.
• Separaat gastentoilet in de hal.
Locatie
De ligging in Westwijk is bijzonder gunstig:
• Uitstekende verbindingen met tramlijn 25 en diverse buslijnen, o.a. richting Schiphol.
• De Internationale School, basisscholen, middelbare scholen en sportvoorzieningen bevinden zich op korte afstand.
• Winkelcentrum Westwijk biedt een modern en compleet winkelaanbod.
• Gratis parkeren in de buurt.

Pluspunten op een rij
• 119 m² woonoppervlak
• Balkon van 10 m² op het noordoosten
• Energielabel A
• Nieuwe badkamer, toilet en vernieuwde CV
• 3 slaapkamers
• Lift aanwezig
• Fraai atrium en verzorgd complex

Dit lichte en moderne appartement biedt een heerlijke combinatie van ruimte, comfort en duurzaamheid – ideaal voor gezinnen, expats of iedereen die royaal wil wonen in een rustige, maar uitstekend bereikbare wijk van Amstelveen.

Overdracht

Huurprijs
€ 2.750 per maand
Prijs per m²
€ 23
Aangeboden sinds
20-02-2026
Status
Te huur
Beschikbaar
Per direct
Interieur
Gemeubileerd

Oppervlakte en inhoud

Woonoppervlakte
119 m²

Bouw

Type woning
Appartement
Soort woning
Portiekflat
Soort bouw
Bestaande bouw
Bouwjaar
1995

Indeling

Aantal kamers
4
Aantal slaapkamers
3
Aantal badkamers
1
Aantal woonlagen
1

Buitenruimte

Balkon
Aanwezig
Dakterras
Niet aanwezig

Energie

Verwarming
CV-ketel
Energielabel
A
Meld een probleem met deze woning