Woning verhuren

Contact met de makelaar

Deze woning is gevonden buiten ons eigen netwerk. Met de knop hieronder kom je direct bij de aanbieder terecht.

Nieuw

Te huur: Appartement Tweede Kostverlorenkade 46 A in Amsterdam

Bekijk kaart
1053 TP (Bellamybuurt)
€ 1.870 per maand
  • 71 m²
  • 3 kamers
  • 1989

Beschrijving

Heb je interesse in de woning en wil je een bezichtiging?
Je kunt dan een schriftelijke reactie achterlaten bij de advertentie, wij zullen dan de eerste kandidaten uitnodigen voor een bezichtiging. Vanwege de vele aanvragen kunnen wij helaas niet iedereen uitnodigen, als je binnen 3 dagen geen reactie hebt ontvangen, ben je helaas niet geselecteerd om het appartement te bezichtigen. Telefonisch plannen wij geen afspraken in.

Per direct beschikbaar: driekamerappartement aan de Tweede Kostverlorenkade!

Ben je op zoek naar een ruime woning in een populaire buurt in stadsdeel West? De woning verdient nog wel wat liefde en aandacht om het een warm thuis van te maken.

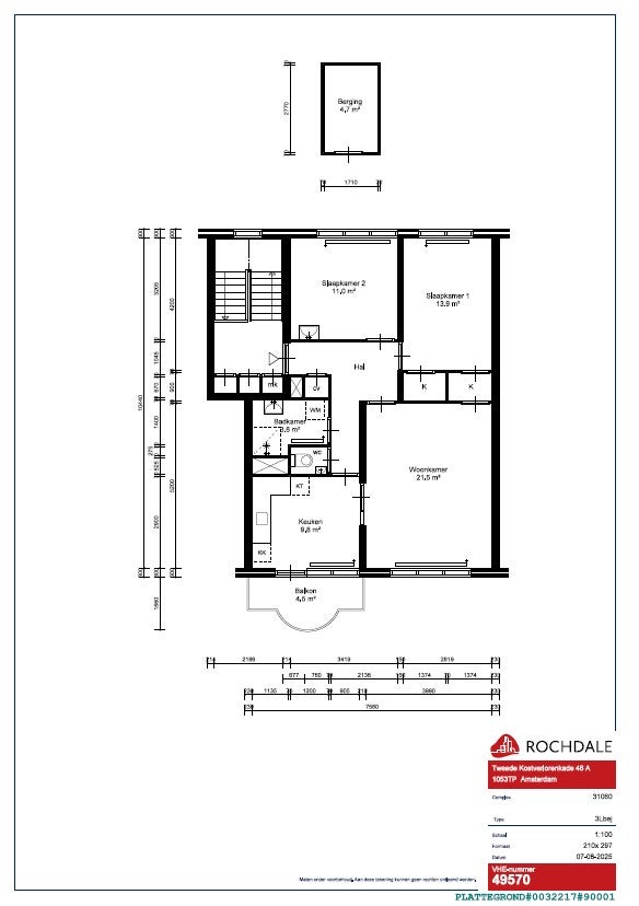
Deze woning heeft een oppervlakte van circa 70 vierkante meter en is gelegen op de eerste verdieping van het pand. De woonkamer heeft een totale oppervlakte van 21 vierkante meter en is gelegen aan de voorzijde van het pand met uitzicht op het water. Naast de woonkamer bevindt zich de gesloten eenvoudige keuken zonder (inbouw)apparatuur. Vanuit de keuken is toegang naar het balkon, gelegen op het Westen, waar je heerlijk vanaf de middag in de zon kan genieten van het uitzicht. De twee ruime slaapkamers zijn gelegen aan de achterzijde van het appartement en hebben een oppervlakte van circa 11 en 14 vierkante meter. Vanuit de hal heb je toegang naar de badkamer waar tevens de wasmachine aansluiting is geïnstalleerd. Daarnaast heeft het appartement een separaat toilet en een separate berging op de begane grond.

De woning is gelegen in het populaire Oud-west. Een ideale ligging met veel voorzieningen in de buurt. De gezellige Bilderdijkstraat met horecagelegenheden en diverse winkels op de Kinkerstraat. In een paar minuten wandel je naar het Vondelpark. Diverse uitvalswegen zijn goed te bereiken en natuurlijk een zeer goed netwerk met betrekking tot het OV.

Huurvoorwaarden:

  • Per direct beschikbaar
  • Waarborgsom van 1 maand huur
  • Minimale huurperiode van 12 kalendermaanden, daarna stilzwijgend naar onbepaalde tijd
  • Inkomenseis: het bruto verzamelinkomen moet minimaal 48x de netto huurprijs zijn
  • Woningdelers NIET toegestaan
  • Studenten NIET toegestaan
  • NIET mogelijk om te huren met garantstelling van derden

Meer woninginformatie bekijken?

Log in of registreer gratis.

Overdracht

Huurprijs
€ 1.870 per maand
  • Exclusief: Servicekosten
Aangeboden sinds
05-11-2025
Status
Te huur
Beschikbaar
In overleg
Bijzonderheden
Kluswoning
Borg
€ 1.870
Onderhoudsstaat
Goed

Oppervlakte en inhoud

Woonoppervlakte
71 m²
Inhoud
184 m³

Bouw

Type woning
Appartement
Soort woning
Bovenwoning, Appartement
Soort bouw
Bestaande bouw
Bouwjaar
1989
Ligging
  • Aan vaarwater
  • Aan het water
  • In een woonwijk

Indeling

Aantal kamers
3
Aantal slaapkamers
2
Aantal badkamers
1
Aantal woonlagen
1
Voorzieningen
  • Douche
  • Bergruimte
  • Toilet

Buitenruimte

Balkon
Aanwezig
Tuin
Niet aanwezig
Dakterras
Niet aanwezig

Energie

Energielabel
A

Garage

Aanwezig
Nee
Meld een probleem met deze woning
Contact met de makelaar Bel