Woning verhuren

Contact met de makelaar

Deze woning is gevonden buiten ons eigen netwerk. Met de knop hieronder kom je direct bij de aanbieder terecht.

Nieuw

Te huur: Appartement Lutonhof in Amsterdam

Bekijk kaart
1043 EG (Sloterdijk Nieuw-West)
€ 2.375 per maand
  • 65 m²
  • 3 kamers
  • Gestoffeerd

Beschrijving

NIEUW IN DE VERHUUR!! Ben jij op zoek naar een heerlijk licht, duurzaam (energielabel A+) en goed ingedeeld gestoffeerd 3-kamer (zie plattegrond voor de afmetingen van de slaapkamers: niet geschikt voor woningdelers) nieuwbouwappartement met ruim balkon op loopafstand van station Sloterdijk. Zoek dan niet verder en plan snel een bezichtiging.

*Reageren kan uitsluitend per email tezamen met profielschets en inkomensindicatie. Kandidaten die geselecteerd zijn ontvangen vervolgens een uitnodiging voor een bezichtiging.

Omgeving:
Het woongebouw genaamd Track 6 met 41 appartementen maakt onderdeel uit van project MOTown en bevindt zich in Sloterdijk Centrum, op loopafstand van NS-station Sloterdijk. Dit gebied in Amsterdam West ondergaat een enorme transformatie naar een groene, bruisende stadswijk. Een gemengd woon- en werkgebied op bovendien een geweldige plek; een knooppunt van openbaar vervoer, de ring A10 naast de deur en op fietsafstand van de binnenstad. Het pocketpark dat straks tussen de 3 MOTown gebouwen ligt biedt ruimte voor ontspanning voor bewoners. Je komt binnen via een tussenstraat en je betreedt het mediterraan aandoende binnenhof: een oase van rust. Vanuit dit hof worden alle woningen ontsloten.

Lay-out:
Keurig verzorgde algemene entree op de begane grond met toegang naar de lift/trap als ook de parkeergarage met gemeenschappelijke fietsenstalling.

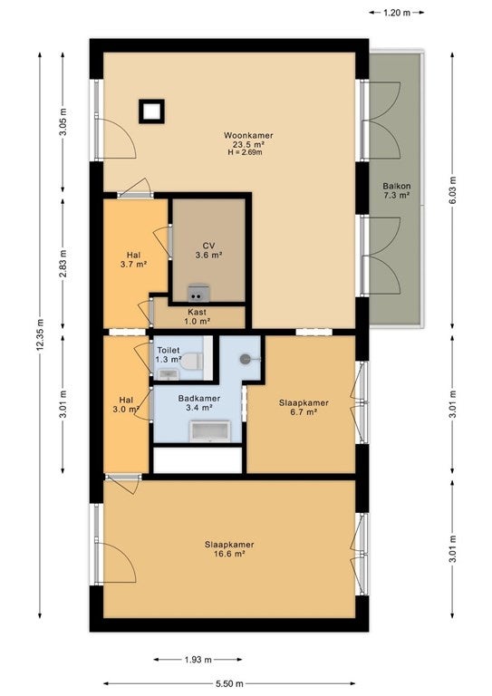
Het appartement is gelegen op de vijfde verdieping. Binnenkomst in de hal met toegang tot alle vertrekken, te weten: woon/eetkamer, keuken, 2 slaapkamers, badkamer, toilet, technische ruimte/inpandige berging en balkon. In de ondergelegen parkeerkelder bevindt zich de gemeenschappelijke fietsenstalling. Geen externe berging aanwezig.

De doorzon woon/eetkamer is van goed formaat en geeft toegang tot het balkon (8m2) gesitueerd op het oosten. De keuken is voorzien van voldoende kastruimte en diverse moderne inbouwapparatuur (o. a. koel-vriescombinatie, vaatwasser, inductiekookplaat, magnetron/oven en afzuigkap). De badkamer is uitgevoerd in neutrale kleurstelling, volledig betegeld en voorzien van een inloopdouche met waterbesparende regendouche en een wastafelmeubel met spiegel en elektrische handdoekradiator. Het toilet met fontein is uitgevoerd in dezelfde kleurstelling. De slaapkamers zijn beide van goed formaat, waarvan er één direct toegang geeft tot de badkamer. In de technische ruimte/inpandige berging bevindt zich de aansluiting voor de wasmachine en/of droger. Het appartement wordt verwarmd als ook gekoeld d.m.v. vloerverwarming (WKO). De vloer is afgewerkt met een kwalitatief hoogwaardige PVC vloer.

Buitenruimte
Tot de woning hoort een privé balkon van ca. 8m2 gesitueerd op het oosten. Daarnaast heeft elke bewoner toegang tot het gemeentelijke, onder architectuur aangelegde, afgesloten dakterras gelegen op de 6e (bovengelegen) verdieping.

Parkeren
Op dit adres kunt u geen parkeervergunning aanvragen en er zijn momenteel geen parkeerplaatsen te huur in het complex.

Bijzonderheden:
-Per direct beschikbaar;
-Vraagprijs: €2.375,- p.m. inclusief VvE-bijdrage, exclusief verwarming/warm water, elektra, tv/internet en lokale belastingen (afvalstoffenheffing -en waterschapsbelasting);
-Borg: 2 maanden kale huur;
-Staat van oplevering: gestoffeerd (inclusief raambekleding, wasmachine, verlichting en vloer);
-Bouwjaar: 2024;
-Energielabel: A+;
-Gasloos (verwarming en warm water door middel van aardwarmte/ WKO);
-65m2;
-2 slaapkamers;
-Separaat toilet;
-PVC vloer;
-Balkon op het oosten;
-Gemeenschappelijk dakterras;
-Gemeenschappelijke fietsenstalling in de onderbouw;
-Liftinstallatie en video intercom;
-Roken en huisdieren niet toegestaan;

Voor meer informatie of het maken van een bezichtigingsafspraak kunt u contact opnemen met ons kantoor. Onze medewerkers zijn u graag van dienst.

Meer woninginformatie bekijken?

Log in of registreer gratis.

Overdracht

Huurprijs
€ 2.375 per maand
  • Inclusief: Servicekosten
Aangeboden sinds
27-10-2025
Status
Te huur
Beschikbaar
Per direct
Borg
€ 4.650
Interieur
Gestoffeerd
Onderhoudsstaat
Zeer goed

Oppervlakte en inhoud

Woonoppervlakte
65 m²
Inhoud
170 m³

Bouw

Type woning
Appartement
Soort woning
Bovenwoning, Appartement
Soort bouw
Bestaande bouw
Bouwjaar
2024
Ligging
  • Nabij het openbaar vervoer
  • Nabij een school

Indeling

Aantal kamers
3
Aantal slaapkamers
2
Aantal badkamers
1
Aantal woonlagen
1
Voorzieningen
  • Glasvezelaansluiting
  • Mechanische ventilatie
  • Buitenzonwering
  • Toilet

Buitenruimte

Balkon
Aanwezig
Dakterras
Niet aanwezig

Energie

Isolatie
Volledig geïsoleerd
Verwarming
Aardwarmte
Energielabel
A+

Parkeergelegenheid

Aanwezig
Ja
Soort parkeergelegenheid
Betaald
Meld een probleem met deze woning
Contact met de makelaar Bel