Te huur: Appartement Amstelkade 169 4 in Amsterdam
Bekijk kaart- 70 m²
- 3 kamers
- Gemeubileerd
Beschrijving
Dit luxe appartement met een slaapkamer en een studeerkamer is nu beschikbaar met een dakterras van 8 m2 op een geweldige locatie!
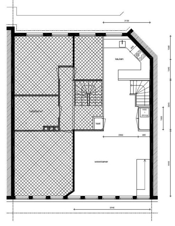
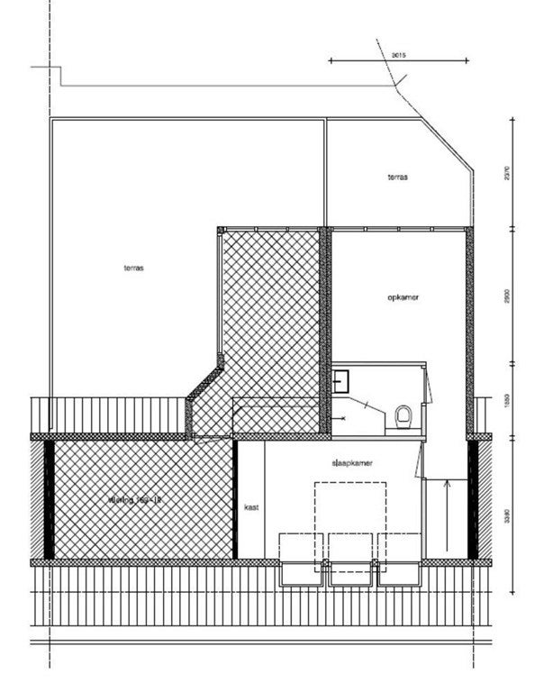
INDELING
Entree op de vierde etage. Woonkamer met luxe open keuken en uitzicht op het water. Via de interne trap is de vijfde etage te bereiken. Hier is een ruime slaapkamer met inbouwkasten. De badkamer heeft een inloopdouche.
De studeer/slaap kamer geeft toegang tot het dakterras van 8 m2.
OMGEVING
Het appartement is gelegen aan de Amstelkade met het Beatrixpark en de Pijp op loopafstand. De locatie is prachtig in een rustige buurt maar met alle restaurants en winkels van de Pijp en Oud Zuid om de hoek. Het openbaar vervoer is uitstekend met veel tram en busverbindingen en op korte afstand van Station Rai.
De uitvalswegen zijn ook zeer snel te bereiken.
STRAATNAAM
De Amstelkade is sinds 1922 een straat aan de zuidzijde van het Amstelkanaal in stadsdeel Zuid in Amsterdam. De straat en het kanaal zijn vernoemd naar de nabijgelegen rivier.
Deze vrijblijvende verhuurinformatie is door ons kantoor met de meeste zorg samengesteld aan de hand van de door de verhuurder aan ons verstrekte gegevens. Derhalve kunnen wij geen garanties verstrekken, noch kunnen wij op enigerlei wijze eventuele aansprakelijkheid voor deze gegevens aanvaarden. Alle maten zijn indicatief en The Rental Agency aanvaardt geen aansprakelijkheid voor afwijkingen.
Overdracht
- Huurprijs
-
€ 2.850 per maand
- Aangeboden sinds
- 30-01-2026
- Status
- Te huur
- Beschikbaar
- Per 02-03-2026
- Borg
- € 5.600
- Interieur
- Gemeubileerd
- Onderhoudsstaat
- Zeer goed
Oppervlakte en inhoud
- Woonoppervlakte
- 70 m²
- Inhoud
- 210 m³
Bouw
- Type woning
- Appartement
- Soort woning
- Bovenwoning, Appartement
- Soort bouw
- Bestaande bouw
- Bouwjaar
- 1936
- Ligging
-
- Aan het water
- In een woonwijk
- Nabij het openbaar vervoer
- Nabij een school
Indeling
- Aantal kamers
- 3
- Aantal slaapkamers
- 2
- Aantal badkamers
- 1
- Aantal woonlagen
- 1
- Verdieping
- 4
- Voorzieningen
- Dakterras
Buitenruimte
- Balkon
- Niet aanwezig
- Dakterras
- Aanwezig
Energie
- Isolatie
- Dubbele beglazing, Volledig geïsoleerd
- Verwarming
- Warmtepomp, Hete lucht verwarming
- Warm water
- Elektrische boiler
- Energielabel
- A
Parkeergelegenheid
- Aanwezig
- Ja
- Soort parkeergelegenheid
- Betaald