Woning verhuren

Contact met de makelaar

Deze woning is gevonden buiten ons eigen netwerk. Met de knop hieronder kom je direct bij de aanbieder terecht.

Nieuw

Te huur: Appartement Amsteldijk in Amsterdam

Bekijk kaart
1074 HR (Oude Pijp)
€ 3.200 per maand
  • 76 m²
  • 3 kamers
  • 1874

Beschrijving

Aangeboden door HHW Makelaars

Wonen aan de Amstel – gloednieuw, licht en met een adembenemend uitzicht.
Welkom aan de Amsteldijk 11-E, een gloednieuw en nog niet bewoond appartement van ca. 76 m², gelegen op de vierde verdieping met een prachtig uitzicht over de Amstel. Hier woont u op een unieke plek waar licht, rust en design samenkomen – direct aan het water, met De Pijp en de Rivierenbuurt om de hoek.

De verhuurder aan het woord:
“Vanaf het eerste moment wisten we dat dit een bijzondere plek is – het uitzicht, de rust en de sfeer van de Amstel. We hebben het appartement volledig gerenoveerd, met oog voor detail, kwaliteit en comfort. Alles is gloednieuw, van de vloer tot de keuken en badkamer. Het is nog niet bewoond – klaar voor de eerste bewoner die hier zijn thuis van maakt.”

De rondleiding:
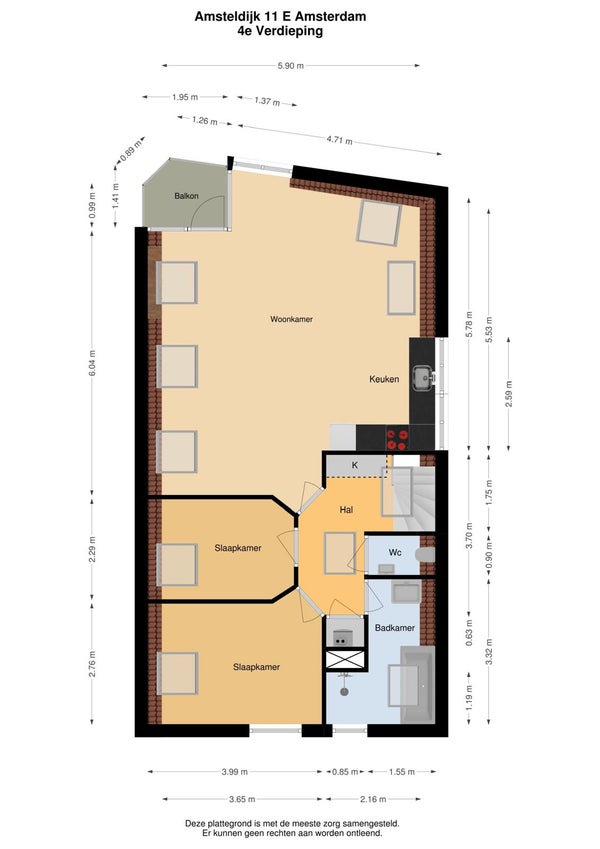
Entree & woonruimte
Via het verzorgde trappenhuis bereikt u de vierde verdieping.
De entree komt uit in een lichte hal met separaat toilet en toegang tot de woonkamer.
De woonkamer is ruim, elegant en voorzien van hoge ramen die uitkijken over de Amstel – een uitzicht dat elke dag anders is. De visgraatvloer, hoge plafonds en neutrale tinten geven het interieur een moderne en tijdloze uitstraling.
De open keuken is volledig nieuw en voorzien van hoogwaardige inbouwapparatuur, een natuurstenen werkblad en een strak design. Via de woonkamer bereikt u het balkon, waar u heerlijk kunt genieten van de avondzon en het uitzicht over het water.

Slapen & baden
Het appartement beschikt over twee goed ingedeelde slaapkamers aan de rustige achterzijde, beide met veel lichtinval. De badkamer is modern en luxe uitgevoerd met een inloopdouche, wastafelmeubel en designradiator.
Daarnaast is er een aparte wasruimte met aansluiting voor wasmachine en droger.

Locatie:
De Amsteldijk behoort tot de mooiste woonlocaties van Amsterdam – direct aan de rivier, met het centrum, De Pijp en de Rivierenbuurt op korte afstand. U wandelt in enkele minuten naar de Albert Cuypmarkt, Café de Ysbreeker, Carré en de gezellige Utrechtsestraat met haar vele winkels en restaurants. De bereikbaarheid is uitstekend: openbaar vervoer, de Noord/Zuidlijn en de A10 liggen allemaal binnen handbereik.

De kenmerken op een rij:

  • Woonoppervlakte ca. 76 m² (NEN 2580 rapport aanwezig);
  • Volledig gerenoveerd in 2025, nog niet bewoond;
  • Twee slaapkamers en één badkamer;
  • Balkon met uitzicht over de Amstel;
  • Hoogwaardige afwerking met o.a. visgraatvloer en design keuken;
  • Licht appartement met hoekligging
  • Energielabel A;
  • Gestoffeerde oplevering (niet gemeubileerd);

Huurvoorwaarden:

  • Huurovereenkomst voor onbepaalde tijd;
  • Huurprijs: €3.200,- per maand, exclusief gas, water, licht, tv, internet en gemeentelijke belastingen;
  • 2 maanden borg (niet onderhandelbaar);
  • Huisdieren in overleg;
  • Woningdelers zijn welkom;
  • Per direct beschikbaar.

Bezichtigen:
Wilt u de eerste bewoner zijn van een volledig gerenoveerd appartement aan de Amstel, met een stijlvolle afwerking en uitzicht over het water? Maak dan een afspraak voor een bezichtiging.
Bel of mail HHW Makelaars – wij leiden u graag persoonlijk rond.

Meer woninginformatie bekijken?

Log in of registreer gratis.

Overdracht

Huurprijs
€ 3.200 per maand
Aangeboden sinds
27-10-2025
Status
Te huur
Beschikbaar
In overleg
Onderhoudsstaat
Zeer goed

Oppervlakte en inhoud

Woonoppervlakte
76 m²
Inhoud
345 m³

Bouw

Type woning
Appartement
Soort woning
Bovenwoning, Appartement
Soort bouw
Bestaande bouw
Bouwjaar
1874
Ligging
  • Aan een rustige weg
  • Aan vaarwater
  • Aan het water
  • Vrij uitzicht

Indeling

Aantal kamers
3
Aantal slaapkamers
2
Aantal badkamers
1
Aantal woonlagen
1
Voorzieningen
  • Bad
  • Douche

Buitenruimte

Balkon
Aanwezig
Tuin
Niet aanwezig
Dakterras
Niet aanwezig

Energie

Verwarming
CV-ketel
Warm water
CV-ketel
Energielabel
A

Parkeergelegenheid

Aanwezig
Ja
Soort parkeergelegenheid
Openbaar

Garage

Aanwezig
Nee
Meld een probleem met deze woning
Contact met de makelaar Bel