Woning verhuren

Contact met de makelaar

Deze woning is gevonden buiten ons eigen netwerk. Met de knop hieronder kom je direct bij de aanbieder terecht.

Nieuw

Te huur: Appartement Singel 214 1 in Amsterdam

Bekijk kaart
1016 AB (Grachtengordel-West)
€ 3.250 per maand
  • 93 m²
  • 3 kamers
  • Gestoffeerd

Beschrijving

WONEN IN EEN LUXE GERENOVEERD 3-KAMER APPARTEMENT MET EIGEN ENTREE EN UITZICHT OVER HET SINGEL.
(Engelse samenvatting)

Dit prachtige rijksmonument aan het Singel combineert historische charme met modern wooncomfort. Het appartement is recent hoogwaardig gerenoveerd, met veel aandacht voor detail. Met energiezuinigheid is nadrukkelijk rekening gehouden; het appartement beschikt over energielabel A+. Karakteristieke elementen zoals de schouwen met spiegels, en-suite deuren met glas en de indrukwekkende hoge plafonds geven het appartement een unieke en sfeervolle uitstraling.

Het appartement heeft twee slaapkamers, een luxe keuken en luxe badkamer met een tijdloze uitstraling. Het appartement is afgewerkt met een houtkleurige vloer, voorzien van vloerverwarming, wat zorgt voor optimaal comfort. Het appartement wordt opgeleverd met een wasmachine/wasdroger en raambekleding in een neutrale kleurstelling.

Het pand, ter hoogte van de Driekoningenstraat, is omgeven door verschillende terrassen, restaurants, koffietentjes en winkeltjes. De Dam, negen straatjes en Westerkerk zijn net zoals het Centraal Station op loopafstand. Het appartement is goed bereikbaar met de fiets en het openbaar vervoer.

Via de eigen (prive) entree is het appartement te betreden.
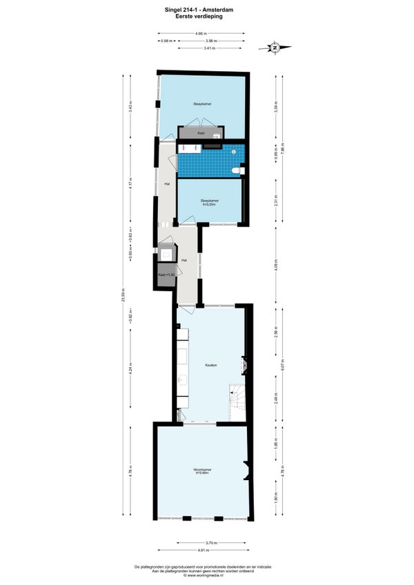
1e verdieping:
De woonkamer, met veel lichtinval en uitzicht over het Singel, heeft schouwen met spiegels welke zijn afgewerkt met prachtige sierlijsten. Middels de ‘en-suite’ deuren - voorzien van fraai bewerkt glas - kunnen de ruime eetkamer met luxe keuken en woonkamer eenvoudig van elkaar worden afgescheiden. De keuken is voorzien van onder andere een vaatwasmachine, koel-/vriescombinatie en Bora inductieplaat met ingebouwde afzuiging.
Het hoge raam in de eetkamer geeft uitzicht op een patio. Het appartement heeft geweldig hoge plafonds waarvan de woonkamer een hoogte heeft van ca 3,5 meter.
Hal met toegang tot kast voor wasmachine en -droger en slaapkamer (ca 8 m²). Deze slaapkamer heeft eveneens uitzicht op de patio. Luxe badkamer voorzien van dubbele wastafel met wastafelmeubel, inloopdouche, toilet en vloerverwarming. Masterbedroom (ca 15 m²) en kast ten behoeve van technische apparatuur.

Bijzonderheden:

  • Luxe gerenoveerd met behoud van oorspronkelijke details,
  • Eigen/prive entree,
  • Energielabel A+,
  • 2 slaapkamers,
  • Hoge plafonds, veel lichtinval,
  • Vloerverwarming,
  • Gestoffeerd,
  • Rijksmonument.

Diversen:

  • Huurprijs is EXCLUSIEF servicekosten, gas, water, elektra, gemeentelijke lasten, internet, telefoon, e.a.;
  • Servicekosten € 70,= per maand;
  • Waarborgsom 2 maanden huur;
  • Inkomensrichtlijnen (GEEN GARANTSTELLING):
  • alleenverdiener: bruto maandsalaris minimaal 3x de huurprijs,
  • tweeverdieners: tweede inkomen telt voor 100% mee, totale bruto maandsalaris minimaal 4x de huurprijs;
  • Niet roken en geen huisdieren;
  • Huurder is geen inschrijvingskosten en/of bemiddelingskosten aan ons kantoor verschuldigd;
  • Per direct.

Meetinstructies BBMI, type A. Op locatie gemeten. Het meetrapport is opgesteld conform de richtlijnen Meetinstructies 2019, oppervlakten en inhouden van gebouwen:
Gebruiksopp. BG 4,40 m² / 1e 88,8 m² (totaal 93,2 m²)
Gebruiksopp. overige inpandige ruimte 0,0 m²
Gebruiksopp. externe bergruimte 0,0 m²
Gebruiksopp. gebouw gebonden (prive) buitenruimten 0,0 m²

DISCLAIMER
Deze informatie hebben wij met de nodige zorgvuldigheid samengesteld. Wij aanvaarden echter geen enkele aansprakelijkheid voor enige onvolledigheid, onjuistheid of anderszins, dan wel voor de gevolgen daarvan. Huurder heeft zijn eigen onderzoeksplicht naar alle zaken die voor hem of haar van belang zijn. Met betrekking tot deze woning is de makelaar adviseur van de verhuurder. Wij adviseren u een deskundige (NVM-)makelaar in te schakelen die u begeleidt bij het aanhuurproces. Indien u specifieke vragen heeft over de woning, adviseren wij u deze tijdig kenbaar te maken aan uw aanhurend makelaar en hiernaar zelfstandig onderzoek te (laten) doen. Indien u geen deskundige vertegenwoordiger inschakelt, acht u zich volgens de wet deskundige genoeg om alle zaken die van belang zijn te kunnen overzien. Van toepassing zijn de NVM-voorwaarden.

NEN CLAUSULE
De gebruiksoppervlakte is berekend conform de door de branche vastgestelde NEN 2580-norm. De oppervlakte kan derhalve afwijken van vergelijkbare panden en/of oude referenties. Dit heeft vooral te maken met deze (nieuwe) rekenmethode. Huurder verklaart voldoende te zijn geïnformeerd over de hiervoor gemelde normering. Verkoper en diens makelaar doen hun uiterste best de juiste oppervlakte en inhoud te berekenen aan de hand van eigen metingen en dit zoveel mogelijk te ondersteunen door het plaatsen van plattegronden met maatvoering. Mocht de maatvoering onverhoopt niet (volledig) overeenkomstig de normering zijn vastgesteld, dan wordt dit door huurder aanvaard. Huurder zal voldoende in de gelegenheid worden gesteld om de maatvoering zelf te (laten) controleren. Verschillen in de opgegeven maat en grootte geven geen der partijen enig recht, zoals het recht op aanpassing van de koopsom. Verhuurder en diens makelaar aanvaarden geen enkele aansprakelijkheid in deze.

Overdracht

Huurprijs
€ 3.250 per maand
  • Exclusief: Servicekosten
Aangeboden sinds
26-01-2026
Status
Te huur
Beschikbaar
In overleg
Bijzonderheden
Monumentaal pand
Interieur
Gestoffeerd
Onderhoudsstaat
Zeer goed

Oppervlakte en inhoud

Woonoppervlakte
93 m²
Inhoud
450 m³

Bouw

Type woning
Appartement
Soort woning
Benedenwoning, Appartement
Soort bouw
Bestaande bouw
Bouwjaar
1724
Ligging
  • Aan een rustige weg
  • Aan het water
  • In het centrum

Indeling

Aantal kamers
3
Aantal slaapkamers
2
Aantal badkamers
1
Aantal woonlagen
1
Verdieping
1
Voorzieningen
  • Mechanische ventilatie
  • Douche
  • Toilet
  • Wasruimte

Buitenruimte

Balkon
Niet aanwezig
Tuin
Niet aanwezig
Dakterras
Niet aanwezig

Energie

Isolatie
HR glas
Verwarming
CV-ketel
Warm water
CV-ketel
Energielabel
A+

Parkeergelegenheid

Aanwezig
Ja
Soort parkeergelegenheid
Openbaar

Garage

Aanwezig
Nee
Meld een probleem met deze woning