Woning verhuren

Contact met de makelaar

Deze woning is gevonden buiten ons eigen netwerk. Met de knop hieronder kom je direct bij de aanbieder terecht.

Nieuw

Te huur: Appartement ms. van Riemsdijkweg in Amsterdam

Bekijk kaart
1033 RD (Noordelijke IJ-oevers-West)
€ 2.150 per maand
  • 58 m²
  • 2 kamers
  • Gestoffeerd

Beschrijving

Let op dat het appartement zonder meubels wordt geleverd.

De Ms. van Riemsdijkweg is een prominente woon- en culturele arterie gelegen in het hart van de NDSM-Werf in Amsterdam-Noord. Eens een druk industrieel scheepswerf, is het gebied geëvolueerd tot een van de meest dynamische en creatieve centra van de stad. De straat wordt gekarakteriseerd door zijn opvallende moderne architectuur, met name het Pontkade-complex, dat hedendaags "urban chic" design mengt met het ruwe, historische karakter van de omliggende dokken.

Bewoners genieten van een unieke levenstijl aan het water met uitgestrekte uitzichten over het IJ naar het stadscentrum. De buurt is zeer gewild vanwege de levendige sfeer, met een scala aan trendy restaurants, ambachtelijke bakkerijen, en culturele bezienswaardigheden zoals het STRAAT museum. Verbindingheid is een belangrijk hoogtepunt, aangezien de gratis veerbootterminal zich op slechts enkele stappen afstand bevindt, wat een directe verbinding van 12 minuten biedt naar Amsterdam Centraal Station. Supermarkten en sportscholen zijn om de hoek.

Details:
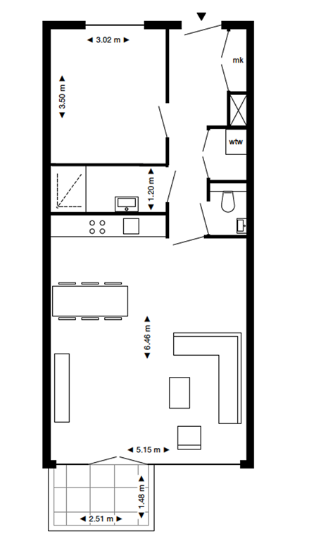
• Oppervlakte van het pand: 59 m2
• Aantal slaapkamers: 1
• Aantal badkamers: 1
• Type huis: Appartement
• Bouwjaar van het huis: 2020
• Interieurdecoratie: Ongemeubileerd - het appartement wordt zonder meubels geleverd!
• Vloerbedekking: Laminaat
• Kwaliteit van het openbaar vervoer: Goed

Ook in dit huurhuis:
• Parkeermogelijkheid: Vergunning
• Gescheiden douche
• Gescheiden toilet
• Lift
• 4e verdieping
• Gemeenschappelijke fietsenberging
• Balkon
• Energielabel A
• Vloerverwarming

Voorwaarden:
• Niet beschikbaar voor studenten en geen deling toegestaan
• Huisdieren niet toegestaan
• Huurovereenkomsten onderhevig aan toestemming van de eigenaar
• Maten niet conform NEN 2580

De huurprijs van dit huis is exclusief Gas/Electriciteit/Water, TV/Internet en lokale belastingen.

Overdracht

Huurprijs
€ 2.150 per maand
Aangeboden sinds
11-01-2026
Status
Te huur
Beschikbaar
Per 02-02-2026
Borg
€ 4.300
Interieur
Gestoffeerd
Onderhoudsstaat
Zeer goed

Oppervlakte en inhoud

Woonoppervlakte
58 m²
Perceeloppervlakte
58 m²
Inhoud
200 m³

Bouw

Type woning
Appartement
Soort woning
Bovenwoning, Appartement
Soort bouw
Bestaande bouw
Bouwjaar
2020

Indeling

Aantal kamers
2
Aantal slaapkamers
1
Aantal badkamers
1
Aantal woonlagen
1
Verdieping
4
Voorzieningen
  • Lift
  • Douche
  • Toilet

Buitenruimte

Balkon
Aanwezig
Dakterras
Niet aanwezig

Energie

Energielabel
A
Meld een probleem met deze woning