Woning verhuren

Contact met de makelaar

Deze woning is gevonden buiten ons eigen netwerk. Met de knop hieronder kom je direct bij de aanbieder terecht.

Nieuw

Te huur: Appartement Beemsterstraat 546 B 11 in Amsterdam

Bekijk kaart
1024 BV (Waterlandpleinbuurt)
€ 1.119 per maand
  • 61 m²
  • 2 kamers
  • 1970

Beschrijving

LET OP! Voor deze woning geldt een minimale leeftijd van 50 jaar of ouder.

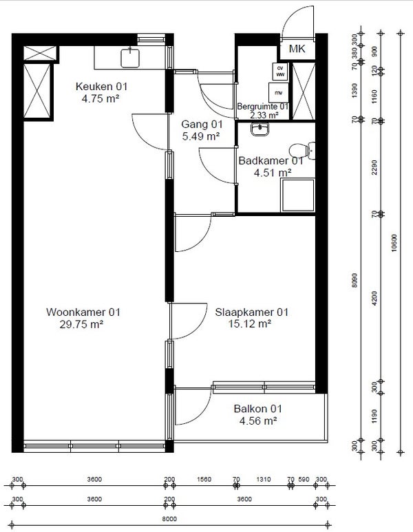
Een nieuw gerenoveerd, gestoffeerd 2-kamer appartement van 61m² gelegen op de 2e etage in Amsterdam, met balkon en inpandige berging.

Dit complex is uitermate gunstig gelegen! Amsterdam Noord; het groenste stadsdeel van Amsterdam. In de omgeving van de Beemsterstraat is er volop gelegenheid tot winkelen, onder meer in het nabij gelegen winkelcentrum Boven ‘t Y. Op het Buikslotermeerplein wordt er vrijwel dagelijks een markt gehouden. Op loopafstand vind je bovendien enkele bushaltes, zodat je in korte tijd in het centrum van Amsterdam bent.

Via de IJdoornlaan ben je met de auto via een directe aansluiting binnen no time op de rondweg en de autosnelwegen naar Zaandam Hilversum, Utrecht en Den Haag.

Per direct beschikbaar!

Afhankelijk van jouw situatie wordt bij het huren van een woning in dit complex standaard minimaal 1 maand waarborgsom gevraagd.

Heb je interesse in een woning in dit complex, neem dan contact met ons op. Wij adviseren online te reageren, stuur met je reactie jouw netto maandsalaris mee zodat wij kunnen kijken of je in aanmerking komt voor deze woning!

Alle door ons verstrekte informatie is met de grootste aandacht en zorg samengesteld. Toch kan het voorkomen dat de informatie enigszins afwijkt van wat je in of rond de woning/complex ziet of hebt gezien. Hieraan kunnen dan ook geen rechten worden ontleend.

Update in verband met coronavirus

Jouw en onze gezondheid is ons veel waard. Daarom bezichtigen wij veilig. We bezichtigen nog maar met één kandidaat tegelijkertijd en begroeten je momenteel met een glimlach in plaats van het geven van een hand.

Als je wordt uitgenodigd voor een bezichtiging, zal onze verhuurmakelaar eerst telefonisch of per mail een checklist met je doornemen. Als daaruit blijkt dat je een verhoogd risico hebt om het coronavirus bij je te dragen, dan zullen we je aanbieden een bezichtiging te doen in de vorm van een live-videoverbinding.

De optie om een bezichtiging via een videoverbinding te doen, is overigens voor iedereen beschikbaar die dat op prijs stelt.

We snappen dat dit een ongebruikelijke manier van werken is, maar we doen dit om de gezondheid van onze medewerkers, bestaande en nieuwe klanten en van de maatschappij te beschermen.

Bedankt voor je begrip en medewerking!

Overdracht

Huurprijs
€ 1.119 per maand
Aangeboden sinds
02-12-2025
Status
Te huur
Beschikbaar
Per 01-01-2026

Oppervlakte en inhoud

Woonoppervlakte
61 m²

Bouw

Type woning
Appartement
Soort woning
Galerijflat
Soort bouw
Bestaande bouw
Bouwjaar
1970

Indeling

Aantal kamers
2
Aantal slaapkamers
1
Aantal badkamers
1
Aantal woonlagen
1
Voorzieningen
  • Lift
  • Toilet

Buitenruimte

Balkon
Aanwezig
Tuin
Niet aanwezig
Dakterras
Niet aanwezig

Energie

Energielabel
A

Parkeergelegenheid

Aanwezig
Nee
Meld een probleem met deze woning