Woning verhuren

Contact met de makelaar

Deze woning is gevonden buiten ons eigen netwerk. Met de knop hieronder kom je direct bij de aanbieder terecht.

Nieuw

Te huur: Appartement J.H. Hisgenpad 952 in Amsterdam

Bekijk kaart
1025 WK (Elzenhagen)
€ 2.187 per maand
  • 73 m²
  • 3 kamers
  • Gestoffeerd

Beschrijving

Per direct beschikbaar: mooi driekamerappartement in Amsterdam-Noord

Het appartement is in 2024 opgeleverd en maakt deel uit van het project “De Urban Villa”s, Villa 5 genaamd Robin. Robin bestaat uit 41 appartementen van verschillende woontypes. Het wooncomplex is van alle gemakken voorzien. Vanuit de stijlvolle gemeenschappelijke entree bereik je de lift naar alle verdiepingen. Alle appartementen beschikken over elk een privé buitenruimte.

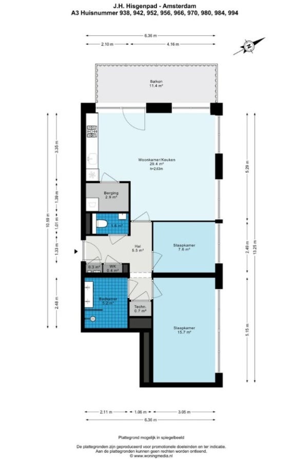
Het appartement heeft een oppervlakte van circa 73 m2. Vanuit de hal zijn alle vertrekken van de woning te bereiken. De woonkamer met open keuken heft een oppervlakte van circa 30 m2 en is voorzien van alle benodigde inbouwapparatuur zoals een kookplaat, combi oven/magnetron, afzuigkap, koelkast, vriezer en een vaatwasser. Vanuit de woonkamer is toegang naar het ruime balkon van circa 12 m2. De twee slaapkamers hebben een oppervlakte van bijna 16 m2 en 7.6 m2 De badkamer is uitgerust met een inloopdouche, wastafel met dubbele kranen en handdoekradiator.

Daarnaast beschikt het appartement over een inpandige berging met wasmachine aansluiting en een separaat toilet.
Het appartement wordt opgeleverd met PVC vloer en witte wandafwerking. De weergegeven foto's zijn niet van het appartement zelf, maar van een vergelijkbaar appartement in het complex. Kijk voor de precieze indeling op de plattegrond.

Urban Villa’s staat midden in een moderne, groene en rustige woonwijk in Amsterdam-Noord. De omgeving biedt het beste van twee werelden: rust en ruimte, maar ook de bruisende stad op korte afstand.
Op loopafstand vind je het winkelcentrum Boven ’t Y, diverse supermarkten, cafés en sportfaciliteiten. Voor natuurliefhebbers ligt het Noorderpark en het Vliegenbos op een paar minuten fietsen. De bereikbaarheid is uitstekend: de Noord/Zuidlijn ligt om de hoek, waarmee je binnen 10 minuten op Amsterdam Centraal bent. Ook de uitvalswegen (A10, A8 en A5) zijn snel bereikbaar.

Huurvoorwaarden:

  • Per direct beschikbaar
    • Waarborgsom van twee maanden huur
    • Inkomenseis 3.5x de huur
    • Huren met een financiële garantsteller niet toegestaan
    • Niet mogelijk voor studenten om te huren
  • Woningdelers niet toegestaan
    • Minimale huurperiode van 12 kalendermaanden

Overdracht

Huurprijs
€ 2.187 per maand
  • Exclusief: Servicekosten
Aangeboden sinds
03-11-2025
Status
Te huur
Beschikbaar
Per direct
Borg
€ 4.374
Interieur
Gestoffeerd
Onderhoudsstaat
Goed

Oppervlakte en inhoud

Woonoppervlakte
73 m²
Inhoud
192 m³

Bouw

Type woning
Appartement
Soort woning
Portiekflat, Appartement
Soort bouw
Bestaande bouw
Bouwjaar
2024
Ligging
  • In een woonwijk
  • Buiten bebouwde kom

Indeling

Aantal kamers
3
Aantal slaapkamers
2
Aantal badkamers
1
Aantal woonlagen
1
Voorzieningen
  • Bergruimte
  • Toilet
  • Wasruimte

Buitenruimte

Balkon
Aanwezig
Tuin
Niet aanwezig
Dakterras
Niet aanwezig

Energie

Energielabel
A++

Garage

Aanwezig
Ja
Omschrijving
Garage mogelijk
Meld een probleem met deze woning
Contact met de makelaar Bel