Woning verhuren

Contact met de makelaar

Deze woning is gevonden buiten ons eigen netwerk. Met de knop hieronder kom je direct bij de aanbieder terecht.

Te huur: Appartement Plantage Middenlaan 8 E in Amsterdam

Bekijk kaart
1018 DD (Weesperbuurt/Plantage)
€ 14.500 per maand
  • 533 m²
  • 11 kamers
  • Gemeubileerd

Beschrijving

Een van een soort! Fantastisch en stijlvol vormgegeven GEMEUBILEERD appartement op de begane grond van 533 m² met plafondhoogtes tot bijna 5 meter, gelegen in een statig gebouw in de trendy en culturele Plantagebuurt aan de rand van het stadscentrum.
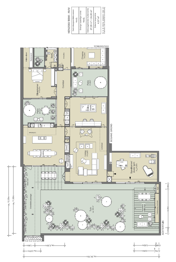
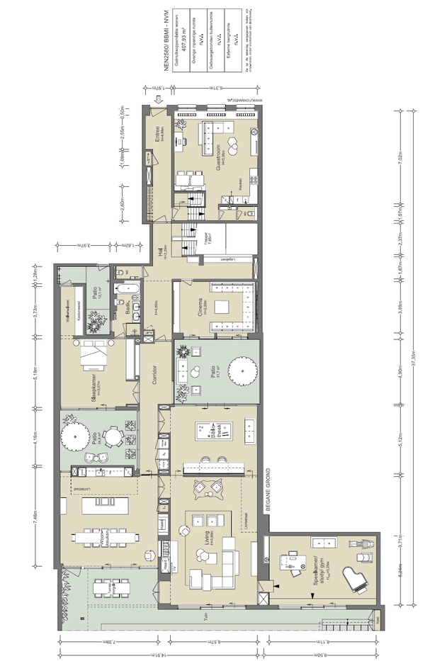
Dit uiterst bijzondere appartement heeft een ruime en speelse indeling, waarbij de verschillende plafondhoogtes de ruimtes hun eigen karakter geven. Het is momenteel ingericht als een heerlijk familiehuis met 6 slaapkamers, 3 badkamers en veel leefruimte. Het beschikt over een royale tuin op het zuidwesten van ca. 170 m² en twee zonnige patio-tuinen van ca. 55 m². Een mooi detail is de verscheidenheid aan grote ramen die zorgen voor veel natuurlijk licht.

INDELING:
Royale entree met bergruimte en garderobe. Vanuit de hal is er toegang tot alle vertrekken.
Aan de achterzijde is de ruime designkeuken voorzien van alle luxe gemakken en de woonkamer met open haard, beide grenzend aan de riante tuin (170 m²) welke op het zuidwesten ligt.
Aan de voorzijde bevindt zich de tweede lichte woonkamer met open keuken en een prachtig plafond met hoge raampartijen aan de Plantage Middenlaan. In de hal bevindt zich een gastentoilet met fontein.
Een tweede gastentoilet bevindt zich naast de woonkamer. Op de begane grond zijn er twee ruime slaapkamers, waarvan één voorzien is van een inloopkast en en-suite badkamer. De badkamer is voorzien van een ligbad, dubbele wastafel, inloopdouche en toilet.
Beide kamers geven toegang tot een eigen lichte patio. Eén van deze slaapkamers kan ook als bioscoop gebruikt worden.

De bibliotheek, die ook als een formelere eetkamer kan worden gebruikt, geeft toegang tot een van de patio's via openslaande deuren. In de gang naast de bibliotheek bevinden zich twee wijnklimaatkasten.

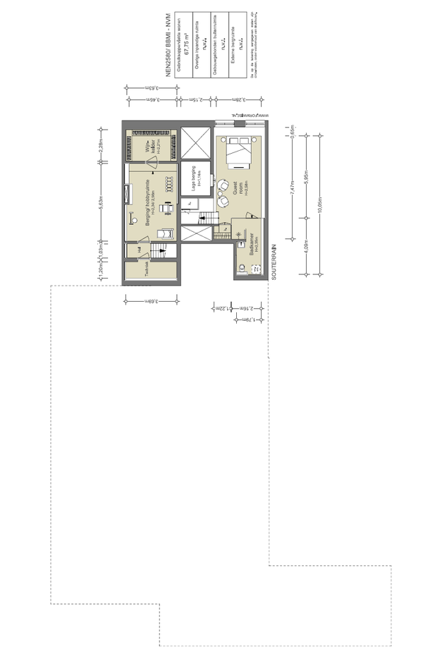
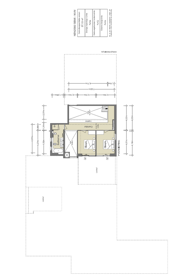
Via de unieke designtrap is de entresol bereikbaar. Hier bevinden zich twee kleinere slaapkamers en een aparte badkamer met inloopdouche, bad, dubbele wastafel en toilet.

Het souterrain is perfect voor een gastenverblijf en is voorzien van een en-suite badkamer met toilet, wastafel en inloopdouche.
Op deze verdieping bevindt zich ook een wijnkelder en ruime berging.

LOCATIE:
De woning ligt in de groene Plantagebuurt. De Plantage Middenlaan biedt niet alleen prachtige woonruimte, maar is ook ideaal gelegen in een levendige buurt met veel voorzieningen. Deze historische wijk, gelegen in het hart van Amsterdam, staat bekend om zijn groene straten, culturele erfgoed en gemakkelijke toegang tot allerlei voorzieningen. Op slechts een steenworp afstand vindt u een scala aan uitstekende horecagelegenheden. Voor liefhebbers van een heerlijke brunch of koffie zijn er gezellige cafés en bakkerijen in de buurt, waar u kunt genieten van verse lekkernijen. Voor degenen die van kunst en cultuur houden, zijn het nabijgelegen H'Art museum (voormalige Hermitage), Theater Carré, het scheepvaartmuseum en de Stopera allemaal bereikbaar. Artis Royal Zoo en de Hortus Botanicus zijn ook slechts een steenworp afstand. Er zijn verschillende supermarkten op loopafstand, zodat u gemakkelijk toegang heeft tot alle benodigdheden. Sportliefhebbers kunnen naar SportCity Waterlooplein of 3SIXTY5. U bent ook zeer dichtbij het stadscentrum en andere populaire buurten zoals de Nieuwmarkt en de Pijp.

In de omgeving zijn diverse goede en gezellige restaurants en cafés te vinden, evenals verschillende musea. Op loopafstand bevinden zich diverse supermarkten en in de nabijgelegen Utrechtsestraat kan men terecht voor een breed scala aan winkels. Ook de Nationale Opera & Ballet (de Stopera), Carré, het Rembrandtplein en de Nieuwmarkt liggen op korte afstand.

De bereikbaarheid is uitstekend; op loopafstand vindt u meerdere tram- en bushaltes. Metrostation Waterlooplein ligt op een paar minuten fietsen of 5 minuten lopen. Er is een tramhalte en een metrostation binnen loopafstand, waardoor andere delen van de stad gemakkelijk bereikbaar zijn. Amsterdam Centraal Station ligt op ongeveer 10 minuten fietsen en biedt verbindingen naar alle delen van het land en Schiphol binnen handbereik. Met de auto is de ring A10 snel bereikbaar via de IJtunnel en de Piet Heintunnel, waardoor u snel de stad kunt verlaten.

BIJZONDERHEDEN:

  • Beschikbaar per direct voor een periode van 2-3 jaar; (huurcontract Tussenhuur, model C)
  • Woonoppervlak 533 m²;
  • Tuin van ca. 170m² gelegen op het zuidwesten en twee patio's;
  • Zes goed bemeten slaapkamers, drie badkamers; in 1 slaapkamer ook een home cinema
  • Lichte woning met hoge plafonds;
  • Riante doorzonwoonkamer met open keuken;
  • Berging in souterrain; met wijnkelder;
  • Parkeren kan met een abonnementsvorm in de Markenhoven garage (indien plaats beschikbaar).

Huur is excl. g/w/e, tv/int en gemeentelijke heffingen.

DISCLAIMER
Deze informatie is door ons met de nodige zorgvuldigheid samengesteld. Onzerzijds wordt echter geen enkele aansprakelijkheid aanvaard voor enige onvolledigheid, onjuistheid of anderszins, dan wel de gevolgen daarvan. Alle opgegeven maten en oppervlakten zijn indicatief.

Meer woninginformatie bekijken?

Log in of registreer gratis.

Overdracht

Huurprijs
€ 14.500 per maand
Aangeboden sinds
06-08-2025
Status
Te huur
Beschikbaar
Per direct
Interieur
Gemeubileerd
Onderhoudsstaat
Goed

Oppervlakte en inhoud

Woonoppervlakte
533 m²
Inhoud
1.065 m³

Bouw

Type woning
Appartement
Soort woning
Dubbel benedenhuis, Appartement
Soort bouw
Bestaande bouw
Bouwjaar
1905
Ligging
In een woonwijk

Indeling

Aantal kamers
11
Aantal slaapkamers
6
Aantal badkamers
3
Aantal woonlagen
3
Voorzieningen
  • Bad
  • Mechanische ventilatie
  • Douche
  • Schuifdeuren
  • Bergruimte
  • Toilet

Buitenruimte

Balkon
Niet aanwezig
Tuin
Aanwezig (168 m², gelegen op het zuidwesten)
Tuinbeschrijving
achtertuin
Dakterras
Niet aanwezig

Energie

Isolatie
Dubbele beglazing, Vloerisolatie, Muurisolatie
Verwarming
CV-ketel, Gedeeltelijke vloerverwarming
Warm water
CV-ketel

Parkeergelegenheid

Aanwezig
Ja
Soort parkeergelegenheid
Betaald

Garage

Aanwezig
Nee
Meld een probleem met deze woning
Contact met de makelaar Bel