Woning verhuren

Contact met de makelaar

Deze woning is gevonden buiten ons eigen netwerk. Met de knop hieronder kom je direct bij de aanbieder terecht.

Nieuw

Te huur: Appartement Sumatrastraat 108 D in Amsterdam

Bekijk kaart
1094 NK (Indische Buurt-West)
€ 1.975 per maand
  • 98 m²
  • 3 kamers
  • 2010

Beschrijving

U HEEFT EEN OBJECTCODE NODIG ALS U ONS BELT. DE CODE IS: 8 6 6 0 4

Bezichtiging
Wij plannen alleen een bezichtiging wanneer u een Qii account heeft aangemaakt en uw gegevens via DigiD aan ons, ter inzage, heeft vrijgegeven (reageer via 'Neem contact op' voor de vervolgstappen). LET OP: Minimaal inkomen van € 94.800,-

Omschrijving
Een ruime 3 kamer appartement gelegen in Amsterdam oost in de wijk Indische buurt

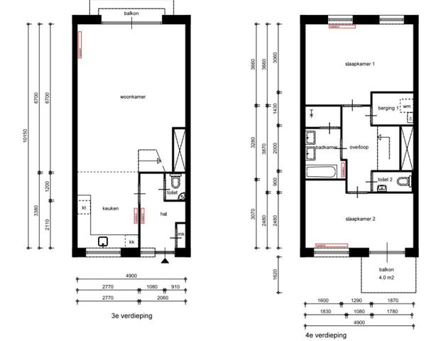
Indeling
Gezamenlijke entree met trappenhuis. Hal met toilet en doorloop naar de luxe keuken met inbouwapparatuur en ruime woonkamer met smal balkon.
2e etage: 2 ruime slaapkamers, separaat toilet, badkamer met douche en bad, berging met wasmachine aansluiting en balkon.

Bijzonderheden
-Beschikbaar ca 2e week januari
-Bouwjaar 2010
-Energie-index 1.17
-Lift aanwezig
-3e en 4e etage
-2 slaapkamers
-Balkon
-Luxe keuken met inbouwapparatuur
-Badkamer met douche en bad
-Inpandige berging
-Appartement wordt ongemeubileerd verhuurd
-Huurder dient zelf zorg te dragen voor het sauzen of behangen van de muren en wanden en het leggen van een vloerbedekking
-Huurprijs per maand € 1.975,- (excl. servicekosten)
-Servicekosten per maand ca. € 34,- (incl. BTW)
-Naamplaatje indien het een woning in een complex betreft (éénmalig) € 16,50
-Huurder dient zelf gas en/of elektra en water aan te vragen

Inkomenseis
-Kredietwaardig en voldoet aan inkomensnormen (48x de netto huur als bruto jaarinkomen);
-Bij één inkomen dient het bruto jaarsalaris minimaal ca. 48 keer de maandhuur van de woning te zijn (bij deze woning van € 1.975,- huur per maand, is het bruto jaarsalaris dus minimaal € 94.800,-). Bij twee inkomens dienen de twee bruto jaarsalarissen samen minimaal 48 keer de maandhuur van de woning te zijn.
-Waarborgsom van tweemaal de netto huur € 3.950,-

Huurperiode
-Een huurovereenkomst voor ten minste één jaar en wordt daarna automatisch verlengd voor onbepaalde tijd;
-Na de minimale huurperiode van één jaar bedraagt de opzegtermijn voor de huurder één maand;
-De huurperiode kan op elke dag van de maand ingaan. Yvastgoed bepaalt de ingangsdatum van de huur.

Toewijzing
-Maximaal twee volwassen personen op de huurovereenkomst;
-Toetsing inkomen op alle contractanten, zegt één contractant op zal er opnieuw een toetsing worden gedaan, is het inkomen onvoldoende dienen alle contractanten op te zeggen;
-Huurder dient stabiel, vast en toereikend inkomen uit werk te hebben;
-Woning wordt niet verhuurd aan studenten;
-Friends-contracten worden niet verstrekt;
-Garantstelling (door bijvoorbeeld ouders) worden niet geaccepteerd;
-De woning kan niet als pied-à-terre worden gehuurd;
-Huurder dient zich op het adres in te schrijven bij de gemeente;
-Huurders van Ymere die een sociale huurwoning achterlaten krijgen voorrang, met uitzondering van een tijdelijk contract;
-Een creditcheck maakt onderdeel uit van onze toewijzingsprocedure, bij aanmelding verleent u hiervoor automatisch toestemming;

Parkeren
Op straat is het betaald parkeren, voor de kosten kunt u kijken op de website van de gemeente.

Overnames € 800,-
-Algemeen; laminaatvloer gehele appartement
-Slaapkamer 1; pax kast, gordijnenrails, gordijnen
-Slaapkamer 2; inbouwkast, gordijnenrails, gordijnen, vitrage, plafondlamp
-Washok; planken en plankendragers
-Woonkamer/keuken; gordijnenrails, billy, houten kist (onder trap), plankjes en plankendragers keuken
-Hal beneden; kapstok

*Deze aanmelding is met zorg samengesteld, de informatie die wordt verstrekt is echter indicatief er kunnen geen rechten aan worden ontleend.

Meer woninginformatie bekijken?

Log in of registreer gratis.

Overdracht

Huurprijs
€ 1.975 per maand
  • Exclusief: Servicekosten
Aangeboden sinds
11-11-2025
Status
Te huur
Beschikbaar
In overleg
Huurovereenkomst
Onbepaalde tijd
Borg
€ 3.950
Onderhoudsstaat
Goed

Oppervlakte en inhoud

Woonoppervlakte
98 m²
Inhoud
246 m³

Bouw

Type woning
Appartement
Soort woning
Maisonnette
Soort bouw
Bestaande bouw
Bouwjaar
2010

Indeling

Aantal kamers
3
Aantal slaapkamers
2
Aantal woonlagen
1

Buitenruimte

Balkon
Niet aanwezig
Dakterras
Niet aanwezig

Energie

Energielabel
A

Parkeergelegenheid

Aanwezig
Nee

Garage

Aanwezig
Nee
Meld een probleem met deze woning
Contact met de makelaar Bel