Woning verhuren

Contact met de makelaar

Deze woning is gevonden buiten ons eigen netwerk. Met de knop hieronder kom je direct bij de aanbieder terecht.

Te huur: Appartement Oostenburgermiddenstraat 116 in Amsterdam

Bekijk kaart
1018 LC (Oostelijke Eilanden/Kadijken)
€ 2.350 per maand
  • 80 m²
  • 3 kamers
  • Gestoffeerd

Beschrijving

BESCHIKBAAR PER 1 DECEMBER | 2 SLAAPKAMERS | BALKON | GESTOFFEERD

Aanvragen bezichtigingen alleen per mail (telefonisch niet mogelijk). Garantstelling door derden niet mogelijk. Foto’s dienen ter indicatie; het betreft een vergelijkbaar appartement in hetzelfde gebouw.

Details:

  • Servicekosten: €75,- p.m.
  • Verwarming via NEXT NRG: huur warmtepomp €98,65 p.m.
  • Borgsom: gelijk aan 2 maanden huur
  • Contract: onbepaalde tijd, minimaal 12 maanden
  • Oplevering: gestoffeerd
  • CPI correctie + max 3% per jaar
  • Parkeerplaats optioneel €339,4 incl. BTW

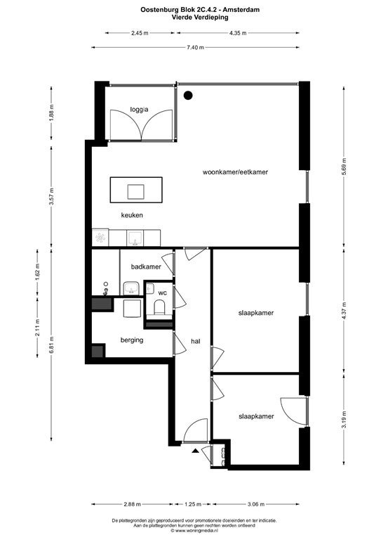
INDELING:
De vierde verdieping is te bereiken via de gemeenschappelijke lift en trappenhuis. Entree, hal die toegang geeft tot de wc, badkamer, twee slaapkamers en de woonkamer. De woonkamer met open keuken en balkon op het westen geniet van een prachtige lichtinval door de grote glazen schuifpui. De keuken met kookeiland is voorzien van alle hedendaagse gemakken. Verder is het appartement voorzien van een inpandige berging. In de benedenbouw is er een ruime fietsenstalling. Parkeerplaatsen in beveiligde parkeergarage op aanvraag.

DE ZWAAN
De Zwaan schittert straks in de dynamiek van Oostenburg. Levendig en stoer, in een typisch Amsterdamse stadswijk. Aan de voorzijde vind je de leukste winkeltjes, de lekkerste restaurants en de beste barretjes. Aan de achterzijde kom je helemaal tot rust in de weelderige groene binnentuin. Dankzij de unieke ligging en het open karakter geniet je in elk appartement optimaal van een natuurlijke lichtinval.

ALLE KEUZE DOOR DIVERSITEIT
De Zwaan bestaat uit drie verschillende gebouwen met in totaal 54 huurappartementen. Elk gebouw heeft een eigen entree en uitstraling. Zo biedt gebouw A met een lichtgrijze gevel van microbeton ruimte aan 25 huurappartementen met grote balkons. Daarnaast komt gebouw B met 20 appartementen. Hier trekken de karakteristieke zwarte details en het opvallende zaagtanddak alle aandacht. Gebouw C wordt met zijn stoere gevel van roestend cortenstaal een van de eyecatchers van Oostenburg. In dit kleinschalige complex komen 9 appartementen, waarvan het penthouse een royaal dakterras heeft.

COMPLEET AFGEWERKT EN INSTAPKLAAR WOONCOMFORT
Naar welk duurzaam gebouw je voorkeur ook uitgaat, alle instapklare appartementen in De Zwaan zijn ruim van opzet en hoogwaardig afgewerkt. Met een grote buitenruimte, een complete keuken, een weelderige binnentuin, een toegankelijke fietsenstalling, luxe afgewerkt sanitair, een prachtige PVC-vloer, HR+++-glas en de wanden zijn afgewerkt met vliesbehang en gesaust. Daarbij is De Zwaan energiezuinig door het gebruik van zonnepanelen, een modern warmteterugwinsysteem en het gebruik van natuurlijke bronnen voor warmte, koeling en energie. Dit alles in een creatieve, dynamische urban hotspot. Alleen je gordijnen ophangen en genieten maar!

OOSTENBURG - STOERE NIEUWBOUWWIJK AAN HET WATER
Aan het water, in het centrum van Amsterdam en met alle voorzieningen dichtbij. Dat is wonen op Oostenburg. Een nieuwe, centraal gelegen stadswijk met industriële signatuur. Duurzaam én autoluw.

Naast eigentijdse koopwoningen biedt Oostenburg ook een grote variëteit aan exclusieve huurappartementen. Ideaal voor jonge professionals die bijvoorbeeld willen samenwonen, willen beschikken over een comfortabel thuiskantoor, denken aan gezinsuitbreiding of met een paar vrienden bij elkaar willen wonen. De stijlvolle appartementen zijn ook buitengewoon geschikt voor senioren die kleiner willen wonen, maar wel met alle luxe en comfort om zich heen.

Alle huurappartementen in deze nieuwe buurt – in gebouwen van vooraanstaande Nederlandse architectenbureaus – zijn tot in de puntjes afgewerkt, voorzien van slimme installaties voor extra comfort en minder energieverbruik, en hebben een EPC van 0,4. Ook is elk appartement uitgerust met een riante buitenruimte en toegang tot de weelderige binnentuin.

Kortom: zorgeloos wonen in een levendige stadse sfeer.

TOEGANKELIJKHEID
Oostenburg wordt omgetoverd tot een prachtige, aangename en duurzame stadswijk. Een superieure plek aan het water waar je op topniveau woont, werkt en leeft. En dat in hartje Amsterdam. Een stad die in de top vijf staat van populairste Europese steden om te wonen en te verblijven. Zowel bij Nederlandse als buitenlandse woningzoekenden. In een eersteklas huurappartement op Oostenburg profiteer je van alles wat Amsterdam te bieden heeft.

Het is een unieke woonomgeving waar het je aan niets ontbreekt. Van verrassende voorzieningen en volop bedrijvigheid tot florerende horeca en veel recreatieve evenementen door het jaar heen. En door de centrale ligging ben je met het openbaar vervoer snel op het centraal station. Met de fiets of te voet sta je zo in het Museumkwartier, op de Dam, de Albert Cuyp of in De Pijp. Daarbij is de Bereikbaarheid van Oostenburg ook vanuit internationaal perspectief zeer aantrekkelijk. Als huurder op Oostenburg heb je Schiphol om de hoek en internationale treinverbindingen naar Londen en Parijs binnen handbereik. Als frequente reiziger heb je in Oostenburg je ideale woonlocatie gevonden!

Overdracht

Huurprijs
€ 2.350 per maand
  • Inclusief: Servicekosten
Aangeboden sinds
24-11-2025
Status
Te huur
Beschikbaar
Per 01-12-2025
Borg
€ 4.700
Interieur
Gestoffeerd
Onderhoudsstaat
Zeer goed

Oppervlakte en inhoud

Woonoppervlakte
80 m²
Inhoud
220 m³

Bouw

Type woning
Appartement
Soort woning
Bovenwoning, Appartement
Soort bouw
Bestaande bouw
Bouwjaar
2021
Ligging
Aan een rustige weg

Indeling

Aantal kamers
3
Aantal slaapkamers
2
Aantal woonlagen
1
Voorzieningen
  • Toilet
  • Wasruimte

Buitenruimte

Balkon
Aanwezig
Dakterras
Niet aanwezig

Energie

Energielabel
A

Parkeergelegenheid

Aanwezig
Ja
Soort parkeergelegenheid
Betaald
Meld een probleem met deze woning
Contact met de makelaar