Woning verhuren

Contact met de makelaar

Deze woning is gevonden buiten ons eigen netwerk. Met de knop hieronder kom je direct bij de aanbieder terecht.

Nieuw

Te huur: Appartement Purperhoedenveem 14 in Amsterdam

Bekijk kaart
1019 HM (Oostelijk Havengebied)
€ 1.995 per maand
  • 101 m²
  • 3 kamers
  • Gestoffeerd

Beschrijving

Welkom in dit stijlvolle appartement aan Purperhoedenveem, gelegen in het moderne en populaire Oosterdokseiland.
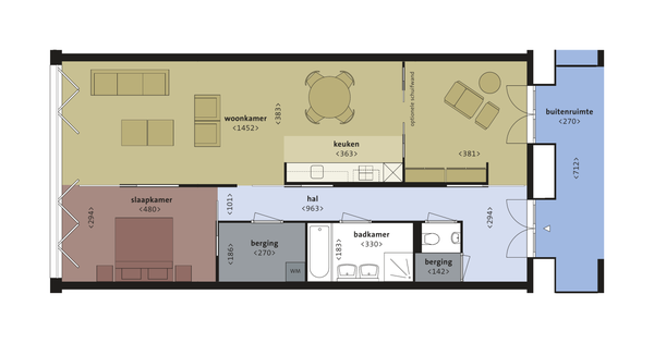
Wat direct bij binnenkomst opvalt in dit appartement is de praktisch en ruime indeling. In de hal vindt u een separaat toilet, twee bergingen en een badkamer met ligbad, dubbele wastafel en douche. De ruime woonkamer met veel lichtinval heeft een keuken met diverse inbouwapparatuur. Aan de galerijzijde bevindt zich in sommige appartementen een extra ruimte die afgesloten kan worden middels een schuifdeur. Perfect te gebruiken als extra slaapkamer, eetkamer of werk/studeerkamer. De slaapkamer heeft een schuifdeur naar de gang en woonkamer en de ramen kunnen volledig open. Uw auto kunt u kwijt in de parkeergarage onder het complex.

Purperhoedenveem ligt in het Oosterdokseiland, een bruisend gebied met bibliotheek, restaurants, winkels en culturele hotspots zoals het Scheepvaartmuseum. Binnen enkele minuten bent u bij Amsterdam Centraal, met uitstekende verbindingen per trein, metro en tram. Ook de A10 is goed bereikbaar.

Afname parkeerplaats is verplicht. De huurprijs bedraagt 207,50,- euro per maand.

Interesse? Plan dan snel een bezichtiging in.

Kan ik deze woning huren?
€ 6.982,- Bruto per maand (één inkomen)
€ 7.980,- Bruto per maand (tweeverdieners)

Wonen in Boston
Het appartementencomplex Boston ligt op een prachtige plek aan het IJ in het Oostelijk Havengebied. De 90 appartementen zijn ieder op hun eigen wijze uniek. Er zijn negen verschillende woningtypes en twee penthouses. Wat de appartementen gemeen hebben is de kwaliteit en de prachtige lichtinval. Ieder appartement heeft een luxe keuken met inbouwapparatuur. Een ruime, comfortabele badkamer met een ligbad, aparte douche, toilet en dubbele wastafel. Door het gebruik van veel glas geeft het complex een open en transparant gevoel en houdt u contact met de omgeving. De meeste appartementen hebben airconditioning. Onder het gebouw, in de kelder, vindt u een afsluitbare parkeergarage voor de bewoners. Bij het huren van een appartement is het afnemen van een parkeerplaats verplicht. Het complex ligt dichtbij het Centraal Station en de verbinding naar de ring A10 is ideaal. In de directe omgeving vindt u restaurants, cafés en theaters. Wilt u op een centrale plek wonen, dichtbij het Centraal Station, het bruisende centrum en stadsdeel Oost maar ook vlakbij de ringweg A10, dan is complex Boston een perfecte plek voor u!

BEZICHTIGINGEN / INFORMATIE:

  • Bezichtigingen kunnen ALLEEN op werkdagen tussen 8.30 en 17.00 uur, dus niet 's avonds of in het weekend.
  • Telefonisch een bezichtiging plannen of informatie aanvragen is NIET mogelijk. Verhuurder heeft ervoor gekozen de gegadigden zelf rond te leiden en/of van informatie te voorzien. Een bezichtiging of informatie kan enkel worden aangevraagd via ****** of via de website van de verhurende makelaar.

Meer woninginformatie bekijken?

Log in of registreer gratis.

Overdracht

Huurprijs
€ 1.995 per maand
  • Exclusief: Servicekosten
Aangeboden sinds
04-11-2025
Status
Te huur
Beschikbaar
Per 24-11-2025
Interieur
Gestoffeerd
Onderhoudsstaat
Goed

Oppervlakte en inhoud

Woonoppervlakte
101 m²
Inhoud
278 m³

Bouw

Type woning
Appartement
Soort woning
Galerijflat, Appartement
Soort bouw
Bestaande bouw
Bouwjaar
2006
Ligging
  • Aan een drukke weg
  • In het centrum
  • In een woonwijk
  • Vrij uitzicht

Indeling

Aantal kamers
3
Aantal slaapkamers
2
Aantal badkamers
1
Aantal woonlagen
1
Voorzieningen
  • Airconditioning
  • Bad
  • Kabel TV
  • Lift
  • Frans balkon
  • Mechanische ventilatie
  • Sauna
  • Douche
  • Bergruimte
  • Toilet

Buitenruimte

Balkon
Niet aanwezig
Tuin
Niet aanwezig
Dakterras
Niet aanwezig

Energie

Isolatie
Volledig geïsoleerd
Verwarming
Stadsverwarming, Volledige vloerverwarming
Warm water
Centrale verwarming
Energielabel
C

Parkeergelegenheid

Aanwezig
Ja
Soort parkeergelegenheid
Betaald
Omschrijving
Verplichte afname circa € 207,50 per maand

Garage

Aanwezig
Ja
Omschrijving
Parkeerkelder, parkeerplaats
Meld een probleem met deze woning
Contact met de makelaar Bel