Woning verhuren

Contact met de makelaar

Deze woning is gevonden buiten ons eigen netwerk. Met de knop hieronder kom je direct bij de aanbieder terecht.

Nieuw

Te huur: Appartement Julianalaan in Bilthoven

Bekijk kaart
3722 GP (Bilthoven Centrum)
€ 2.200 per maand
  • 126 m²
  • 6 kamers
  • Gestoffeerd

Beschrijving

Te huur een ruime 6-kamer bovenwoning in het gezellige centrum van Bilthoven met twee royale balkons en parkeerplaats.

Op loopafstand van het NS-station, een diversiteit aan winkels en restaurants.

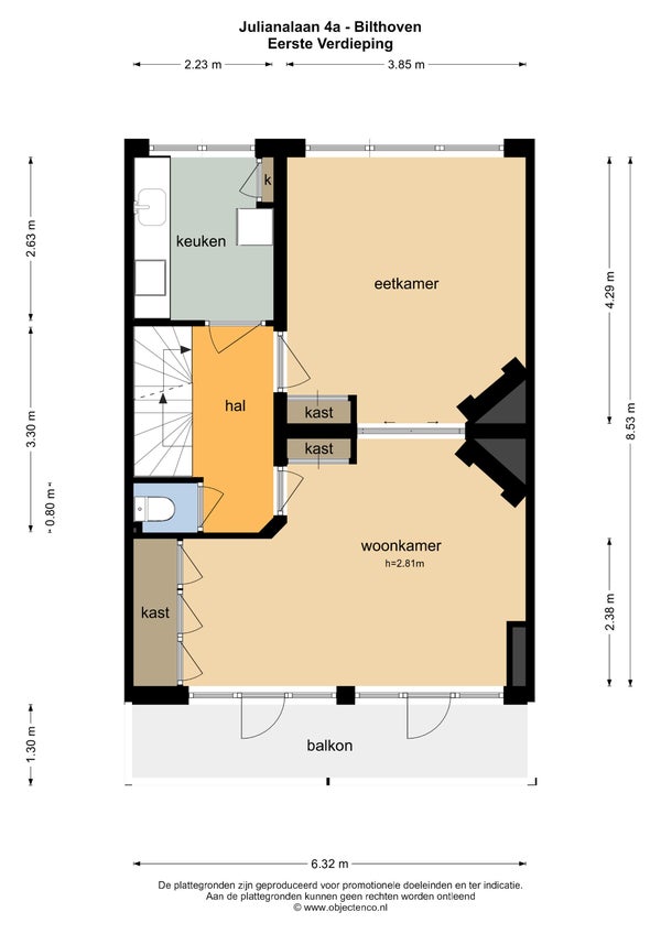
Indeling: Entree, trap naar de 1e woonlaag bestaande uit een hal met toilet, een ruime woonkamer en suite met inbouwkasten, een royaal balkon aan de voorzijde van het gebouw alsmede een nieuwe keukeninrichting met diverse inbouwapparatuur;

Op de 2e woonlaag bevinden zich een overloop met toilet, een 3-tal slaapkamers waarvan 1 met balkon alsmede een moderne badkamer voorzien van inloopdouche en wastafel.

Op de 3e woonlaag bevindt zich de 4e slaapkamer en een ruime voorzolder met de cv-opstelling.

Deze aantrekkelijke woning is onlangs gerenoveerd en onder meer voorzien van HR isolatieglas, een nieuwe keuken,  nieuwe vloerbedekking en laminaat alsmede een nieuwe cv-ketel. De woning kan dus direct betrokken worden.

Bijzonderheden:

  • 6 kamers
  • 2 balkons
  • energielabel C
  • alle kamers zijn voorzien van laminaatvloeren
  • video-installatie (beeld en geluid) met deuropener
  • parkeerplaats op eigen afgesloten terrein
  • huurder dient zijn inkomen c.q. vermogenspositie te kunnen aantonen
  • huurperiode minimaal 1 jaar
  • borg 2 maanden huur
  • geen studenten of woningdelers

Meer woninginformatie bekijken?

Log in of registreer gratis.

Overdracht

Huurprijs
€ 2.200 per maand
Aangeboden sinds
29-10-2025
Status
Te huur
Beschikbaar
In overleg
Interieur
Gestoffeerd
Onderhoudsstaat
Goed

Oppervlakte en inhoud

Woonoppervlakte
126 m²
Perceeloppervlakte
805 m²
Inhoud
473 m³

Bouw

Type woning
Appartement
Soort woning
Bovenwoning, Appartement
Soort bouw
Bestaande bouw
Bouwjaar
1934
Ligging
In het centrum

Indeling

Aantal kamers
6
Aantal slaapkamers
4
Aantal woonlagen
3
Voorzieningen
  • Bergruimte
  • Toilet
  • Wasruimte

Buitenruimte

Balkon
Aanwezig
Tuin
Niet aanwezig
Dakterras
Niet aanwezig

Energie

Isolatie
HR glas
Verwarming
CV-ketel
Warm water
CV-ketel
Cv-ketel
Nefit (Gas, uit 2023, Eigendom)
Energielabel
C

Parkeergelegenheid

Aanwezig
Ja
Soort parkeergelegenheid
Op eigen terrein

Garage

Aanwezig
Ja
Omschrijving
Parkeerplaats
Meld een probleem met deze woning
Contact met de makelaar Bel