Woning verhuren

Contact met de makelaar

Deze woning is gevonden buiten ons eigen netwerk. Met de knop hieronder kom je direct bij de aanbieder terecht.

Nieuw

Te huur: Appartement Koningsplein 3 A in Maastricht

Bekijk kaart
6224 EB (Wyckerpoort)
€ 670 per maand
  • 24 m²
  • 3 kamers
  • 1930

Beschrijving

TE HUUR - 2 STUDENTENKAMERS

2 Kamers te huur in ruime benedenverdieping met tuin op het zuiden vlakbij het station en de A2. Perfecte ligging: in luttele minuten ben je op de autoweg, bij het station en in het populaire stadsdeel Wyck. Maar bovenal ligt de woning aan het prachtige nieuw aangelegde Vrijheidspark en aan de Groene Loper.

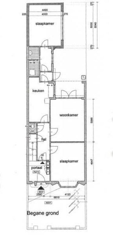
Indeling woning:
Begane grond
Ruime hal met originele vloer.
Kamer aan de voorzijde (4.99x4.07), ruime woonkamer (4.07x5.43), keuken (3.04x3.91), badkamer (3.27x1.03)
Kamer aan de achterzijde (3.94x5.12)

Kamers zijn beide per direct beschikbaar.
Mooie, royale kamer aan de voorzijde en achterzijde van het huis

Bijzonderheden: Alleen vrouwelijke studenten toegestaan.

Kamer 1 - voorzijde
Huur: € 670,00
Servicekosten: € 100,00 inclusief voorschot gas
Exclusief water en elektra

Totale huur: € 770,00
Waarborgsom: € 1300,00

Kamer 2 - achterzijde
Huur: € 670,00
Servicekosten: € 100,00 inclusief voorschot gas
Exclusief water en elektra

Totale huur: € 770,00
Waarborgsom: € 1300,00

Disclaimer - Huren bij 'mijn huis en ik'

  • We nodigen, afhankelijk van de woonruimte, de eerste 10, 15 of 20 potentiële kandidaten uit voor een bezichtiging op volgorde van reactie.
  • Vervolgens houden we nog maximaal 20 kandidaten in portefeuille, eveneens op volgorde van reactie.
  • De overige kandidaten ontvangen een bericht dat we het maximale aantal reacties hebben bereikt.
  • Kandidaten kunnen zich kosteloos inschrijven op onze website voor een zoekopdracht, waarbij je een mail krijgt met ons nieuwste aanbod.
  • Als inkomenseis dien je minimaal drie (3) keer de maandhuur bruto te verdienen of een borgsteller te hebben die hieraan voldoet.
  • De informatie op onze website is met de nodige zorgvuldigheid samengesteld.
  • We aanvaarden geen enkele aansprakelijkheid voor enige onvolledigheid of onjuistheid, dan wel de gevolgen daarvan.
  • Alle opgegeven maten en oppervlakten zijn indicatief en hieraan kunnen geen rechten worden ontleend.
  • Lees de brochure zorgvuldig door, met name ook de uitsplitsing van de huur en de totale huur per maand.
  • Alle potentiële huurders worden uitgebreide gescreend uit op onder andere kredietwaardigheid en inkomstentoets.

Overdracht

Huurprijs
€ 670 per maand
Prijs per m²
€ 28
Aangeboden sinds
09-02-2026
Status
Te huur
Beschikbaar
Per direct
Borg
€ 1.350
Onderhoudsstaat
Goed

Oppervlakte en inhoud

Woonoppervlakte
24 m²
Inhoud
270 m³

Bouw

Type woning
Appartement
Soort woning
Benedenwoning, Appartement
Soort bouw
Bestaande bouw
Bouwjaar
1930
Ligging
Aan een park

Indeling

Aantal kamers
3
Aantal slaapkamers
2
Aantal badkamers
1
Aantal woonlagen
1
Verdieping
1

Buitenruimte

Balkon
Niet aanwezig
Tuin
Aanwezig
Achterom
Niet aanwezig
Dakterras
Niet aanwezig

Energie

Energielabel
F

Garage

Aanwezig
Nee
Meld een probleem met deze woning