Woning verhuren

Contact met de makelaar

Deze woning is gevonden buiten ons eigen netwerk. Met de knop hieronder kom je direct bij de aanbieder terecht.

Nieuw

Te huur: Appartement Londenstraat in Utrecht

Bekijk kaart
3541 CB (Leidsche Rijn-Centrum)
€ 2.150 per maand
  • 67 m²
  • 2 kamers
  • 2018

Beschrijving

Per 1 februari te huur een mooi 2-kamer appartement midden in Leidsche Rijn Centrum!

Modern 2-kamer appartement van 67 m² (energielabel A++) met ruim balkon en tevens een gemeenschappelijke daktuin welke een leuke ontmoetingsplek is voor alle bewoners.

Het hoogwaardige afwerkingsniveau is kenmerkend voor dit appartement en geeft een chique en moderne uitstraling. De wanden zijn gestuukt en in januari 2026 opnieuw geschilderd. Daarnaast ligt er een fraaie laminaatvloer. Een perfecte basis om van dit appartement jouw thuis te maken.

De omgeving
Leidsche Rijn Centrum is gelegen in het nieuwe stadshart tussen Utrecht Centrum en Leidsche Rijn. Je woont middenin tussen winkels, horeca, culturele voorzieningen en zakelijke dienstverleners. Één van de grootste trekkers is de Jumbo mega foodmarkt, waar mensen kunnen ruiken, voelen, proeven en kopen. Beleving staat centraal. Het bus- en treinstation is op loopafstand. De bevoorrading van alle winkels vindt ondergronds plaats. Met de trein sta je binnen 5 minuten op Utrecht Centraal. Liever sportief op de fiets? Binnen 15 fietsminuten sta je in het centrum van Utrecht. Door de uitstekende ligging zijn de uitvalswegen A2 en A12 binnen handbereik. Wonen in Leidsche Rijn Centrum is van alle gemakken voorzien!

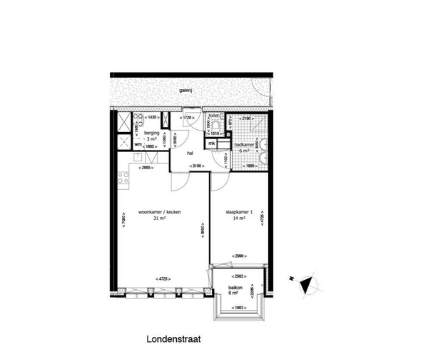
Omschrijving van het appartement
Bij binnenkomst van het appartement tref je aan de rechterzijde de inpandige berging, de moderne badkamer is voorzien van inloopdouche, wasmachineaansluiting en de dubbele wastafel. Tevens tref je in de hal een separaat toilet.

De woonkamer is licht en heeft een deur naar het balkon, het balkon is gelegen op het zuid-west en heef dus heerlijk de middag- en avondzon. Daarnaast heeft de woonkamer een open keuken voorzien van alle gangbare inbouwapparatuur.

Ook kom je vanuit de hal in de slaapkamer die ook weer toegang geeft tot het balkon.

Het appartement is volledig geïsoleerd en voorzien van vloerverwarming. Deze wordt verwarmd, gekoeld en voorzien van warm water middels een centraal koude/warmte systeem. Aanvullend met stadsverwarming wordt dit ingezet voor de hogere temperaturen in koudere periodes.

Bijzonderheden:

  • Bouwjaar 2018
  • Gelegen in het stadshart van Leidsche Rijn
  • Net afwerkingsniveau
  • Het gehele appartement is volledig geïsoleerd en voorzien van vloerverwarming
  • Verwarming, koeling en warm water middels koude-/warmte systeem
  • Huurprijs van € 2.150,- is exclusief stadsverwarming, water, elektra, internet/tv en gemeentelijke
    gebruiksbelastingen
  • Servicekosten voor rekening verhuurder
  • Waarborgsom staat gelijk aan twee maanden huur
  • Beschikbaar per direct
  • Geen huisdieren toegestaan
  • Roken niet toegestaan
  • Niet geschikt voor studenten of woningdelers
  • De beelden van de woon- en slaapkamer zijn sfeerbeelden de woning is momenteel leeg

Overdracht

Huurprijs
€ 2.150 per maand
Aangeboden sinds
23-01-2026
Status
Te huur
Beschikbaar
Per 01-02-2026
Onderhoudsstaat
Goed

Oppervlakte en inhoud

Woonoppervlakte
67 m²
Inhoud
174 m³

Bouw

Type woning
Appartement
Soort woning
Bovenwoning, Appartement
Soort bouw
Bestaande bouw
Bouwjaar
2018
Ligging
  • In het centrum
  • In een woonwijk

Indeling

Aantal kamers
2
Aantal woonlagen
1
Verdieping
1
Voorzieningen
  • Lift
  • Mechanische ventilatie

Buitenruimte

Balkon
Niet aanwezig
Tuin
Niet aanwezig
Dakterras
Niet aanwezig

Energie

Verwarming
Stadsverwarming
Energielabel
A++

Garage

Aanwezig
Nee
Meld een probleem met deze woning