Woning verhuren

Contact met de makelaar

Deze woning is gevonden buiten ons eigen netwerk. Met de knop hieronder kom je direct bij de aanbieder terecht.

Transparante huurprijs

Op basis van onze gegevens is de opbouw van de huurprijs volledig ingevuld door de makelaar. Dit geeft jou een totaaloverzicht van de huurprijs. Wil je de details bekijken? Log dan in op je account.

Wij doen er alles aan om jou eerlijke en transparante huurprijzen te bieden.

Heb je toch twijfels of zie je een andere huurprijs op de website van de makelaar? Laat het ons weten.

Meer informatie

Te huur: Appartement Wilhelminasingel 228 A in Weert

Bekijk kaart
6001 GV (Weert-Centrum)
€ 1.373 per maand
  • 86 m²
  • 2 kamers
  • Gemeubileerd

Beschrijving

SingelCour:
Het echte stadsleven. Een stadsappartement waarin je écht thuis komt. Dat kan met deze transformatie. Deze stadsappartementen van Singelcour zijn voorzien van moderne gemakken met behoud van authentieke sferen. De afwerking is modern, doch tijdloos en perfect zodat jij onbezorgd van jouw nieuwe thuis kunt genieten.
Indeling:

Begane grond:

Gezamenlijk:

Een toegangsdeur naar de algemene hal voor de bewoners voor de 3 stadsappartementen. In de gezamenlijke hal bevinden zich de meterkasten en de trap naar de verdiepingen en biedt tevens toegang tot het stadsappartement, gelegen op de 2e verdieping.

Het bellentableau met intercomsysteem en brievenbussen bevinden zich buiten naast de toegangsdeur. Het stadsappartement heeft een buitenfietsenstalling. Deze is te bereiken via het collegeplein en enkel te gebruiken door de bewoners.

2e verdieping:

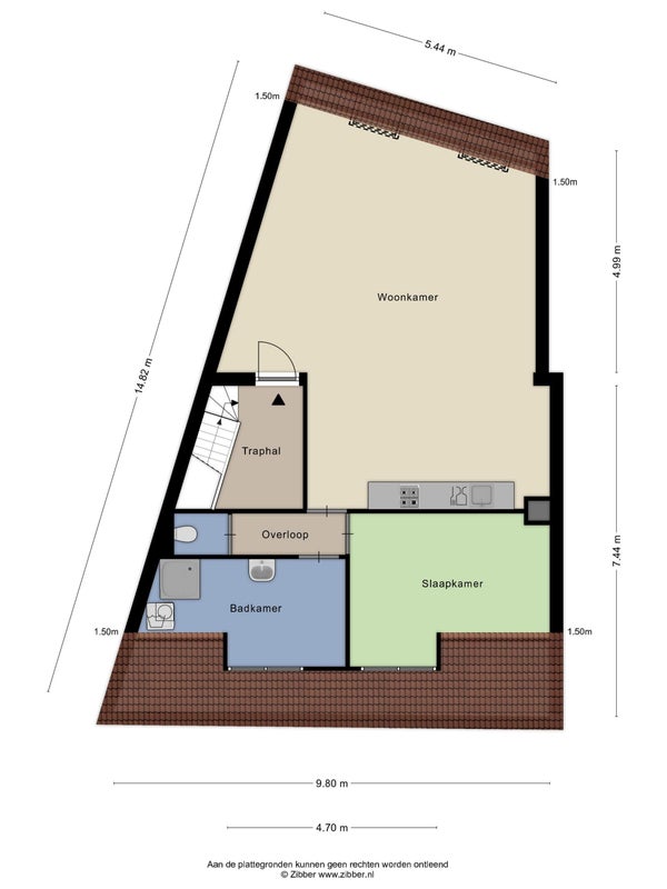
Via gezamenlijke trappenhal, kom je het stadsappartement, gelegen op de 2e verdieping, binnen in de woonkamer. De open keuken staat in verbinding met de woonkamer. De keuken geef toegang aan een overloop naar de slaapkamer, een aparte toilet en de badkamer.

Het stadappartement is compleet gestoffeerd en gemeubileerd*. Zo is er een tweepersoonsbed, kledingkast, 4 meter wandkast, eettafel met 6 stoelen, hoekbank, tv-meubel én wasmachine... Dit houdt in dat écht alles compleet af is en ook echt instap gereed is. Ja, je hoeft écht niets meer te doen!

Zo zijn de afgewerkte wanden en plafonds hoog kwalitatief geschilderd (9010) volgens de NEN EN norm schrobklasse 1 en goed reinigbaar. De vloeren zijn voorzien van een neutrale, houtlook vloer. Alle woonruimte hebben plafonnieres en/of inbouwspots.

De keuken is voorzien van inbouwkoelkast, inductiekookplaat, recirculatieafzuigkap, vaatwasser, spoelbak en voldoende kastruimte. De badkamer met toilet is licht en volledig afgewerkt met een wandcloset, douche, geheel licht betegeld, wastafel met meubel, spiegel en verlichting.

Zelfs de ramen zijn voorzien van neutrale aluminium jaloezieën voor een uniforme uitstraling. Eveneens beschik je over een eigen berging, meterkast en cv-ketel. Door enkel kleine inventaris over te verhuizen, kun je direct hier wonen. Gemeubileerd appartement, ideaal voor tijdelijk verblijf (bijvoorbeeld expats)

Huurvoorwaarden:

Neem contact op met de verhurende partij en ontvang de inschrijfformulieren. Met deze formulieren kunnen wij kijken of je in aanmerking komt voor de appartementen door de gestelde voorwaarden. De definitieve beoordeling van de huurkandidaten vindt plaats via een zogenaamde ‘credit check’. Daarvoor dienen wij een aantal van je persoonlijke gegevens, zoals een geldig legitimatiebewijs, maandelijkse inkomsten en de huidige woonsituatie kunnen inzien. De inkomenseis om een appartement te huren is minimaal een (gezamenlijk) bruto inkomen van € 57.000,-.

Huurkenmerken:

De minimale huurtermijn is 24 maanden. De getoonde huurprijs is exclusief servicekosten, De servicekosten (incl. stoffering,- meubileringskosten*) zijn € 207,75. Verhuurder vraagt borgstelling van 2 maanden huur. Roken en huisdieren niet toegestaan.

Het complex beschikt dan wel niet over eigen parkeerplaatsen, maar in de omgeving zijn voldoende alternatieve mogelijkheden voor parkeren. Toekomstige bewoners kunnen een 24/7-abonnement afsluiten bij de parkeergarage van het Ursulinencomplex. Aan het collegeplein kan het bezoek betaald parkeren voor maximaal 2 uur.

Bijzonderheden:

  • Inkomenseis; netto minimaal 57.000 euro bruto per jaar;

  • Waarborg; 2 maanden huur;

  • Vanaf 01 oktober 2025 beschikbaar;

  • Minimale huurperiode is; 24 maanden;

  • Huurprijs excl. G/W/L en excl. servicekosten á 207,75 - euro;

  • Gehele appartement volledig afgewerkt, gestoffeerd en gemeubileerd*.

  • Gehele appartement is voorzien van verlichting, hout-lookvloer, raambekleding;

  • Keuken v.v. moderne keukeninrichting en apparatuur;

  • Badkamer v.v. alle gemakken;

  • Eigen berging in de kelder;

  • Parkeren in de directe omgeving nabij de parkeergarage van het Ursulinencomplex.;

  • Roken en huisdieren niet toegestaan;

  • Niet geschikt voor bewoning met kinderen;

*Lijst van aanwezige meubilair

  • Raambekleding (4)

  • Tweepersoons bed (2 x 80*210)

  • kledingkast

  • Nachtkastjes (2)

  • Hoekbank

  • TV-meubel

  • Vloerkleed

  • Eettafel

  • Eetkamerstoelen (6)

  • servicekast

  • Vloerkleed

  • 4 meter wandkast

  • Wasmachine

Getoonde plattegrond is ter indicatie voor de indelingsmogelijkheden het betreft in de basis gemeubileerde appartement, aan deze plattegronden kunnen geen rechten worden ontleend.

Deze informatie is door ons met de nodige zorgvuldigheid samengesteld. Geen aansprakelijkheid wordt aanvaard voor enige onvolledigheid, onjuistheid of anderszins, of de consequenties daarvan. Alle maten en afmetingen zijn indicatief en niet exact volgens de NEN-2580 norm.

Overdracht

Huurprijs
€ 1.373 per maand
  • Inclusief: stoffering en meubels
Aangeboden sinds
29-09-2025
Status
Te huur
Beschikbaar
Per direct
Huurovereenkomst
Onbepaalde tijd
Looptijd
Minimaal 24 maanden
Borg
€ 2.330
Interieur
Gemeubileerd
Onderhoudsstaat
Goed

Oppervlakte en inhoud

Woonoppervlakte
86 m²
Inhoud
255 m³

Bouw

Type woning
Appartement
Soort woning
Bovenwoning, Appartement
Soort bouw
Bestaande bouw
Bouwjaar
1934
Ligging
In het centrum

Indeling

Aantal kamers
2
Aantal slaapkamers
1
Aantal badkamers
1
Aantal woonlagen
1
Voorzieningen
  • Douche
  • Toilet

Buitenruimte

Balkon
Niet aanwezig
Tuin
Niet aanwezig
Dakterras
Niet aanwezig

Energie

Isolatie
Dubbele beglazing, Vloerisolatie, Muurisolatie
Energielabel
A

Bergruimte

Schuur/Berging
Niet aanwezig

Parkeergelegenheid

Aanwezig
Ja
Soort parkeergelegenheid
Openbaar

Garage

Aanwezig
Nee

Huurvoorwaarden

Roken toegestaan
Nee
Huisdieren toegestaan
Nee

Mede aangeboden door

Liprice Vastgoed BV

Meld een probleem met deze woning
Contact met de makelaar Bel