Woning verhuren

Contact met de makelaar

Deze woning is gevonden buiten ons eigen netwerk. Met de knop hieronder kom je direct bij de aanbieder terecht.

Nieuw

Te huur: Huis Nederhoven in Amsterdam

Bekijk kaart
1083 AN (Buitenveldert-Oost)
€ 4.750 per maand
  • 180 m²
  • 7 kamers
  • Gestoffeerd

Beschrijving

Dit ruime, gestoffeerde familiehuis met 5 slaapkamers, 2 keukens, 2 badkamers en heerlijke tuin is gelegen in een rustige straat in de kindvriendelijke buurt Buitenveldert, op loopafstand van het overdekte winkelcentrum Gelderlandplein, diverse openbaar vervoermogelijkheden en de bedrijven aan de Zuidas. Ideale woning voor een groot gezin, eventueel met au-pair.

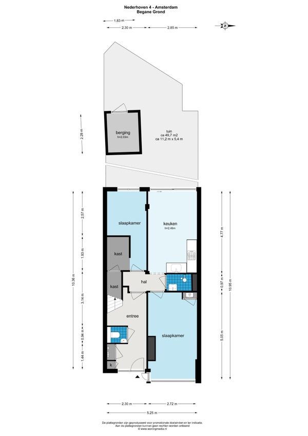
Indeling: Binnenkomst in hal met separaat toilet en toegang tot een grote ruimte aan de voorzijde wat als praktijkruimte kan worden gebruikt. Aan de achterzijde toegang tot een slaapkamer en een woonkeuken voorzien van een koelkast, combi-oven, vaatwasser en een inductiekookplaat met afzuiger. Vanuit deze ruimte toegang tot de heerlijke tuin op het zuidwesten met achterom. De tuin komt uit op speelveldje achter het huis. Op de begane grond verder een badkamer met douche en wastafelmeubel. Vanuit de hal trap naar de eerste verdieping waar de zeer riante woonkamer is gelegen met aan de voorzijde een volledig nieuwe keuken voorzien van een groot kookeiland met inductiekookplaat en vaatwasser. Verder een ingebouwde koel-/vriescombinatie, oven en magnetron. Trap naar de bovenste etage waar drie royale slaapkamers zijn gelegen en een tweede badkamer, voorzien van een heerlijke inloopregendouche, een fraai dubbel wastafelmeubel en een toilet. De zeer ruime master bedroom is gelegen aan de achterzijde en is voorzien een vrijstaand ligbad en airconditioning. Separate ruimte voor de wasmachine en droger.

De woning is volledig gerenoveerd en daarbij voorzien van een prachtige visgraatvloer, nieuwe verlichting, raambekleding, etc. De eerste verdieping is voorzien van vloerverwarming.

De wijk heeft een dorpse sfeer en een internationaal karakter met meerdere speeltuin gelegenheden, (internationale) scholen en diverse sportfaciliteiten. Parkeren kan direct voor de deur op uw eigen inrit en in Buitenveldert kunt u per woning twee parkeervergunningen krijgen.

Het overdekte winkelcentrum Gelderlandplein ligt op loopafstand en op korte fietsafstand vindt u Station Zuid, een belangrijke verkeersader met een directe lijn naar Schiphol en Amsterdam Centrum en/of Noord en Amstelveen.

Kortom, bent u op zoek naar een ruime en kwalitatief goede gezinswoning, neem dan contact met ons op voor een bezichtiging!

Deze woning kan worden gehuurd door een huurder met een eigen maandelijks stabiel toereikend inkomen uit werk en helaas niet met een garantsteller of een huurder die de woning niet zelf zal bewonen.

Meer woninginformatie bekijken?

Log in of registreer gratis.

Overdracht

Huurprijs
€ 4.750 per maand
Aangeboden sinds
27-10-2025
Status
Te huur
Beschikbaar
Per 01-12-2025
Interieur
Gestoffeerd

Oppervlakte en inhoud

Woonoppervlakte
180 m²

Bouw

Type woning
Huis
Soort woning
Tussenwoning (rijtjeshuis), Eengezinswoning
Soort bouw
Bestaande bouw
Bouwjaar
1962

Indeling

Aantal kamers
7
Aantal slaapkamers
5
Aantal badkamers
2
Aantal woonlagen
3

Buitenruimte

Tuin
Aanwezig (gelegen op het zuidwesten)
Tuinbeschrijving
Achtertuin
Dakterras
Niet aanwezig

Energie

Verwarming
CV-ketel
Energielabel
D

Parkeergelegenheid

Aanwezig
Ja
Meld een probleem met deze woning
Contact met de makelaar Bel